賃貸や不動産はアットホーム-賃貸マンション・賃貸物件・不動産なら アットホーム

北海道札幌市白石区栄通4丁目(南郷7丁目駅)の貸店舗:物件詳細

  • 物件詳細
  • 情報の見方
  • 印刷用画面
交通
所在地
駅徒歩 賃料
管理費等
敷金/保証金
礼金
使用部分面積
坪数/坪単価
物件種目
築年月

札幌市東西線/南郷7丁目

北海道札幌市白石区栄通4丁目

12分

45.1万円

33,000円

3ヶ月 / なし

なし

135.95m²

41.12坪/1.0967万円

貸店舗

2026年5月(新築)

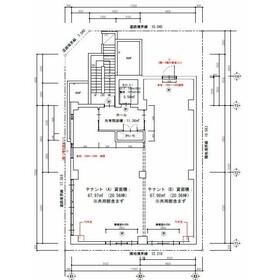
間取図

  • お問い合わせ
交通

札幌市東西線 南郷7丁目駅 徒歩12分

その他の交通

札幌市東西線 白石駅 徒歩13分

所在地 北海道札幌市白石区栄通4丁目
物件種目 貸店舗
賃料 45.1万円 管理費等 33,000円
敷金 / 保証金 3ヶ月 / なし 礼金 なし
敷引 坪単価 1.0967万円
保証金償却 権利金
造作譲渡 その他一時金
維持費等 保険等
使用部分面積 135.95m² 坪数 41.12坪
築年月 2026年5月(新築) 階建 / 階 5階建 / 5階
駐車場 有 無料(空き6台)
来客用駐車場として共有となります。
バイク置き場
駐輪場 土地面積
接道状況 用途地域
間取り 建物構造 RC
建物名・部屋番号 JAZZG BASE 501
リフォーム履歴
リノベーション履歴
特記事項 スケルトン、土曜日利用可、土日・祝日利用可、飲食店不可、最上階
備考
賃貸保証等:加入要(CASA利用必須。初回保証料は月額固定費の100% 年間更新料は月額固定費の10%)
管理形態/管理員の勤務形態:-/-
35年の定期借家です。但し借主側からの途中解約は可能です。(5年未満での解約の場合は違約金が発生いたします)
エネルギー消費性能
断熱性能
目安光熱費
バス・トイレ
キッチン
設備・サービス 都市ガス
その他 エレベーター
契約期間 5年 条件等
引渡可能時期 2026年5月下旬予定 現況 未完成
仲介手数料 不要    
更新料 物件番号 6985984656
情報公開日 2025年10月8日 次回更新予定日 2025年11月5日
ケータイ用バーコード

QRコード

スマートフォンでこの物件を見る
スマートフォンからもこの物件をご覧になれます。
※「-」と表示されている項目については、情報提供会社にご確認ください。

クイックお問い合わせ

ここから簡単にお問い合わせをすることができます。
(SSLでの暗号化での送信を希望されるお客さまは こちら よりお問い合わせください)

お問い合わせ内容(必須)
物件のお問い合わせ理由(必須)
お名前・ご担当者様名(必須) 姓  名 
メールアドレス(必須)
※携帯電話のメールアドレスをご入力される方はこちらをご確認ください
電話番号(必須)
- -
備考欄 希望条件、物件案内希望日、質問などがございましたらご記入ください。
お問い合わせを行う前に「個人情報の取り扱いについて」を必ずお読みください。
「個人情報の取り扱いについて」に同意いただいた場合は「上記にご同意の上 確認画面へ進む」のボタンをクリックしてください。

個人情報の取り扱いについて

皆さまが送付された個人情報はアットホーム(株)のサーバを経由し、お問い合わせ先の不動産会社にメールまたはFAXにて転送されるためアットホーム(株)にも保管されます。アットホーム(株)で保管された個人情報の取り扱いについては、【こちら】をご覧ください。
また、本画面でご記入いただいた個人情報は、お問い合わせ先の不動産会社でも保管します。 お問い合わせ先の不動産会社が保管する個人情報の取り扱いについては、不動産会社に直接お問い合わせください。

情報提供会社

情報提供会社

(株)タカラ

北海道知事免許 石狩(11)第3700号

交通:
札幌市東西線/西11丁目駅 徒歩2分
北海道札幌市中央区南一条西10丁目4 タイムビル5F
TEL:
011-261-4121
FAX:
011-261-4021
所属団体:
(公社)北海道宅地建物取引業協会会員
(一社)北海道不動産公正取引協議会加盟

取引態様:代理

  • 会社情報
  • 10003871
スマートフォンで
この不動産会社を見る
QRコード
  • お問い合わせ
  • 提携サイト等より掲載されている物件情報につきましては、不動産会社詳細情報にリンクされていないものがあります。
  • 物件に関するお問合せは、物件詳細ページの「情報提供会社」に表示されている不動産会社へ直接お願いいたします。
  • 間取図は、現況を優先させていただきます。
  • 映像は物件の一部を撮影したものです。物件の契約にあたっての最終判断はご自身の判断に基づいて行ってください。
  • 仲介手数料について仲介手数料

アットホームは物件情報の適正化に努めております。 内容に誤りがある場合にはこちらへご連絡ください。


物件画像: