賃貸や不動産はアットホーム-賃貸マンション・賃貸物件・不動産なら アットホーム

兵庫県神戸市中央区中山手通1丁目(三宮駅)の貸店舗:物件詳細

  • 物件詳細
  • 情報の見方
  • 印刷用画面
交通
所在地
駅徒歩 賃料
管理費等
敷金/保証金
礼金
使用部分面積
坪数/坪単価
物件種目
築年月

地下鉄西神・山手線/三宮

兵庫県神戸市中央区中山手通1丁目

5分

14.3万円

22,000円

10万円 / なし

2ヶ月

29.70m²

8.98坪/1.5917万円

貸店舗

1985年11月(築40年4ヶ月)

おすすめコメント  スタッフ: 加藤将大

東門街のリースバー・スナック向けの店舗物件です。人気の場所です。トイレ有り。エレベーター有り。カラオケ可です(指定業者有り)。元町駅にも徒歩圏内です。

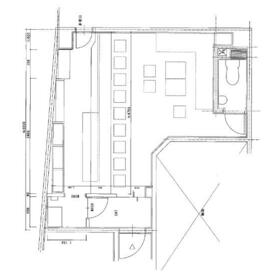
間取図

間取図

外観

外観

<
その他の画像
>
    • お問い合わせ
    交通

    地下鉄西神・山手線 三宮駅 徒歩5分

    その他の交通

    JR東海道本線 三ノ宮駅 徒歩8分

    JR東海道本線 元町駅 徒歩13分

    所在地 兵庫県神戸市中央区中山手通1丁目
    物件種目 貸店舗
    賃料 14.3万円 管理費等 22,000円
    敷金 / 保証金 10万円 / なし 礼金 2ヶ月
    敷引 坪単価 1.5917万円
    保証金償却 権利金
    造作譲渡 その他一時金 鍵交換費用:13,200円、看板代:57,200円
    維持費等 ガス警報器リース料:352円/月、高圧電力基本料金:12,619円/月 保険等
    使用部分面積 29.70m² 坪数 8.98坪
    築年月 1985年11月(築40年4ヶ月) 階建 / 階 地上9階地下1階建 / 7階
    駐車場 バイク置き場
    駐輪場 土地面積
    接道状況 用途地域
    間取り 建物構造 鉄骨造
    アピールポイント 店舗・事務所物件等をお探しの方は地域密着店のハウジングコーポレーションまで。豊富な物件情報と丁寧な応対でお客様をお迎えしています。中央区の物件多数有ります。お気軽にお問合わせくださいませ。
    建物名・部屋番号 東門シャルマンビル
    リフォーム履歴
    リノベーション履歴
    特記事項 居抜き、飲食店可、角部屋
    備考
    管理形態/管理員の勤務形態:-/-
    東門街のリースバー・スナック向けの店舗物件です。
    人気の場所です。
    トイレ有り。
    エレベーター有り。
    カラオケ可です(指定業者有り)。
    ガールズバー・キャバクラ・ホストクラブ・シーシャ・コスプレバーはNGです。
    元町駅にも徒歩圏内です。
    エネルギー消費性能
    断熱性能
    目安光熱費
    バス・トイレ トイレ
    キッチン
    設備・サービス
    その他 エレベーター
    契約期間 2年 条件等
    引渡可能時期 即時 現況
    更新料 物件番号 6985868084
    情報公開日 2025年12月6日 次回更新予定日 2026年2月26日
    ケータイ用バーコード

    QRコード

    スマートフォンでこの物件を見る
    スマートフォンからもこの物件をご覧になれます。
    ※「-」と表示されている項目については、情報提供会社にご確認ください。

    この物件の周辺情報

    周辺施設 阪急オアシス神戸三宮店
    距離 449m
    周辺施設 セブンイレブン神戸中山手通1丁目店
    距離 80m
    周辺施設 私立神戸女子大学三宮キャンパス
    距離 317m
    周辺施設 三聖会三聖病院
    距離 564m
    周辺施設 神戸中山手郵便局
    距離 325m
    周辺施設 みなと銀行北野坂支店
    距離 194m
    周辺施設 神戸市中央区役所
    距離 882m
    周辺施設 生田警察署
    距離 318m

    クイックお問い合わせ

    ここから簡単にお問い合わせをすることができます。
    (SSLでの暗号化での送信を希望されるお客さまは こちら よりお問い合わせください)

    お問い合わせ内容(必須)
    物件のお問い合わせ理由(必須)
    お名前・ご担当者様名(必須) 姓  名 
    メールアドレス(必須)
    ※携帯電話のメールアドレスをご入力される方はこちらをご確認ください
    電話番号(必須)
    - -
    備考欄 希望条件、物件案内希望日、質問などがございましたらご記入ください。
    お問い合わせを行う前に「個人情報の取り扱いについて」を必ずお読みください。
    「個人情報の取り扱いについて」に同意いただいた場合は「上記にご同意の上 確認画面へ進む」のボタンをクリックしてください。

    個人情報の取り扱いについて

    皆さまが送付された個人情報はアットホーム(株)のサーバを経由し、お問い合わせ先の不動産会社にメールまたはFAXにて転送されるためアットホーム(株)にも保管されます。アットホーム(株)で保管された個人情報の取り扱いについては、【こちら】をご覧ください。
    また、本画面でご記入いただいた個人情報は、お問い合わせ先の不動産会社でも保管します。 お問い合わせ先の不動産会社が保管する個人情報の取り扱いについては、不動産会社に直接お問い合わせください。

    情報提供会社

    情報提供会社

    (有)ハウジングコーポレーション

    兵庫県知事免許(7)第10096号

    交通:
    JR東海道本線/元町駅 徒歩1分
    兵庫県神戸市中央区元町通1丁目13-14 タカトータル121ビル9F
    TEL:
    078-393-5030
    FAX:
    078-393-5040

    取引態様:仲介

    • 会社情報
    • 50009797
    スマートフォンで
    この不動産会社を見る
    QRコード
    • お問い合わせ
    • 提携サイト等より掲載されている物件情報につきましては、不動産会社詳細情報にリンクされていないものがあります。
    • 物件に関するお問合せは、物件詳細ページの「情報提供会社」に表示されている不動産会社へ直接お願いいたします。
    • 間取図は、現況を優先させていただきます。
    • 映像は物件の一部を撮影したものです。物件の契約にあたっての最終判断はご自身の判断に基づいて行ってください。
    • 仲介手数料について仲介手数料

    アットホームは物件情報の適正化に努めております。 内容に誤りがある場合にはこちらへご連絡ください。


    物件画像: