賃貸や不動産はアットホーム-賃貸マンション・賃貸物件・不動産なら アットホーム

愛媛県松山市道後樋又(鉄砲町駅)の貸店舗:物件詳細

  • 物件詳細
  • 情報の見方
  • 印刷用画面
交通
所在地
駅徒歩 賃料
管理費等
敷金/保証金
礼金
使用部分面積
坪数/坪単価
物件種目
築年月

伊予鉄道環状線/鉄砲町

愛媛県松山市道後樋又

9分

15.4万円

なし

なし / 2ヶ月

2ヶ月

67.90m²

20.53坪/0.7498万円

貸店舗・事務所

2025年3月(新築)

おすすめコメント  スタッフ: 尾上

2025年3月末完成の新築テナントです。トイレが男女別で2あり、メゾネットタイプのテナントです。敷地内駐車場4台分ご契約可能です。(33,000円税込)。ご内覧可能です。お気軽にお問合せくださいませ。

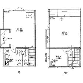
間取図

間取図

1・2階のメゾネットタイプのテナントです。

<
その他の画像
  • 外観
  • 外観
  • 外観
  • 外観
>
    • お問い合わせ
    交通

    伊予鉄道環状線 鉄砲町駅 徒歩9分

    その他の交通

    伊予鉄道環状線 清水町駅 徒歩12分

    伊予鉄道環状線 赤十字病院前駅 徒歩12分

    所在地 愛媛県松山市道後樋又
    物件種目 貸店舗・事務所
    賃料 15.4万円 管理費等 なし
    敷金 / 保証金 なし / 2ヶ月 礼金 2ヶ月
    敷引 坪単価 0.7498万円
    保証金償却 権利金
    造作譲渡 その他一時金
    維持費等 保険等
    使用部分面積 67.90m² 坪数 20.53坪
    築年月 2025年3月(新築) 階建 / 階 2階建 / 1階~2階部分
    駐車場 有 33,000円/月(空き4台)
    縦列区画2台駐車可能で2区画空きがございます。
    バイク置き場
    駐輪場 土地面積
    接道状況 用途地域 2種中高
    間取り 建物構造 木造
    アピールポイント 2025年3月末完成の新築テナントです。
    トイレが男女別で2あり、メゾネットタイプのテナントです。
    敷地内駐車場4台分ご契約可能です。(33,000円税込)。
    ご内覧可能となっておりますのでお気軽にお問合せくださいませ。
    建物名・部屋番号 THE BLANC道後樋又 1
    リフォーム履歴
    リノベーション履歴
    特記事項 土日・祝日利用可、飲食店不可、角部屋
    備考
    賃貸保証等:加入要(保証会社加入必要:(初回)賃料の100%・更新料:有り)
    管理形態/管理員の勤務形態:-/-
    2025年3月末完成の新築テナントです。トイレが男女別で2あり、メゾネットタイプのテナントです。
    駐車場4台分契約可能です。(33,000円税込)
    エネルギー消費性能
    断熱性能
    目安光熱費
    バス・トイレ 専有部分に男女別トイレあり
    キッチン
    設備・サービス
    その他
    契約期間 2年 条件等
    引渡可能時期 相談 現況
    仲介手数料 1ヶ月    
    更新料 物件番号 6985668040
    情報公開日 2025年11月18日 次回更新予定日 2025年12月16日
    ケータイ用バーコード

    QRコード

    スマートフォンでこの物件を見る
    スマートフォンからもこの物件をご覧になれます。
    ※「-」と表示されている項目については、情報提供会社にご確認ください。

    この物件の周辺情報

    周辺施設 スーパー日東高砂店
    距離 898m
    周辺施設 SUPER ABC上一万店
    距離 1368m
    周辺施設 フジ本町店
    距離 1135m
    周辺施設 ローソン松山道後樋又店
    距離 113m
    周辺施設 コメダ珈琲店松山道後店
    距離 255m
    周辺施設 くすりのレデイ道後樋又店
    距離 201m
    周辺施設 私立松山大学
    距離 441m
    周辺施設 国立愛媛大学
    距離 491m

    クイックお問い合わせ

    ここから簡単にお問い合わせをすることができます。
    (SSLでの暗号化での送信を希望されるお客さまは こちら よりお問い合わせください)

    お問い合わせ内容(必須)
    物件のお問い合わせ理由(必須)
    お名前・ご担当者様名(必須) 姓  名 
    メールアドレス(必須)
    ※携帯電話のメールアドレスをご入力される方はこちらをご確認ください
    電話番号(必須)
    - -
    備考欄 希望条件、物件案内希望日、質問などがございましたらご記入ください。
    お問い合わせを行う前に「個人情報の取り扱いについて」を必ずお読みください。
    「個人情報の取り扱いについて」に同意いただいた場合は「上記にご同意の上 確認画面へ進む」のボタンをクリックしてください。

    個人情報の取り扱いについて

    皆さまが送付された個人情報はアットホーム(株)のサーバを経由し、お問い合わせ先の不動産会社にメールまたはFAXにて転送されるためアットホーム(株)にも保管されます。アットホーム(株)で保管された個人情報の取り扱いについては、【こちら】をご覧ください。
    また、本画面でご記入いただいた個人情報は、お問い合わせ先の不動産会社でも保管します。 お問い合わせ先の不動産会社が保管する個人情報の取り扱いについては、不動産会社に直接お問い合わせください。

    情報提供会社

    情報提供会社

    (株)ハウスメイトショップ 松山東店

    国土交通大臣免許(4)第7558号

    交通:
    伊予鉄道横河原線/いよ立花駅
    愛媛県松山市束本1丁目5-3 
    TEL:
    089-904-9114
    FAX:
    089-998-7760
    所属団体:
    (公社)愛媛県宅地建物取引業協会会員
    不動産公正取引協議会加盟

    取引態様:仲介

    • 会社情報
    • 50015736
    スマートフォンで
    この不動産会社を見る
    QRコード
    • お問い合わせ
    • 提携サイト等より掲載されている物件情報につきましては、不動産会社詳細情報にリンクされていないものがあります。
    • 物件に関するお問合せは、物件詳細ページの「情報提供会社」に表示されている不動産会社へ直接お願いいたします。
    • 間取図は、現況を優先させていただきます。
    • 映像は物件の一部を撮影したものです。物件の契約にあたっての最終判断はご自身の判断に基づいて行ってください。
    • 仲介手数料について仲介手数料

    アットホームは物件情報の適正化に努めております。 内容に誤りがある場合にはこちらへご連絡ください。


    物件画像: