賃貸や不動産はアットホーム-賃貸マンション・賃貸物件・不動産なら アットホーム

高知県高知市知寄町1丁目(宝永町駅)の貸店舗:物件詳細

  • 物件詳細
  • 情報の見方
  • 印刷用画面
交通
所在地
駅徒歩 賃料
管理費等
敷金/保証金
礼金
使用部分面積
坪数/坪単価
物件種目
築年月

とさでん交通後免線/宝永町

高知県高知市知寄町1丁目

2分

3.85万円

1ヶ月 / なし

1ヶ月

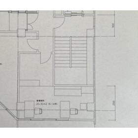
20.30m²

6.14坪/0.627万円

貸店舗・事務所

1976年10月(築49年7ヶ月)

おすすめコメント

電車通り沿いのビル(エレベーターあり)4階部分(南)。室内に水回りありませんが、トイレ・キッチンは、3階の共用のものを使用可能(水道代不要)

間取図

間取図

その他の画像
    • お問い合わせ
    交通

    とさでん交通後免線 宝永町駅 徒歩2分

    その他の交通

    とさでん交通後免線 知寄町一丁目駅 徒歩3分

    とさでん交通後免線 知寄町二丁目駅 徒歩7分

    所在地 高知県高知市知寄町1丁目
    物件種目 貸店舗・事務所
    賃料 3.85万円 管理費等
    敷金 / 保証金 1ヶ月 / なし 礼金 1ヶ月
    敷引 坪単価 0.627万円
    保証金償却 権利金
    造作譲渡 その他一時金
    維持費等 保険等
    使用部分面積 20.30m² 坪数 6.14坪
    築年月 1976年10月(築49年7ヶ月) 階建 / 階 6階建 / 4階
    駐車場 近有 11,000円/月 バイク置き場
    駐輪場 土地面積
    接道状況 用途地域
    間取り 1(洋 12) 建物構造 RC
    アピールポイント 電車通り沿いのビル(エレベーターあり)4階部分(南)。室内に水回りありませんが、トイレ・キッチンは、3階の共用のものを使用可能(水道代不要)
    建物名・部屋番号 4階南
    リフォーム履歴
    リノベーション履歴
    特記事項
    備考
    管理形態/管理員の勤務形態:-/-
    主要採光面:南向き
    電車通り沿いのビル(エレベーターあり)4階部分(南)。室内に水回りありませんが、トイレ・キッチンは、3階の共用のものを使用可能(水道代不要)
    エネルギー消費性能
    断熱性能
    目安光熱費
    バス・トイレ
    キッチン
    設備・サービス
    その他
    契約期間 2年 条件等
    引渡可能時期 相談 現況
    更新料 物件番号 6985484763
    情報公開日 2025年9月2日 次回更新予定日 2026年4月11日
    ケータイ用バーコード

    QRコード

    スマートフォンでこの物件を見る
    スマートフォンからもこの物件をご覧になれます。
    ※「-」と表示されている項目については、情報提供会社にご確認ください。

    この物件の周辺情報

    周辺施設 ナンコクスーパー下知店
    距離 453m
    周辺施設 フジ桜井店
    距離 688m
    周辺施設 ファミリーマート高知日の出町店
    距離 172m
    周辺施設 ほっかほっか亭宝永店
    距離 171m
    周辺施設 はなまるうどん高知インター日の出店
    距離 250m
    周辺施設 出光宝永町SS
    距離 281m
    周辺施設 高知市立昭和小学校
    距離 384m

    クイックお問い合わせ

    ここから簡単にお問い合わせをすることができます。
    (SSLでの暗号化での送信を希望されるお客さまは こちら よりお問い合わせください)

    お問い合わせ内容(必須)
    物件のお問い合わせ理由(必須)
    お名前・ご担当者様名(必須) 姓  名 
    メールアドレス(必須)
    ※携帯電話のメールアドレスをご入力される方はこちらをご確認ください
    電話番号(必須)
    - -
    備考欄 希望条件、物件案内希望日、質問などがございましたらご記入ください。
    お問い合わせを行う前に「個人情報の取り扱いについて」を必ずお読みください。
    「個人情報の取り扱いについて」に同意いただいた場合は「上記にご同意の上 確認画面へ進む」のボタンをクリックしてください。

    個人情報の取り扱いについて

    皆さまが送付された個人情報はアットホーム(株)のサーバを経由し、お問い合わせ先の不動産会社にメールまたはFAXにて転送されるためアットホーム(株)にも保管されます。アットホーム(株)で保管された個人情報の取り扱いについては、【こちら】をご覧ください。
    また、本画面でご記入いただいた個人情報は、お問い合わせ先の不動産会社でも保管します。 お問い合わせ先の不動産会社が保管する個人情報の取り扱いについては、不動産会社に直接お問い合わせください。

    情報提供会社

    情報提供会社

    グリーン不動産

    高知県知事免許(3)第2777号

    交通:
    とさでん交通後免線/宝永町駅 徒歩1分
    高知県高知市中宝永町6-8 
    TEL:
    088-883-6926
    FAX:
    088-883-6902
    所属団体:
    (公社)高知県宅地建物取引業協会会員
    四国地区不動産公正取引協議会加盟

    取引態様:仲介

    • 会社情報
    • 50024706
    スマートフォンで
    この不動産会社を見る
    QRコード
    • お問い合わせ
    • 提携サイト等より掲載されている物件情報につきましては、不動産会社詳細情報にリンクされていないものがあります。
    • 物件に関するお問合せは、物件詳細ページの「情報提供会社」に表示されている不動産会社へ直接お願いいたします。
    • 間取図は、現況を優先させていただきます。
    • 映像は物件の一部を撮影したものです。物件の契約にあたっての最終判断はご自身の判断に基づいて行ってください。
    • 仲介手数料について仲介手数料

    アットホームは物件情報の適正化に努めております。 内容に誤りがある場合にはこちらへご連絡ください。


    物件画像: