賃貸や不動産はアットホーム-賃貸マンション・賃貸物件・不動産なら アットホーム

大阪府大阪市浪速区幸町2丁目(桜川駅)の貸店舗:物件詳細

  • 物件詳細
  • 情報の見方
  • 印刷用画面
交通
所在地
駅徒歩 賃料
管理費等
敷金/保証金
礼金
使用部分面積
坪数/坪単価
物件種目
築年月

地下鉄千日前線/桜川

大阪府大阪市浪速区幸町2丁目

2分

41.8万円

10万円 / なし

1.5ヶ月

75.31m²

22.78坪/1.8349万円

貸店舗・事務所

1981年3月(築44年10ヶ月)

おすすめコメント

★弊社管理物件です!★カフェの居抜き店舗です!★現在営業中の物件ですが、事前予約で内覧可能です。★お問い合わせお待ちしております。

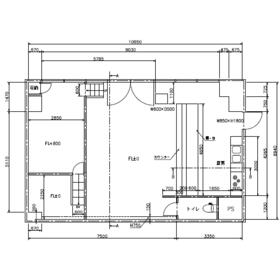
間取図

間取図

図面は略図につき、現況を優先します

<
その他の画像
>
    • お問い合わせ
    交通

    地下鉄千日前線 桜川駅 徒歩2分

    その他の交通

    阪神なんば線 桜川駅 徒歩2分

    JR関西本線 JR難波駅 徒歩10分

    所在地 大阪府大阪市浪速区幸町2丁目
    物件種目 貸店舗・事務所
    賃料 41.8万円 管理費等
    敷金 / 保証金 10万円 / なし 礼金 1.5ヶ月
    敷引 坪単価 1.8349万円
    保証金償却 権利金
    造作譲渡 その他一時金
    維持費等 保険等
    使用部分面積 75.31m² 坪数 22.78坪
    築年月 1981年3月(築44年10ヶ月) 階建 / 階 12階建 / 1階
    駐車場 バイク置き場
    駐輪場 土地面積
    接道状況 用途地域
    間取り 建物構造 SRC
    アピールポイント ★弊社管理物件です!
    ★カフェの居抜き店舗です!
    ★現在営業中の物件ですが、事前予約で内覧可能です。
    ★お問い合わせお待ちしております。
    建物名・部屋番号  
    リフォーム履歴
    リノベーション履歴
    特記事項 居抜き、土日・祝日利用可、飲食店可、1フロア1テナント、角部屋
    備考
    賃貸保証等:加入要(※保証会社加入要(USEN) 家賃保証会社加入要(指定有)初回:賃料総額の100%、1年毎の保証更新料は0円~(滞納の有無による))
    管理形態/管理員の勤務形態:-/-
    ■保証会社加入要(USEN) 
    家賃保証会社加入要(指定有)初回:賃料総額の100%、
    1年毎の保証更新料は0円~(滞納の有無による)
    ■指定火災保険加入要
    ■電気:直接契約、ガス:直接契約 水道:直接契約 ゴミ:直接契約(指定有り)
    ■業種に関して管理組合の承諾を得る必要があります
    ■営業時間制限有り 原則8時~22時まで
    ■図面は略図につき、現況を優先します。
    ■什器備品売買有:金額相談
    ■定期建物賃貸借10年※借主からの中途解約は3ヶ月前予告にて可能
    エネルギー消費性能
    断熱性能
    目安光熱費
    バス・トイレ 専有部分にトイレあり、多機能トイレ
    キッチン
    設備・サービス 給湯、都市ガス、エアコン、暖房、冷房
    その他
    契約期間 10年 条件等 定期借家定期借家
    引渡可能時期 相談 現況 使用中
    仲介手数料 1ヶ月    
    更新料 物件番号 6985373297
    情報公開日 2025年11月10日 次回更新予定日 2025年12月18日
    ケータイ用バーコード

    QRコード

    スマートフォンでこの物件を見る
    スマートフォンからもこの物件をご覧になれます。
    ※「-」と表示されている項目については、情報提供会社にご確認ください。

    クイックお問い合わせ

    ここから簡単にお問い合わせをすることができます。
    (SSLでの暗号化での送信を希望されるお客さまは こちら よりお問い合わせください)

    お問い合わせ内容(必須)
    物件のお問い合わせ理由(必須)
    お名前・ご担当者様名(必須) 姓  名 
    メールアドレス(必須)
    ※携帯電話のメールアドレスをご入力される方はこちらをご確認ください
    電話番号(必須)
    - -
    備考欄 希望条件、物件案内希望日、質問などがございましたらご記入ください。
    お問い合わせを行う前に「個人情報の取り扱いについて」を必ずお読みください。
    「個人情報の取り扱いについて」に同意いただいた場合は「上記にご同意の上 確認画面へ進む」のボタンをクリックしてください。

    個人情報の取り扱いについて

    皆さまが送付された個人情報はアットホーム(株)のサーバを経由し、お問い合わせ先の不動産会社にメールまたはFAXにて転送されるためアットホーム(株)にも保管されます。アットホーム(株)で保管された個人情報の取り扱いについては、【こちら】をご覧ください。
    また、本画面でご記入いただいた個人情報は、お問い合わせ先の不動産会社でも保管します。 お問い合わせ先の不動産会社が保管する個人情報の取り扱いについては、不動産会社に直接お問い合わせください。

    情報提供会社

    情報提供会社

    (株)ハク不動産 本店

    大阪府知事免許(1)第64082号

    交通:
    地下鉄御堂筋線/心斎橋駅 徒歩2分
    大阪府大阪市中央区西心斎橋1丁目12-8 大美建築ビル 7階
    TEL:
    06-6599-8716
    FAX:
    06-6599-8717
    所属団体:
    (公社)全日本不動産協会会員
    (公社)近畿地区不動産公正取引協議会加盟

    取引態様:仲介

    • 会社情報
    • 50108088
    スマートフォンで
    この不動産会社を見る
    QRコード
    • お問い合わせ
    • 提携サイト等より掲載されている物件情報につきましては、不動産会社詳細情報にリンクされていないものがあります。
    • 物件に関するお問合せは、物件詳細ページの「情報提供会社」に表示されている不動産会社へ直接お願いいたします。
    • 間取図は、現況を優先させていただきます。
    • 映像は物件の一部を撮影したものです。物件の契約にあたっての最終判断はご自身の判断に基づいて行ってください。
    • 仲介手数料について仲介手数料

    アットホームは物件情報の適正化に努めております。 内容に誤りがある場合にはこちらへご連絡ください。


    物件画像: