賃貸や不動産はアットホーム-賃貸マンション・賃貸物件・不動産なら アットホーム

北海道札幌市中央区南八条西6丁目(山鼻9条駅)の貸店舗:物件詳細

  • 物件詳細
  • 情報の見方
  • 印刷用画面
交通
所在地
駅徒歩 賃料
管理費等
敷金/保証金
礼金
使用部分面積
坪数/坪単価
物件種目
築年月

札幌市電/山鼻9条

北海道札幌市中央区南八条西6丁目

1分

68.4156万円

114,026円

6ヶ月 / なし

なし

171.36m²

51.83坪/1.3199万円

貸店舗

2001年2月(築24年10ヶ月)

おすすめコメント  スタッフ: 矢部玲子

◎市電の駅すぐの1階店舗◎飲食店可51.83坪◎店舗前に駐車スペース

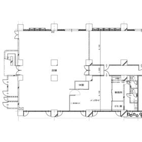
間取図

間取図

<
その他の画像
>
    • お問い合わせ
    交通

    札幌市電 山鼻9条駅 徒歩1分

    その他の交通

    札幌市南北線 中島公園駅 徒歩6分

    札幌市電 東本願寺前駅 徒歩4分

    所在地 北海道札幌市中央区南八条西6丁目
    物件種目 貸店舗
    賃料 68.4156万円 管理費等 114,026円
    敷金 / 保証金 6ヶ月 / なし 礼金 なし
    敷引 坪単価 1.3199万円
    保証金償却 権利金
    造作譲渡 その他一時金
    維持費等 保険等
    使用部分面積 171.36m² 坪数 51.83坪
    築年月 2001年2月(築24年10ヶ月) 階建 / 階 11階建 / 1階
    駐車場 有 21,780円/月
    26,620円,機械式隣接(8・6P)19,800円
    バイク置き場 空無
    駐輪場 有 550円/月 土地面積
    接道状況 用途地域
    間取り 建物構造 RC
    アピールポイント ◎建物は市電の駅のすぐ
    ◎元フィットネスジムの分割部分。
    ◎駐車スペースは店舗前に4台分あります。

    現在の入居中の1階テナント一覧
    天二郎
    呑み処 ちょい吉
    こころ整体院・整骨院 札幌本願寺
    なか卯 すすきの西店
    ニッポンレンタカー すすきの店
    (株)エコリング
    建物名・部屋番号 アン・セリジェ弐番館 1-5
    リフォーム履歴
    リノベーション履歴
    特記事項 飲食店可、角部屋
    備考
    賃貸保証等:加入要(エポスカード)
    管理形態/管理員の勤務形態:-/-
    主要採光面:西向き
    有料バイク置場・屋根付き有料駐輪場・有料トランクルーム。
    ・J-COM対応。管理人巡回。
    業種等場合により定期借家、契約期間応相談の場合有。
    ・トランクルーム550円/月(幅76.5,高181.5,奥行93.5㎝)※空き有

    ・店舗前駐車場4台分は全テナント共用駐車場となります※駐車料金はテナント管理費と同額。
    エネルギー消費性能
    断熱性能
    目安光熱費
    バス・トイレ
    キッチン
    設備・サービス 看板取付スペースあり
    インターネット対応、光ファイバー
    その他
    契約期間 2年 条件等
    引渡可能時期 相談 現況
    更新料 なし 物件番号 6984653487
    情報公開日 2025年8月18日 次回更新予定日 2025年11月13日
    ケータイ用バーコード

    QRコード

    スマートフォンでこの物件を見る
    スマートフォンからもこの物件をご覧になれます。
    ※「-」と表示されている項目については、情報提供会社にご確認ください。

    この物件の周辺情報

    周辺施設 ディナーベルススキノ南7条店
    距離 279m
    周辺施設 セブンイレブン札幌南8条西6丁目店
    距離 31m
    周辺施設 セイコーマート南8条西6丁目店
    距離 99m
    周辺施設 ローソン南8条西6丁目店
    距離 107m
    周辺施設 セイコーマート山鼻9条店
    距離 193m
    周辺施設 ファミリーマート札幌南7条西7丁目店
    距離 287m
    周辺施設 なか卯すすきの西店
    距離 9m
    周辺施設 さんぱち南8条店
    距離 48m

    クイックお問い合わせ

    ここから簡単にお問い合わせをすることができます。
    (SSLでの暗号化での送信を希望されるお客さまは こちら よりお問い合わせください)

    お問い合わせ内容(必須)
    物件のお問い合わせ理由(必須)
    お名前・ご担当者様名(必須) 姓  名 
    メールアドレス(必須)
    ※携帯電話のメールアドレスをご入力される方はこちらをご確認ください
    電話番号(必須)
    - -
    備考欄 希望条件、物件案内希望日、質問などがございましたらご記入ください。
    お問い合わせを行う前に「個人情報の取り扱いについて」を必ずお読みください。
    「個人情報の取り扱いについて」に同意いただいた場合は「上記にご同意の上 確認画面へ進む」のボタンをクリックしてください。

    個人情報の取り扱いについて

    皆さまが送付された個人情報はアットホーム(株)のサーバを経由し、お問い合わせ先の不動産会社にメールまたはFAXにて転送されるためアットホーム(株)にも保管されます。アットホーム(株)で保管された個人情報の取り扱いについては、【こちら】をご覧ください。
    また、本画面でご記入いただいた個人情報は、お問い合わせ先の不動産会社でも保管します。 お問い合わせ先の不動産会社が保管する個人情報の取り扱いについては、不動産会社に直接お問い合わせください。

    情報提供会社

    情報提供会社

    (有)RISE 不動産部

    神奈川県知事免許(1)第32580号

    交通:
    ブルーライン/吉野町駅 徒歩3分
    神奈川県横浜市南区日枝町5丁目137-4 
    TEL:
    045-341-3337
    FAX:
    045-341-3338
    所属団体:
    (公社)神奈川県宅地建物取引業協会会員
    (公社)首都圏不動産公正取引協議会加盟

    取引態様:仲介

    • 会社情報
    • 00278575
    スマートフォンで
    この不動産会社を見る
    QRコード
    • お問い合わせ
    • 提携サイト等より掲載されている物件情報につきましては、不動産会社詳細情報にリンクされていないものがあります。
    • 物件に関するお問合せは、物件詳細ページの「情報提供会社」に表示されている不動産会社へ直接お願いいたします。
    • 間取図は、現況を優先させていただきます。
    • 映像は物件の一部を撮影したものです。物件の契約にあたっての最終判断はご自身の判断に基づいて行ってください。
    • 仲介手数料について仲介手数料

    アットホームは物件情報の適正化に努めております。 内容に誤りがある場合にはこちらへご連絡ください。


    物件画像: