賃貸や不動産はアットホーム-賃貸マンション・賃貸物件・不動産なら アットホーム

北海道札幌市中央区南十三条西1丁目(幌平橋駅)の貸店舗:物件詳細

  • 物件詳細
  • 情報の見方
  • 印刷用画面
交通
所在地
駅徒歩 賃料
管理費等
敷金/保証金
礼金
使用部分面積
坪数/坪単価
物件種目
築年月

札幌市南北線/幌平橋

北海道札幌市中央区南十三条西1丁目

5分

145.5872万円

12ヶ月 / なし

なし

273.46m²

82.72坪/1.76万円

貸店舗

1973年7月(築52年5ヶ月)

おすすめコメント  スタッフ: 山﨑 純一

人気の中島公園エリア☆スケルトン渡しで店舗アレンジの自由度が高いテナント☆内覧希望・詳細等はお気軽に、ご連絡ください☆TEL:011-222-4600

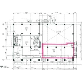
間取図

間取図

外観

外観

<
その他の画像
  • 室内
  • 室内
  • 室内
  • 室内
  • 設備
  • 設備
  • 設備
  • その他
  • トイレ
  • 外観
  • 共有部分
  • 周辺環境
  • 周辺環境
>
    • お問い合わせ
    交通

    札幌市南北線 幌平橋駅 徒歩5分

    その他の交通

    札幌市南北線 中島公園駅 徒歩9分

    札幌市電 行啓通駅 徒歩11分

    所在地 北海道札幌市中央区南十三条西1丁目
    物件種目 貸店舗
    賃料 145.5872万円 管理費等
    敷金 / 保証金 12ヶ月 / なし 礼金 なし
    敷引 坪単価 1.76万円
    保証金償却 権利金
    造作譲渡 その他一時金
    維持費等 保険等 要 火災
    使用部分面積 273.46m² 坪数 82.72坪
    築年月 1973年7月(築52年5ヶ月) 階建 / 階 地上8階地下2階建 / 1階
    駐車場 有 24,200円/月 バイク置き場
    駐輪場 土地面積
    接道状況 用途地域
    間取り 建物構造 SRC
    アピールポイント ☆人気の中島公園エリア
    ☆スケルトン渡しで店舗アレンジの自由度が高いテナント
    ☆内覧希望・詳細等はお気軽に、ご連絡ください
    ☆TEL:011-222-4600
    建物名・部屋番号 アスレチックテラス 101
    リフォーム履歴
    リノベーション履歴
    特記事項 スケルトン、土日・祝日利用可、飲食店可、駐車場3台分以上、都道府県道沿いに面する
    備考
    管理形態/管理員の勤務形態:-/-
    主要採光面:西向き
    エネルギー消費性能
    断熱性能
    目安光熱費
    バス・トイレ
    キッチン
    設備・サービス 換気口あり
    プロパンガス
    その他
    契約期間 5年 条件等
    引渡可能時期 相談 現況
    仲介手数料 1ヶ月    
    更新料 物件番号 6984651743
    情報公開日 2025年9月12日 次回更新予定日 2025年11月18日
    ケータイ用バーコード

    QRコード

    スマートフォンでこの物件を見る
    スマートフォンからもこの物件をご覧になれます。
    ※「-」と表示されている項目については、情報提供会社にご確認ください。

    この物件の周辺情報

    周辺施設 マックスバリュエクスプレス中の島店
    距離 807m
    周辺施設 ラルズマート中島公園店
    距離 885m
    周辺施設 セイコーマートながい店
    距離 221m
    周辺施設 セブンイレブン札幌山鼻店
    距離 952m
    周辺施設 私立札幌静修高校
    距離 821m
    周辺施設 札幌市立中島中学校
    距離 951m
    周辺施設 札幌市立中の島小学校
    距離 1077m
    周辺施設 中島公園
    距離 334m

    クイックお問い合わせ

    ここから簡単にお問い合わせをすることができます。
    (SSLでの暗号化での送信を希望されるお客さまは こちら よりお問い合わせください)

    お問い合わせ内容(必須)
    物件のお問い合わせ理由(必須)
    お名前・ご担当者様名(必須) 姓  名 
    メールアドレス(必須)
    ※携帯電話のメールアドレスをご入力される方はこちらをご確認ください
    電話番号(必須)
    - -
    備考欄 希望条件、物件案内希望日、質問などがございましたらご記入ください。
    お問い合わせを行う前に「個人情報の取り扱いについて」を必ずお読みください。
    「個人情報の取り扱いについて」に同意いただいた場合は「上記にご同意の上 確認画面へ進む」のボタンをクリックしてください。

    個人情報の取り扱いについて

    皆さまが送付された個人情報はアットホーム(株)のサーバを経由し、お問い合わせ先の不動産会社にメールまたはFAXにて転送されるためアットホーム(株)にも保管されます。アットホーム(株)で保管された個人情報の取り扱いについては、【こちら】をご覧ください。
    また、本画面でご記入いただいた個人情報は、お問い合わせ先の不動産会社でも保管します。 お問い合わせ先の不動産会社が保管する個人情報の取り扱いについては、不動産会社に直接お問い合わせください。

    情報提供会社

    情報提供会社

    NSホールディングス(株)

    北海道知事免許 石狩(2)第8879号

    交通:
    札幌市東西線/西11丁目駅 徒歩8分
    北海道札幌市中央区南四条西9丁目1006番地8 パワービル南4条 6F
    TEL:
    011-222-4600
    FAX:
    011-222-4601
    所属団体:
    (公社)全日本不動産協会会員
    (一社)北海道不動産公正取引協議会加盟

    取引態様:仲介

    • 会社情報
    • 10005680
    スマートフォンで
    この不動産会社を見る
    QRコード
    • お問い合わせ
    • 提携サイト等より掲載されている物件情報につきましては、不動産会社詳細情報にリンクされていないものがあります。
    • 物件に関するお問合せは、物件詳細ページの「情報提供会社」に表示されている不動産会社へ直接お願いいたします。
    • 間取図は、現況を優先させていただきます。
    • 映像は物件の一部を撮影したものです。物件の契約にあたっての最終判断はご自身の判断に基づいて行ってください。
    • 仲介手数料について仲介手数料

    アットホームは物件情報の適正化に努めております。 内容に誤りがある場合にはこちらへご連絡ください。


    物件画像: