賃貸や不動産はアットホーム-賃貸マンション・賃貸物件・不動産なら アットホーム

東京都中央区日本橋大伝馬町(小伝馬町駅)の貸店舗:物件詳細

  • 物件詳細
  • 情報の見方
  • 印刷用画面
交通
所在地
駅徒歩 賃料
管理費等
敷金/保証金
礼金
使用部分面積
坪数/坪単価
物件種目
築年月

東京メトロ日比谷線/小伝馬町

東京都中央区日本橋大伝馬町

4分

31.499万円

56,000円

なし / 2.2ヶ月

なし

54.04m²

16.34坪/1.9269万円

貸店舗・事務所

2024年12月(新築)

おすすめコメント

【期間限定キャンペーン♪】月内ご成約に限り新規出店応援期間限定キャンペーン実施中(保証金5ヶ月→2.2カ月/フリーレントも応相談下さい)

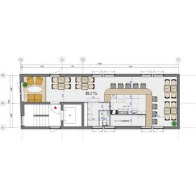
間取図

間取図

内装イメージレイアウト図

外観

外観

【期間限定キャンペーン♪】月内ご成約に限り新規出店応援期間限定キャンペーン実施中(保証金5ヶ月→2.2カ月/フリーレントも応相談下さい)

<
その他の画像
  • 室内
  • 郵便局
  • ショッピング施設
  • 銀行
  • コンビニ
  • 銀行
>
    • お問い合わせ
    交通

    東京メトロ日比谷線 小伝馬町駅 徒歩4分

    その他の交通

    JR総武本線 馬喰町駅 徒歩7分

    都営浅草線 人形町駅 徒歩8分

    所在地 東京都中央区日本橋大伝馬町
    物件種目 貸店舗・事務所
    賃料 31.499万円 管理費等 56,000円
    敷金 / 保証金 なし / 2.2ヶ月 礼金 なし
    敷引 坪単価 1.9269万円
    保証金償却 解約時2.2ヶ月 権利金
    造作譲渡 その他一時金
    維持費等 デジタルサイネージ費:19,800円/月、インターネット費:2,200円/月、袖看板費:6,600円/月 保険等
    使用部分面積 54.04m² 坪数 16.34坪
    築年月 2024年12月(新築) 階建 / 階 地上5階地下1階建 / 地下1階
    駐車場 バイク置き場
    駐輪場 土地面積
    接道状況 用途地域 商業地域
    間取り 建物構造 RC
    アピールポイント 【期間限定キャンペーン♪】月内ご成約に限り新規出店応援期間限定キャンペーン実施中(保証金5ヶ月→2.2カ月/フリーレントも応相談下さい)内見可♪/新築ビル♪/飲食店可♪/スケルトン渡し♪/商業地♪ 都営新宿線 馬喰横山 徒歩4分/都営浅草線 東日本橋 徒歩7分/JR総武本線 馬喰町 徒歩7分/都営浅草線 東日本橋 徒歩7分/都営浅草線 人形町 徒歩8分 内装レイアウト参考イメージ/内覧可/デジタルサイネージ費:月額19,800円(税込)、インターネット費:月額2,200円(税込)/袖看板費:月額6,600円(税込)/ 視認性良好 保証金償却:解約時2ヶ月 更新料:新賃料1.25ヶ月(内訳/更新料:新賃料1ヶ月、更新事務手数料:新賃料0.25ヶ月)賃貸保証:加入要 家賃保証会社利用必須/貸室契約面積は共用部分を含む。
    建物名・部屋番号 レイフォリア日本橋 B1F
    リフォーム履歴
    リノベーション履歴
    特記事項 スケルトン、24時間利用可、土曜日利用可、土日・祝日利用可、飲食店可、1フロア1テナント、角部屋
    備考
    賃貸保証等:加入要(家賃保証会社利用必須)
    管理形態/管理員の勤務形態:-/-
    主要採光面:北西向き
    内装レイアウト参考イメージ/内覧可/デジタルサイネージ費:月額19,800円(税込)、インターネット費:月額2,200円(税込)/袖看板費:月額6,600円(税込)/ 視認性良好 保証金償却:解約時2ヶ月 更新料:新賃料1.25ヶ月(内訳/更新料:新賃料1ヶ月、更新事務手数料:新賃料0.25ヶ月)賃貸保証:加入要 家賃保証会社利用必須/貸室契約面積は共用部分を含む。
    エネルギー消費性能
    断熱性能
    目安光熱費
    バス・トイレ
    キッチン
    設備・サービス 都市ガス、インターネット対応
    その他 エレベーター
    契約期間 2年 条件等
    引渡可能時期 即時 現況
    仲介手数料 1ヶ月    
    更新料 新賃料 1.25ヶ月 物件番号 6984474336
    情報公開日 2025年11月12日 次回更新予定日 2025年12月23日
    ケータイ用バーコード

    QRコード

    スマートフォンでこの物件を見る
    スマートフォンからもこの物件をご覧になれます。
    ※「-」と表示されている項目については、情報提供会社にご確認ください。

    この物件の周辺情報

    周辺施設 日本橋大伝馬町郵便局
    距離 91m
    周辺施設 まいばすけっと日本橋富沢町店
    距離 203m
    周辺施設 さわやか信用金庫東日本橋支店
    距離 149m
    周辺施設 ファミリーマート小伝馬町大門通り店
    距離 197m
    周辺施設 三菱UFJ銀行大伝馬町支店
    距離 227m

    クイックお問い合わせ

    ここから簡単にお問い合わせをすることができます。
    (SSLでの暗号化での送信を希望されるお客さまは こちら よりお問い合わせください)

    お問い合わせ内容(必須)
    物件のお問い合わせ理由(必須)
    お名前・ご担当者様名(必須) 姓  名 
    メールアドレス(必須)
    ※携帯電話のメールアドレスをご入力される方はこちらをご確認ください
    電話番号(必須)
    - -
    備考欄 希望条件、物件案内希望日、質問などがございましたらご記入ください。
    お問い合わせを行う前に「個人情報の取り扱いについて」を必ずお読みください。
    「個人情報の取り扱いについて」に同意いただいた場合は「上記にご同意の上 確認画面へ進む」のボタンをクリックしてください。

    個人情報の取り扱いについて

    皆さまが送付された個人情報はアットホーム(株)のサーバを経由し、お問い合わせ先の不動産会社にメールまたはFAXにて転送されるためアットホーム(株)にも保管されます。アットホーム(株)で保管された個人情報の取り扱いについては、【こちら】をご覧ください。
    また、本画面でご記入いただいた個人情報は、お問い合わせ先の不動産会社でも保管します。 お問い合わせ先の不動産会社が保管する個人情報の取り扱いについては、不動産会社に直接お問い合わせください。

    情報提供会社

    情報提供会社

    (株)イルタス

    東京都知事免許(14)第28721号

    交通:
    JR山手線/新橋駅 徒歩5分
    東京都中央区銀座8丁目4-26 横須賀第6ビル1F
    TEL:
    03-3573-5656
    FAX:
    03-3574-6002
    所属団体:
    (公社)東京都宅地建物取引業協会会員
    (公社)首都圏不動産公正取引協議会加盟

    取引態様:仲介

    • 会社情報
    • 00020091
    スマートフォンで
    この不動産会社を見る
    QRコード
    • お問い合わせ
    • 提携サイト等より掲載されている物件情報につきましては、不動産会社詳細情報にリンクされていないものがあります。
    • 物件に関するお問合せは、物件詳細ページの「情報提供会社」に表示されている不動産会社へ直接お願いいたします。
    • 間取図は、現況を優先させていただきます。
    • 映像は物件の一部を撮影したものです。物件の契約にあたっての最終判断はご自身の判断に基づいて行ってください。
    • 仲介手数料について仲介手数料

    アットホームは物件情報の適正化に努めております。 内容に誤りがある場合にはこちらへご連絡ください。


    物件画像: