賃貸や不動産はアットホーム-賃貸マンション・賃貸物件・不動産なら アットホーム

岩手県盛岡市大通1丁目(盛岡駅)の貸店舗:物件詳細

  • 物件詳細
  • 情報の見方
  • 印刷用画面
交通
所在地
駅徒歩 賃料
管理費等
敷金/保証金
礼金
使用部分面積
坪数/坪単価
物件種目
築年月

JR東北本線/盛岡

岩手県盛岡市大通1丁目

16分

18.1748万円

24,233円

6ヶ月 / なし

なし

72.84m²

22.03坪/0.8249万円

貸店舗・事務所

1972年11月(築53年2ヶ月)

おすすめコメント

盛岡市大通1丁目アーケード内 2階部分約22坪 現況スケルトン状態 用途業態応相談 出店時のビル側サポート工事については弊社テナント担当者までお問合せください!

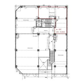
間取図

間取図

参考平面図赤枠内リースライン

外観

外観

その他の画像
  • 外観
    • お問い合わせ
    交通

    JR東北本線 盛岡駅 徒歩16分

    所在地 岩手県盛岡市大通1丁目
    物件種目 貸店舗・事務所
    賃料 18.1748万円 管理費等 24,233円
    敷金 / 保証金 6ヶ月 / なし 礼金 なし
    敷引 坪単価 0.8249万円
    保証金償却 権利金
    造作譲渡 その他一時金
    維持費等 保険等 要 賠償責任
    使用部分面積 72.84m² 坪数 22.03坪
    築年月 1972年11月(築53年2ヶ月) 階建 / 階 3階建 / 2階
    駐車場 バイク置き場
    駐輪場 土地面積
    接道状況 用途地域 商業地域
    間取り 建物構造 RC
    建物名・部屋番号 204
    リフォーム履歴
    リノベーション履歴
    特記事項 飲食店可
    備考
    賃貸保証等:加入要(保証料借主負担)
    管理形態/管理員の勤務形態:-/-
    高圧受電分電盤 上下水道 都市ガス 
    電灯シャッター EV1基
    現況スケルトン表し状態 工事区分及びビル側サポート工事応相談
    用途賃貸条件応相談 塵芥費別途
    賃料及び共益費消費税含む 
    エネルギー消費性能
    断熱性能
    目安光熱費
    バス・トイレ
    キッチン
    設備・サービス
    その他
    契約期間 3年 条件等
    引渡可能時期 相談 現況
    更新料 物件番号 6984407735
    情報公開日 2024年12月4日 次回更新予定日 2025年12月19日
    ケータイ用バーコード

    QRコード

    スマートフォンでこの物件を見る
    スマートフォンからもこの物件をご覧になれます。
    ※「-」と表示されている項目については、情報提供会社にご確認ください。

    この物件の周辺情報

    周辺施設 パルクアベニューカワトク
    距離 259m
    周辺施設 セブンイレブン盛岡映画館通店
    距離 120m
    周辺施設 松屋盛岡大通店
    距離 83m
    周辺施設 ドトールコーヒーショップ盛岡中央店
    距離 74m
    周辺施設 ミスタードーナツ盛岡大通ショップ
    距離 133m
    周辺施設 ハンバーグのベル大通店
    距離 114m
    周辺施設 ダイソー盛岡大通店
    距離 120m
    周辺施設 セカンドストリート盛岡店
    距離 160m

    クイックお問い合わせ

    ここから簡単にお問い合わせをすることができます。
    (SSLでの暗号化での送信を希望されるお客さまは こちら よりお問い合わせください)

    お問い合わせ内容(必須)
    物件のお問い合わせ理由(必須)
    お名前・ご担当者様名(必須) 姓  名 
    メールアドレス(必須)
    ※携帯電話のメールアドレスをご入力される方はこちらをご確認ください
    電話番号(必須)
    - -
    備考欄 希望条件、物件案内希望日、質問などがございましたらご記入ください。
    お問い合わせを行う前に「個人情報の取り扱いについて」を必ずお読みください。
    「個人情報の取り扱いについて」に同意いただいた場合は「上記にご同意の上 確認画面へ進む」のボタンをクリックしてください。

    個人情報の取り扱いについて

    皆さまが送付された個人情報はアットホーム(株)のサーバを経由し、お問い合わせ先の不動産会社にメールまたはFAXにて転送されるためアットホーム(株)にも保管されます。アットホーム(株)で保管された個人情報の取り扱いについては、【こちら】をご覧ください。
    また、本画面でご記入いただいた個人情報は、お問い合わせ先の不動産会社でも保管します。 お問い合わせ先の不動産会社が保管する個人情報の取り扱いについては、不動産会社に直接お問い合わせください。

    情報提供会社

    情報提供会社

    大興産業(株)

    岩手県知事免許(11)第1164号

    交通:
    東北新幹線/盛岡駅
    岩手県盛岡市菜園2丁目7-33 トーカンジェネラス菜園・公園通り2Fー4
    TEL:
    019-652-3830
    所属団体:
    (一社)岩手県宅地建物取引業協会会員
    東北地区不動産公正取引協議会加盟

    取引態様:仲介

    • 会社情報
    • 20006931
    スマートフォンで
    この不動産会社を見る
    QRコード
    • お問い合わせ
    • 提携サイト等より掲載されている物件情報につきましては、不動産会社詳細情報にリンクされていないものがあります。
    • 物件に関するお問合せは、物件詳細ページの「情報提供会社」に表示されている不動産会社へ直接お願いいたします。
    • 間取図は、現況を優先させていただきます。
    • 映像は物件の一部を撮影したものです。物件の契約にあたっての最終判断はご自身の判断に基づいて行ってください。
    • 仲介手数料について仲介手数料

    アットホームは物件情報の適正化に努めております。 内容に誤りがある場合にはこちらへご連絡ください。


    物件画像: