賃貸や不動産はアットホーム-賃貸マンション・賃貸物件・不動産なら アットホーム

岡山県岡山市南区福浜町の貸店舗:物件詳細

  • 物件詳細
  • 情報の見方
  • 印刷用画面
交通
所在地
駅徒歩 賃料
管理費等
敷金/保証金
礼金
使用部分面積
坪数/坪単価
物件種目
築年月

【バス】福浜市営住宅前 岡電、両備 停歩2分

岡山県岡山市南区福浜町


33万円

5,500円

1ヶ月 / なし

1ヶ月

119.24m²

36.06坪/0.9149万円

貸店舗・事務所

2024年11月(築1年4ヶ月・未入居)

おすすめコメント

新築テナント 店舗・事務所用です(^^♪ 駐車場10台契約です!

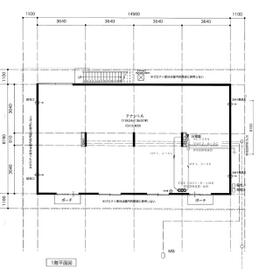
間取図

間取図

新築テナント12月完成 店舗・事務所用です(^^♪

外観

外観

1F面積約36.07坪 スケルトン渡し

その他の画像
  • 駐車場
  • 駐車場
  • 駐車場
  • 外観
  • 外観
  • 外観
  • 室内
  • 室内
    • お問い合わせ
    交通

    【バス】 福浜市営住宅前 岡電、両備 停歩2分

    所在地 岡山県岡山市南区福浜町
    物件種目 貸店舗・事務所
    賃料 33万円 管理費等 5,500円
    敷金 / 保証金 1ヶ月 / なし 礼金 1ヶ月
    敷引 坪単価 0.9149万円
    保証金償却 権利金
    造作譲渡 その他一時金
    維持費等 保険等 要 2年 借家人賠償
    使用部分面積 119.24m² 坪数 36.06坪
    築年月 2024年11月(築1年4ヶ月・未入居) 階建 / 階 2階建 / 1階
    駐車場 有 55,000円/月(空き10台)
    駐車場10台契約
    バイク置き場
    駐輪場 土地面積 514.00m²(公簿)
    接道状況 北 11.0m 公道 ・ 南 7.0m 公道 ・ 二方道路 用途地域 近隣商業
    間取り 建物構造 木造
    アピールポイント 原状有姿渡しになります。現地をご確認ください。
    間仕切りがされています、トイレ2カ所設置有
    ※飲食業の場合は敷金・礼金など条件変更有。
    建物名・部屋番号 福浜テナント1F 101
    リフォーム履歴
    リノベーション履歴
    特記事項 スケルトン、1フロア1テナント、駐車場3台分以上
    備考
    賃貸保証等:加入要(日本セーフティ㈱加入 初回保証料:総額賃料の1カ月分、1年毎総額賃料の10%の額が必要)
    管理形態/管理員の勤務形態:-/-
    主要採光面:南向き
    スケルトン渡し
    ※飲食業の場合は敷金・礼金など条件変更有。
    エネルギー消費性能
    断熱性能
    目安光熱費
    バス・トイレ トイレ2ヶ所、トイレ
    キッチン
    設備・サービス
    その他
    契約期間 3年 条件等
    引渡可能時期 即時 現況 完成済
    更新料 なし 物件番号 6983751180
    情報公開日 2026年2月1日 次回更新予定日 2026年2月20日
    ケータイ用バーコード

    QRコード

    スマートフォンでこの物件を見る
    スマートフォンからもこの物件をご覧になれます。
    ※「-」と表示されている項目については、情報提供会社にご確認ください。

    この物件の周辺情報

    周辺施設 ハローズ岡南店
    距離 588m
    周辺施設 コープ福富
    距離 731m
    周辺施設 フクハマショッピングセンター
    距離 745m
    周辺施設 マルナカ平福店
    距離 911m
    周辺施設 岡山市立福浜中学校
    距離 222m
    周辺施設 岡山市立福浜小学校
    距離 980m
    周辺施設 医療法人天翔会セントラルシティ病院
    距離 1459m
    周辺施設 TOHOシネマズ岡南
    距離 1843m

    クイックお問い合わせ

    ここから簡単にお問い合わせをすることができます。
    (SSLでの暗号化での送信を希望されるお客さまは こちら よりお問い合わせください)

    お問い合わせ内容(必須)
    物件のお問い合わせ理由(必須)
    お名前・ご担当者様名(必須) 姓  名 
    メールアドレス(必須)
    ※携帯電話のメールアドレスをご入力される方はこちらをご確認ください
    電話番号(必須)
    - -
    備考欄 希望条件、物件案内希望日、質問などがございましたらご記入ください。
    お問い合わせを行う前に「個人情報の取り扱いについて」を必ずお読みください。
    「個人情報の取り扱いについて」に同意いただいた場合は「上記にご同意の上 確認画面へ進む」のボタンをクリックしてください。

    個人情報の取り扱いについて

    皆さまが送付された個人情報はアットホーム(株)のサーバを経由し、お問い合わせ先の不動産会社にメールまたはFAXにて転送されるためアットホーム(株)にも保管されます。アットホーム(株)で保管された個人情報の取り扱いについては、【こちら】をご覧ください。
    また、本画面でご記入いただいた個人情報は、お問い合わせ先の不動産会社でも保管します。 お問い合わせ先の不動産会社が保管する個人情報の取り扱いについては、不動産会社に直接お問い合わせください。

    情報提供会社

    情報提供会社

    ホームメイトFC倉敷白楽町店(株)クローバー不動産

    岡山県知事免許(2)第5794号

    交通:
    JR山陽本線/倉敷駅 徒歩22分 【バス】3分 商工会館前
    岡山県倉敷市白楽町113-11 暮らしのニュースビル1F
    TEL:
    086-454-7600
    所属団体:
    (公社)岡山県宅地建物取引業協会会員
    中国地区不動産公正取引協議会加盟

    取引態様:貸主

    • 会社情報
    • 50103798
    スマートフォンで
    この不動産会社を見る
    QRコード
    • お問い合わせ
    • 提携サイト等より掲載されている物件情報につきましては、不動産会社詳細情報にリンクされていないものがあります。
    • 物件に関するお問合せは、物件詳細ページの「情報提供会社」に表示されている不動産会社へ直接お願いいたします。
    • 間取図は、現況を優先させていただきます。
    • 映像は物件の一部を撮影したものです。物件の契約にあたっての最終判断はご自身の判断に基づいて行ってください。
    • 仲介手数料について仲介手数料

    アットホームは物件情報の適正化に努めております。 内容に誤りがある場合にはこちらへご連絡ください。


    物件画像: