賃貸や不動産はアットホーム-賃貸マンション・賃貸物件・不動産なら アットホーム

群馬県太田市高林東町(西小泉駅)の貸店舗:物件詳細

  • 物件詳細
  • 情報の見方
  • 印刷用画面
交通
所在地
駅徒歩 賃料
管理費等
敷金/保証金
礼金
使用部分面積
坪数/坪単価
物件種目
築年月

東武小泉線/西小泉

群馬県太田市高林東町

41分

15.8万円

2,000円

1ヶ月 / なし

なし

52.17m²

15.78坪/1.0012万円

貸店舗・事務所

2025年11月(新築)

おすすめコメント  スタッフ: 石塚 幸介

業種に合わせて内装(クロス・フロアー)カラーセレクト可能です♪2025.11 完成済み 弊社新社屋併設の貸事務所です。国道沿いで、ロードサイド希望の方にはぴったりです。

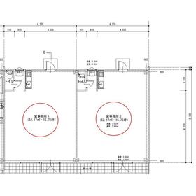
間取図

間取図

ミニキッチン、洗面化粧台、トイレ付きです

外観

外観

<
その他の画像
  • 外観
  • 外観
  • 外観
  • 駐車場
  • 間取図
  • 外観
  • 外観
  • 外観
  • 外観
  • 外観
  • その他
  • 外観
  • 外観
  • 外観
>
    • お問い合わせ
    交通

    東武小泉線 西小泉駅 徒歩41分

    所在地 群馬県太田市高林東町
    物件種目 貸店舗・事務所
    賃料 15.8万円 管理費等 2,000円
    敷金 / 保証金 1ヶ月 / なし 礼金 なし
    敷引 坪単価 1.0012万円
    保証金償却 権利金
    造作譲渡 その他一時金
    維持費等 保険等
    使用部分面積 52.17m² 坪数 15.78坪
    築年月 2025年11月(新築) 階建 / 階 2階建 / 1階
    駐車場 有 無料(空き2台) バイク置き場
    駐輪場 土地面積 546.46m²(公簿)
    接道状況 南 6.0m 公道 ・ 南 21.1m 公道 ・ 二方道路 用途地域 準工業
    間取り ワンルーム 建物構造 鉄骨造
    アピールポイント ロードサイドで、会社の認知度UPにもつなげられます。
    建物名・部屋番号 & terrace terrace C
    リフォーム履歴
    リノベーション履歴
    特記事項 24時間利用可、土日・祝日利用可、飲食店不可、駐車場2台分、角部屋、国道沿いに面する
    備考
    管理形態/管理員の勤務形態:-/-
    エネルギー消費性能
    断熱性能
    目安光熱費
    バス・トイレ 共用部分にトイレあり
    キッチン
    設備・サービス 給湯、エアコン、複層ガラス
    その他
    契約期間 3年 条件等
    引渡可能時期 相談 現況 完成済
    仲介手数料 不要 適格請求書発行
    更新料 新賃料 1ヶ月 物件番号 6983602186
    情報公開日 2024年9月22日 次回更新予定日 2025年12月27日
    ケータイ用バーコード

    QRコード

    スマートフォンでこの物件を見る
    スマートフォンからもこの物件をご覧になれます。
    ※「-」と表示されている項目については、情報提供会社にご確認ください。

    この物件の周辺情報

    周辺施設 とりせん東矢島店
    距離 1743m
    周辺施設 セブンイレブン太田市古戸町店
    距離 133m
    周辺施設 ミニストップ太田南矢島町店
    距離 722m
    周辺施設 ローソン太田高林東店
    距離 896m
    周辺施設 ウエルシア太田南矢島店
    距離 771m
    周辺施設 高林郵便局
    距離 1051m
    周辺施設 カインズ大泉店
    距離 2801m
    周辺施設 ベイシアマート太田富沢店
    距離 2920m

    クイックお問い合わせ

    ここから簡単にお問い合わせをすることができます。
    (SSLでの暗号化での送信を希望されるお客さまは こちら よりお問い合わせください)

    お問い合わせ内容(必須)
    物件のお問い合わせ理由(必須)
    お名前・ご担当者様名(必須) 姓  名 
    メールアドレス(必須)
    ※携帯電話のメールアドレスをご入力される方はこちらをご確認ください
    電話番号(必須)
    - -
    備考欄 希望条件、物件案内希望日、質問などがございましたらご記入ください。
    お問い合わせを行う前に「個人情報の取り扱いについて」を必ずお読みください。
    「個人情報の取り扱いについて」に同意いただいた場合は「上記にご同意の上 確認画面へ進む」のボタンをクリックしてください。

    個人情報の取り扱いについて

    皆さまが送付された個人情報はアットホーム(株)のサーバを経由し、お問い合わせ先の不動産会社にメールまたはFAXにて転送されるためアットホーム(株)にも保管されます。アットホーム(株)で保管された個人情報の取り扱いについては、【こちら】をご覧ください。
    また、本画面でご記入いただいた個人情報は、お問い合わせ先の不動産会社でも保管します。 お問い合わせ先の不動産会社が保管する個人情報の取り扱いについては、不動産会社に直接お問い合わせください。

    情報提供会社

    情報提供会社

    (株)C&M 不動産・空き家相談事業部

    群馬県知事免許(1)第7844号

    交通:
    東武小泉線/西小泉駅 徒歩41分
    群馬県太田市高林東町1217-1 
    TEL:
    0276-61-3737
    FAX:
    0276-49-6102
    所属団体:
    (一社)群馬県宅地建物取引業協会会員
    (公社)首都圏不動産公正取引協議会加盟

    取引態様:貸主

    • 会社情報
    • 00276719
    スマートフォンで
    この不動産会社を見る
    QRコード
    • お問い合わせ
    • 提携サイト等より掲載されている物件情報につきましては、不動産会社詳細情報にリンクされていないものがあります。
    • 物件に関するお問合せは、物件詳細ページの「情報提供会社」に表示されている不動産会社へ直接お願いいたします。
    • 間取図は、現況を優先させていただきます。
    • 映像は物件の一部を撮影したものです。物件の契約にあたっての最終判断はご自身の判断に基づいて行ってください。
    • 仲介手数料について仲介手数料

    アットホームは物件情報の適正化に努めております。 内容に誤りがある場合にはこちらへご連絡ください。


    物件画像: