賃貸や不動産はアットホーム-賃貸マンション・賃貸物件・不動産なら アットホーム

熊本県熊本市中央区黒髪5丁目(東海学園前駅)の貸店舗:物件詳細

  • 物件詳細
  • 情報の見方
  • 印刷用画面
交通
所在地
駅徒歩 賃料
管理費等
敷金/保証金
礼金
使用部分面積
坪数/坪単価
物件種目
築年月

JR豊肥本線/東海学園前
[バス利用可] バス 一里木 停歩5分

熊本県熊本市中央区黒髪5丁目

23分

11万円

3ヶ月 / なし

なし

41.06m²

12.42坪/0.8857万円

貸店舗

1969年1月(築57年2ヶ月)

おすすめコメント

隠れ家的な雰囲気で自然豊かな場所で、のんびり事業をされたい方におススメです。前入居者のためパン屋向け改装しており、ほぼ使用しておりませんので、これからオープンされる方にもおススメです。

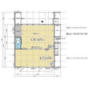
間取図

間取図

外観

外観

その他の画像
  • 室内
  • 室内
  • 室内
  • 室内
  • トイレ
  • 収納
    • お問い合わせ
    交通

    JR豊肥本線 東海学園前駅 徒歩23分
    [バス利用可] バス 一里木 停歩5分

    所在地 熊本県熊本市中央区黒髪5丁目
    物件種目 貸店舗
    賃料 11万円 管理費等
    敷金 / 保証金 3ヶ月 / なし 礼金 なし
    敷引 坪単価 0.8857万円
    保証金償却 権利金
    造作譲渡 その他一時金
    維持費等 更新事務手数料(2年毎):11,000円/年 保険等 要 2年 借家人賠償責任
    使用部分面積 41.06m² 坪数 12.42坪
    築年月 1969年1月(築57年2ヶ月) 階建 / 階 2階建 / 1階
    駐車場 有 無料(空き1台) バイク置き場
    駐輪場 土地面積
    接道状況 北 4.0m 公道 用途地域
    間取り ワンルーム 建物構造 木造
    アピールポイント ・黒髪五丁目で物件をお探しの方におススメです。

    ・「一里木」より徒歩約5分。

    ・床面積 41.06㎡ 

    ・店舗前には駐車1台可能。

    ・内覧可能。お気軽にお問合せ下さい。
    建物名・部屋番号 黒髪五丁目テナント
    リフォーム履歴 ■水回り:2023年7月
    トイレ、給排水管
    ■内装:2023年7月
    内装全面(床・壁・天井・建具)
    ※実施年月は最も古い履歴を表示
    リノベーション履歴
    特記事項 土曜日利用可、土日・祝日利用可、飲食店可、1フロア1テナント
    備考
    賃貸保証等:加入要(ジェイリース株式会社(初回保証料 賃料×100%、継続保証料 賃料×10%))
    管理形態/管理員の勤務形態:-/-
    ・賃料 110,000円(消費税10%込)
    ・敷金 3ヶ月分(330,000円)
    ・初回保証料 110,000円
    ・継続保証料 11,000円((賃料+管理費)×10%)/年毎
    ・家財保険料 別途(借家人にて加入要)
    エネルギー消費性能
    断熱性能
    目安光熱費
    バス・トイレ トイレ
    キッチン
    設備・サービス 排水設備あり
    収納スペース、給湯、プロパンガス
    その他
    契約期間 2年 条件等
    引渡可能時期 相談 現況
    仲介手数料 1.1ヶ月    
    更新料 なし 物件番号 6983569861
    情報公開日 2026年2月6日 次回更新予定日 2026年2月20日
    ケータイ用バーコード

    QRコード

    スマートフォンでこの物件を見る
    スマートフォンからもこの物件をご覧になれます。
    ※「-」と表示されている項目については、情報提供会社にご確認ください。

    この物件の周辺情報

    周辺施設 ファミリーマート熊本黒髪6丁目店
    距離 525m
    周辺施設 セブンイレブン熊本黒髪5丁目店
    距離 535m
    周辺施設 国立熊本大学
    距離 775m
    周辺施設 幼保連携型認定こども園くるみ幼稚園
    距離 1982m
    周辺施設 尚和会龍田病院
    距離 832m
    周辺施設 熊本黒髪六郵便局
    距離 595m
    周辺施設 肥後銀行北熊本支店
    距離 1668m
    周辺施設 桜山神社緑地
    距離 399m

    クイックお問い合わせ

    ここから簡単にお問い合わせをすることができます。
    (SSLでの暗号化での送信を希望されるお客さまは こちら よりお問い合わせください)

    お問い合わせ内容(必須)
    物件のお問い合わせ理由(必須)
    お名前・ご担当者様名(必須) 姓  名 
    メールアドレス(必須)
    ※携帯電話のメールアドレスをご入力される方はこちらをご確認ください
    電話番号(必須)
    - -
    備考欄 希望条件、物件案内希望日、質問などがございましたらご記入ください。
    お問い合わせを行う前に「個人情報の取り扱いについて」を必ずお読みください。
    「個人情報の取り扱いについて」に同意いただいた場合は「上記にご同意の上 確認画面へ進む」のボタンをクリックしてください。

    個人情報の取り扱いについて

    皆さまが送付された個人情報はアットホーム(株)のサーバを経由し、お問い合わせ先の不動産会社にメールまたはFAXにて転送されるためアットホーム(株)にも保管されます。アットホーム(株)で保管された個人情報の取り扱いについては、【こちら】をご覧ください。
    また、本画面でご記入いただいた個人情報は、お問い合わせ先の不動産会社でも保管します。 お問い合わせ先の不動産会社が保管する個人情報の取り扱いについては、不動産会社に直接お問い合わせください。

    情報提供会社

    情報提供会社

    新産不動産(株)

    熊本県知事免許(12)第2019号

    交通:
    JR鹿児島本線/川尻駅 徒歩34分
    熊本県熊本市南区近見8丁目9-85 
    TEL:
    0120-096-312
    FAX:
    096-353-1521
    所属団体:
    (公社)熊本県宅地建物取引業協会会員
    (一社)九州不動産公正取引協議会加盟

    取引態様:仲介

    • 会社情報
    • 80502355
    スマートフォンで
    この不動産会社を見る
    QRコード
    • お問い合わせ
    • 提携サイト等より掲載されている物件情報につきましては、不動産会社詳細情報にリンクされていないものがあります。
    • 物件に関するお問合せは、物件詳細ページの「情報提供会社」に表示されている不動産会社へ直接お願いいたします。
    • 間取図は、現況を優先させていただきます。
    • 映像は物件の一部を撮影したものです。物件の契約にあたっての最終判断はご自身の判断に基づいて行ってください。
    • 仲介手数料について仲介手数料

    アットホームは物件情報の適正化に努めております。 内容に誤りがある場合にはこちらへご連絡ください。


    物件画像: