賃貸や不動産はアットホーム-賃貸マンション・賃貸物件・不動産なら アットホーム

岩手県盛岡市本町通1丁目(上盛岡駅)の貸店舗:物件詳細

  • 物件詳細
  • 情報の見方
  • 印刷用画面
交通
所在地
駅徒歩 賃料
管理費等
敷金/保証金
礼金
使用部分面積
坪数/坪単価
物件種目
築年月

JR山田線/上盛岡

岩手県盛岡市本町通1丁目

13分

15万円

12,000円

2ヶ月 / なし

なし

109.93m²

33.25坪/0.4511万円

貸店舗

1980年9月(築45年4ヶ月)

おすすめコメント

盛岡市中心部に位置している一階路面店の店舗・事務所物件となります♪

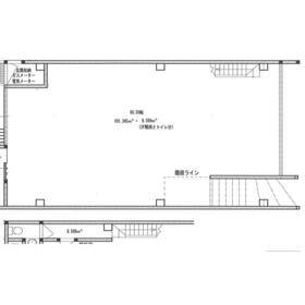
間取図

間取図

その他の画像
    • お問い合わせ
    交通

    JR山田線 上盛岡駅 徒歩13分

    その他の交通

    東北新幹線 盛岡駅 徒歩24分

    所在地 岩手県盛岡市本町通1丁目
    物件種目 貸店舗
    賃料 15万円 管理費等 12,000円
    敷金 / 保証金 2ヶ月 / なし 礼金 なし
    敷引 坪単価 0.4511万円
    保証金償却 権利金
    造作譲渡 その他一時金
    維持費等 保険等
    使用部分面積 109.93m² 坪数 33.25坪
    築年月 1980年9月(築45年4ヶ月) 階建 / 階 3階建 / 1階
    駐車場 バイク置き場
    駐輪場 土地面積
    接道状況 用途地域
    間取り 建物構造 鉄骨造
    アピールポイント ★内覧ご希望の際は事前にご連絡ください★
    盛岡市中心部に位置している一階路面店の店舗・事務所物件となります♪
    周辺は岩手医大や岩手県庁などの官公庁が点在しております。
    出店業種の可否についてはお問合せ下さい。
    建物名・部屋番号 本町通り店舗・事務所
    リフォーム履歴
    リノベーション履歴
    特記事項
    備考
    賃貸保証等:加入要(保証料:総額賃料の100%)
    管理形態/管理員の勤務形態:-/-
    ・1階101.34㎡+2階トイレ分8.59㎡=計109.93㎡
    ・掲載写真の什器類は全て撤去済みとなります。
    ・出店業種の可否ついてはご相談ください。
    エネルギー消費性能
    断熱性能
    目安光熱費
    バス・トイレ トイレ
    キッチン
    設備・サービス 電動シャッター、都市ガス、動力あり
    その他
    契約期間 3年 条件等
    引渡可能時期 相談 現況
    適格請求書発行 不可
    更新料 11,000円 物件番号 6983490415
    情報公開日 2024年9月11日 次回更新予定日 2025年12月18日
    ケータイ用バーコード

    QRコード

    スマートフォンでこの物件を見る
    スマートフォンからもこの物件をご覧になれます。
    ※「-」と表示されている項目については、情報提供会社にご確認ください。

    この物件の周辺情報

    周辺施設 ジョイス本町店
    距離 579m
    周辺施設 パルクアベニューカワトク
    距離 835m
    周辺施設 ファミリーマート盛岡本町通一丁目店
    距離 41m
    周辺施設 私立岩手医科大学
    距離 59m
    周辺施設 岩手県庁
    距離 311m
    周辺施設 盛岡市役所
    距離 600m
    周辺施設 岩手県警察本部
    距離 365m
    周辺施設 石割ザクラ
    距離 330m

    クイックお問い合わせ

    ここから簡単にお問い合わせをすることができます。
    (SSLでの暗号化での送信を希望されるお客さまは こちら よりお問い合わせください)

    お問い合わせ内容(必須)
    物件のお問い合わせ理由(必須)
    お名前・ご担当者様名(必須) 姓  名 
    メールアドレス(必須)
    ※携帯電話のメールアドレスをご入力される方はこちらをご確認ください
    電話番号(必須)
    - -
    備考欄 希望条件、物件案内希望日、質問などがございましたらご記入ください。
    お問い合わせを行う前に「個人情報の取り扱いについて」を必ずお読みください。
    「個人情報の取り扱いについて」に同意いただいた場合は「上記にご同意の上 確認画面へ進む」のボタンをクリックしてください。

    個人情報の取り扱いについて

    皆さまが送付された個人情報はアットホーム(株)のサーバを経由し、お問い合わせ先の不動産会社にメールまたはFAXにて転送されるためアットホーム(株)にも保管されます。アットホーム(株)で保管された個人情報の取り扱いについては、【こちら】をご覧ください。
    また、本画面でご記入いただいた個人情報は、お問い合わせ先の不動産会社でも保管します。 お問い合わせ先の不動産会社が保管する個人情報の取り扱いについては、不動産会社に直接お問い合わせください。

    情報提供会社

    情報提供会社

    (株)リョーリン

    岩手県知事免許(4)第2289号

    交通:
    いわて銀河鉄道線/青山駅 徒歩15分 【バス】 県交通青山四丁目 停歩2分
    岩手県盛岡市青山4丁目44-5 
    TEL:
    019-641-3889
    FAX:
    019-641-3892
    所属団体:
    (一社)岩手県宅地建物取引業協会会員
    東北地区不動産公正取引協議会加盟

    取引態様:仲介

    • 会社情報
    • 20002337
    スマートフォンで
    この不動産会社を見る
    QRコード
    • お問い合わせ
    • 提携サイト等より掲載されている物件情報につきましては、不動産会社詳細情報にリンクされていないものがあります。
    • 物件に関するお問合せは、物件詳細ページの「情報提供会社」に表示されている不動産会社へ直接お願いいたします。
    • 間取図は、現況を優先させていただきます。
    • 映像は物件の一部を撮影したものです。物件の契約にあたっての最終判断はご自身の判断に基づいて行ってください。
    • 仲介手数料について仲介手数料

    アットホームは物件情報の適正化に努めております。 内容に誤りがある場合にはこちらへご連絡ください。


    物件画像: