賃貸や不動産はアットホーム-賃貸マンション・賃貸物件・不動産なら アットホーム

愛知県名古屋市西区市場木町(庄内緑地公園駅)の貸店舗:物件詳細

  • 物件詳細
  • 情報の見方
  • 印刷用画面
交通
所在地
駅徒歩 賃料
管理費等
敷金/保証金
礼金
使用部分面積
坪数/坪単価
物件種目
築年月

名古屋市鶴舞線/庄内緑地公園

愛知県名古屋市西区市場木町

3分

13.75万円

なし / 3ヶ月

なし

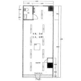
48.30m²

14.61坪/0.9411万円

貸店舗・事務所

1975年1月(築51年2ヶ月)

  • お問い合わせ
交通

名古屋市鶴舞線 庄内緑地公園駅 徒歩3分

所在地 愛知県名古屋市西区市場木町
物件種目 貸店舗・事務所
賃料 13.75万円 管理費等
敷金 / 保証金 なし / 3ヶ月 礼金 なし
敷引 坪単価 0.9411万円
保証金償却 権利金
造作譲渡 その他一時金 なし
維持費等 保険等
使用部分面積 48.30m² 坪数 14.61坪
築年月 1975年1月(築51年2ヶ月) 階建 / 階 4階建 / 1階
駐車場 有 無料 バイク置き場
駐輪場 土地面積
接道状況 用途地域 近隣商業
間取り 建物構造 RC
建物名・部屋番号 定蔵ビル
リフォーム履歴
リノベーション履歴
特記事項
備考
管理形態/管理員の勤務形態:-/-
保証金100パーセント償却 屋根付駐車場1台10000円 青空駐車場1台8000円
エネルギー消費性能
断熱性能
目安光熱費
バス・トイレ 専有部分にトイレあり
キッチン
設備・サービス 収納スペース、都市ガス、エアコン
その他
契約期間 2年 条件等
引渡可能時期 相談 現況
更新料 物件番号 6983115964
情報公開日 2025年11月28日 次回更新予定日 2026年2月20日
ケータイ用バーコード

QRコード

スマートフォンでこの物件を見る
スマートフォンからもこの物件をご覧になれます。
※「-」と表示されている項目については、情報提供会社にご確認ください。

クイックお問い合わせ

ここから簡単にお問い合わせをすることができます。
(SSLでの暗号化での送信を希望されるお客さまは こちら よりお問い合わせください)

お問い合わせ内容(必須)
物件のお問い合わせ理由(必須)
お名前・ご担当者様名(必須) 姓  名 
メールアドレス(必須)
※携帯電話のメールアドレスをご入力される方はこちらをご確認ください
電話番号(必須)
- -
備考欄 希望条件、物件案内希望日、質問などがございましたらご記入ください。
お問い合わせを行う前に「個人情報の取り扱いについて」を必ずお読みください。
「個人情報の取り扱いについて」に同意いただいた場合は「上記にご同意の上 確認画面へ進む」のボタンをクリックしてください。

個人情報の取り扱いについて

皆さまが送付された個人情報はアットホーム(株)のサーバを経由し、お問い合わせ先の不動産会社にメールまたはFAXにて転送されるためアットホーム(株)にも保管されます。アットホーム(株)で保管された個人情報の取り扱いについては、【こちら】をご覧ください。
また、本画面でご記入いただいた個人情報は、お問い合わせ先の不動産会社でも保管します。 お問い合わせ先の不動産会社が保管する個人情報の取り扱いについては、不動産会社に直接お問い合わせください。

情報提供会社

情報提供会社

小田井不動産(株)

愛知県知事免許(17)第819号

交通:
名古屋市鶴舞線/庄内緑地公園駅
愛知県名古屋市西区市場木町1 
TEL:
052-501-6101
FAX:
052-501-0608
所属団体:
(公社)愛知県宅地建物取引業協会会員
東海不動産公正取引協議会加盟

取引態様:仲介

  • 会社情報
  • 40000293
スマートフォンで
この不動産会社を見る
QRコード
  • お問い合わせ
  • 提携サイト等より掲載されている物件情報につきましては、不動産会社詳細情報にリンクされていないものがあります。
  • 物件に関するお問合せは、物件詳細ページの「情報提供会社」に表示されている不動産会社へ直接お願いいたします。
  • 間取図は、現況を優先させていただきます。
  • 映像は物件の一部を撮影したものです。物件の契約にあたっての最終判断はご自身の判断に基づいて行ってください。
  • 仲介手数料について仲介手数料

アットホームは物件情報の適正化に努めております。 内容に誤りがある場合にはこちらへご連絡ください。


物件画像: