賃貸や不動産はアットホーム-賃貸マンション・賃貸物件・不動産なら アットホーム

大阪府大阪市西成区玉出西2丁目(玉出駅)の貸店舗:物件詳細

  • 物件詳細
  • 情報の見方
  • 印刷用画面
交通
所在地
駅徒歩 賃料
管理費等
敷金/保証金
礼金
使用部分面積
坪数/坪単価
物件種目
築年月

地下鉄四つ橋線/玉出 新着

大阪府大阪市西成区玉出西2丁目

1分

19.8万円

19,976円

6ヶ月 / なし

なし

60.04m²

18.16坪/1.0902万円

貸店舗・事務所

2023年1月(築2年11ヶ月)

おすすめコメント

事務所仕様となっています。

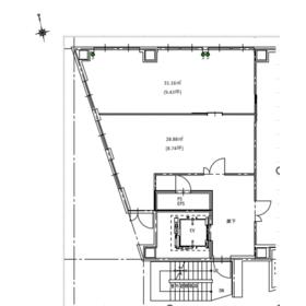
間取図

間取図

外観

外観

<
その他の画像
  • 室内
  • 室内
  • 室内
  • 室内
  • 設備
  • 設備
  • 設備
  • 眺望
  • エントランス
  • 共有部分
  • 外観
>
    • お問い合わせ
    交通

    地下鉄四つ橋線 玉出駅 徒歩1分

    所在地 大阪府大阪市西成区玉出西2丁目
    物件種目 貸店舗・事務所
    賃料 19.8万円 管理費等 19,976円
    敷金 / 保証金 6ヶ月 / なし 礼金 なし
    敷引 坪単価 1.0902万円
    保証金償却 権利金
    造作譲渡 その他一時金
    維持費等 保険等
    使用部分面積 60.04m² 坪数 18.16坪
    築年月 2023年1月(築2年11ヶ月) 階建 / 階 8階建 / 6階
    駐車場 バイク置き場
    駐輪場 有 無料 土地面積 449.10m²(公簿)
    接道状況 東 ・ 南 ・ 二方道路 用途地域 商業地域
    間取り 建物構造 鉄骨造
    アピールポイント 四つ橋線「玉出駅」徒歩1分の好立地。
    2023年1月築の築浅物件。
    1階には、docomo入居。
    建物名・部屋番号 Groove玉出駅前BLDG
    リフォーム履歴
    リノベーション履歴
    特記事項 24時間利用可、土日・祝日利用可、飲食店可、飲食店不可、24時間換気システム、国道沿いに面する
    備考
    管理形態/管理員の勤務形態:-/-
    主要採光面:西向き
    トイレ・洗面所設備がありません。必要な場合はご入居に当たり工事が必要となります。
    エネルギー消費性能
    断熱性能
    目安光熱費
    バス・トイレ
    キッチン
    設備・サービス 個別空調、エアコン
    その他 エレベーター
    契約期間 2年 条件等
    引渡可能時期 相談 現況
    適格請求書発行
    更新料 物件番号 6980370930
    情報公開日 2025年10月31日 次回更新予定日 2025年11月14日
    ケータイ用バーコード

    QRコード

    スマートフォンでこの物件を見る
    スマートフォンからもこの物件をご覧になれます。
    ※「-」と表示されている項目については、情報提供会社にご確認ください。

    この物件の周辺情報

    周辺施設 セブンイレブン大阪玉出駅前店
    距離 136m
    周辺施設 マクドナルド地下鉄玉出駅前店
    距離 70m
    周辺施設 大阪市立玉出中学校
    距離 448m
    周辺施設 大阪市立玉出小学校
    距離 256m

    クイックお問い合わせ

    ここから簡単にお問い合わせをすることができます。
    (SSLでの暗号化での送信を希望されるお客さまは こちら よりお問い合わせください)

    お問い合わせ内容(必須)
    物件のお問い合わせ理由(必須)
    お名前・ご担当者様名(必須) 姓  名 
    メールアドレス(必須)
    ※携帯電話のメールアドレスをご入力される方はこちらをご確認ください
    電話番号(必須)
    - -
    備考欄 希望条件、物件案内希望日、質問などがございましたらご記入ください。
    お問い合わせを行う前に「個人情報の取り扱いについて」を必ずお読みください。
    「個人情報の取り扱いについて」に同意いただいた場合は「上記にご同意の上 確認画面へ進む」のボタンをクリックしてください。

    個人情報の取り扱いについて

    皆さまが送付された個人情報はアットホーム(株)のサーバを経由し、お問い合わせ先の不動産会社にメールまたはFAXにて転送されるためアットホーム(株)にも保管されます。アットホーム(株)で保管された個人情報の取り扱いについては、【こちら】をご覧ください。
    また、本画面でご記入いただいた個人情報は、お問い合わせ先の不動産会社でも保管します。 お問い合わせ先の不動産会社が保管する個人情報の取り扱いについては、不動産会社に直接お問い合わせください。

    情報提供会社

    情報提供会社

    (株)五黄不動産

    福岡県知事免許(2)第18958号

    交通:
    JR鹿児島本線/博多駅 徒歩5分
    福岡県福岡市博多区博多駅東1丁目11-5 アサコ博多ビル1001
    TEL:
    092-292-6195
    FAX:
    092-292-6196
    所属団体:
    (公社)福岡県宅地建物取引業協会会員
    (一社)九州不動産公正取引協議会加盟

    取引態様:貸主

    • 会社情報
    • 80504636
    スマートフォンで
    この不動産会社を見る
    QRコード
    • お問い合わせ
    • 提携サイト等より掲載されている物件情報につきましては、不動産会社詳細情報にリンクされていないものがあります。
    • 物件に関するお問合せは、物件詳細ページの「情報提供会社」に表示されている不動産会社へ直接お願いいたします。
    • 間取図は、現況を優先させていただきます。
    • 映像は物件の一部を撮影したものです。物件の契約にあたっての最終判断はご自身の判断に基づいて行ってください。
    • 仲介手数料について仲介手数料

    アットホームは物件情報の適正化に努めております。 内容に誤りがある場合にはこちらへご連絡ください。


    物件画像: