賃貸や不動産はアットホーム-賃貸マンション・賃貸物件・不動産なら アットホーム

大阪府大阪市中央区備後町3丁目(本町駅)の貸店舗:物件詳細

  • 物件詳細
  • 情報の見方
  • 印刷用画面
交通
所在地
駅徒歩 賃料
管理費等
敷金/保証金
礼金
使用部分面積
坪数/坪単価
物件種目
築年月

地下鉄御堂筋線/本町

大阪府大阪市中央区備後町3丁目

3分

14.3万円

11,000円

2ヶ月 / なし

2ヶ月

41.76m²

12.63坪/1.1321万円

貸店舗・事務所

1965年8月(築60年5ヶ月)

おすすめコメント

★デザイナーズリノベーションオフィス★お洒落に生まれ変わりました!事務所としても、ネイルサロンなどにもおすすめです☆

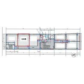
間取図

間取図

<
その他の画像
  • コンビニ
  • コンビニ
  • コンビニ
  • コンビニ
  • ショッピング施設
  • 郵便局
>
    • お問い合わせ
    交通

    地下鉄御堂筋線 本町駅 徒歩3分

    その他の交通

    地下鉄堺筋線 堺筋本町駅 徒歩7分

    地下鉄御堂筋線 淀屋橋駅 徒歩7分

    所在地 大阪府大阪市中央区備後町3丁目
    物件種目 貸店舗・事務所
    賃料 14.3万円 管理費等 11,000円
    敷金 / 保証金 2ヶ月 / なし 礼金 2ヶ月
    敷引 坪単価 1.1321万円
    保証金償却 権利金
    造作譲渡 その他一時金 初回看板代(税込):16,500円、鍵交換代(税込):16,500円
    維持費等 保険等
    使用部分面積 41.76m² 坪数 12.63坪
    築年月 1965年8月(築60年5ヶ月) 階建 / 階 地上6階地下1階建 / 3階
    駐車場 バイク置き場
    駐輪場 土地面積
    接道状況 用途地域
    間取り 建物構造 RC
    アピールポイント ※水道代は賃料に込み
    ※退去時原状回復実費精算
    建物名・部屋番号 フクエイビル 306
    リフォーム履歴
    リノベーション履歴 2019年5月
    2019年5月:2Fデザイナーズリノベーション 2013年:エントランスデザイナーズリノベーション
    ※実施年月は最も古い履歴を表示
    特記事項 24時間利用可、24時間セキュリティー
    備考
    賃貸保証等:加入要(【日本セーフティー】初回保証料:賃料+共益費+消費税の100% 更新料:総賃料の10%/年)
    管理形態/管理員の勤務形態:-/-
    主要採光面:東向き
    ■定期借家(5年間)※再契約可
    【建物設備】
    ●エアコン
    ●SECOMセキュリティサービス
    ●エレベーター
    ●天井高3200mm
    エネルギー消費性能
    断熱性能
    目安光熱費
    バス・トイレ 共用部分にトイレあり
    キッチン
    設備・サービス 空調機あり
    防犯カメラ、エアコン、光ファイバー
    その他 エレベーター
    契約期間 5年 条件等
    引渡可能時期 相談 現況 使用中
    更新料 物件番号 6975778249
    情報公開日 2025年12月8日 次回更新予定日 2025年12月22日
    ケータイ用バーコード

    QRコード

    スマートフォンでこの物件を見る
    スマートフォンからもこの物件をご覧になれます。
    ※「-」と表示されている項目については、情報提供会社にご確認ください。

    この物件の周辺情報

    周辺施設 デイリーヤマザキ御堂筋本町店
    距離 92m
    周辺施設 ミニストップ御堂筋本町店
    距離 128m
    周辺施設 ファミリーマート本町駅北店
    距離 213m
    周辺施設 ローソン御堂筋本町ビル店
    距離 250m
    周辺施設 コーヨー淀屋橋店
    距離 628m
    周辺施設 御堂筋本町郵便局
    距離 274m
    周辺施設 カフェ・ベローチェ備後町三丁目店
    距離 80m
    周辺施設 つるやゴルフ本店
    距離 268m

    クイックお問い合わせ

    ここから簡単にお問い合わせをすることができます。
    (SSLでの暗号化での送信を希望されるお客さまは こちら よりお問い合わせください)

    お問い合わせ内容(必須)
    物件のお問い合わせ理由(必須)
    お名前・ご担当者様名(必須) 姓  名 
    メールアドレス(必須)
    ※携帯電話のメールアドレスをご入力される方はこちらをご確認ください
    電話番号(必須)
    - -
    備考欄 希望条件、物件案内希望日、質問などがございましたらご記入ください。
    お問い合わせを行う前に「個人情報の取り扱いについて」を必ずお読みください。
    「個人情報の取り扱いについて」に同意いただいた場合は「上記にご同意の上 確認画面へ進む」のボタンをクリックしてください。

    個人情報の取り扱いについて

    皆さまが送付された個人情報はアットホーム(株)のサーバを経由し、お問い合わせ先の不動産会社にメールまたはFAXにて転送されるためアットホーム(株)にも保管されます。アットホーム(株)で保管された個人情報の取り扱いについては、【こちら】をご覧ください。
    また、本画面でご記入いただいた個人情報は、お問い合わせ先の不動産会社でも保管します。 お問い合わせ先の不動産会社が保管する個人情報の取り扱いについては、不動産会社に直接お問い合わせください。

    情報提供会社

    情報提供会社

    (株)スマイオ

    大阪府知事免許(3)第57206号

    交通:
    地下鉄四つ橋線/四ツ橋駅 徒歩2分
    大阪府大阪市西区北堀江1丁目6-12 四ツ橋中央ビル5F
    TEL:
    06-6532-3400
    FAX:
    06-6532-3434
    所属団体:
    (一社)大阪府宅地建物取引業協会会員
    (公社)近畿地区不動産公正取引協議会加盟

    取引態様:仲介

    • 会社情報
    • 50104952
    スマートフォンで
    この不動産会社を見る
    QRコード
    • お問い合わせ
    • 提携サイト等より掲載されている物件情報につきましては、不動産会社詳細情報にリンクされていないものがあります。
    • 物件に関するお問合せは、物件詳細ページの「情報提供会社」に表示されている不動産会社へ直接お願いいたします。
    • 間取図は、現況を優先させていただきます。
    • 映像は物件の一部を撮影したものです。物件の契約にあたっての最終判断はご自身の判断に基づいて行ってください。
    • 仲介手数料について仲介手数料

    アットホームは物件情報の適正化に努めております。 内容に誤りがある場合にはこちらへご連絡ください。


    物件画像: