賃貸や不動産はアットホーム-賃貸マンション・賃貸物件・不動産なら アットホーム

埼玉県さいたま市桜区田島5丁目(西浦和駅)の貸店舗:物件詳細

  • 物件詳細
  • 情報の見方
  • 印刷用画面
交通
所在地
駅徒歩 賃料
管理費等
敷金/保証金
礼金
使用部分面積
坪数/坪単価
物件種目
築年月

JR武蔵野線/西浦和

埼玉県さいたま市桜区田島5丁目

2分

21.06万円

35,101円

なし / 8ヶ月

1ヶ月

105.50m²

31.91坪/0.66万円

貸店舗

2007年5月(築18年7ヶ月)

おすすめコメント  スタッフ: 浅沼健一

JR武蔵野線 西浦和駅商店街に面する立地!視認性と集客率は良好です。

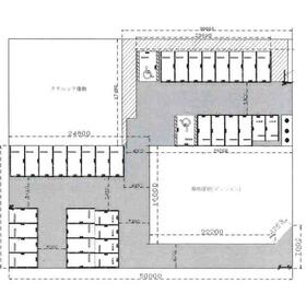
間取図

間取図

<
その他の画像
  • 外観
  • 室内
  • エントランス
  • エントランス
  • 外観
  • 案内図
  • 案内図
  • 駐車場
  • 駐車場
  • 共有部分
  • 周辺環境
>
    • お問い合わせ
    交通

    JR武蔵野線 西浦和駅 徒歩2分

    その他の交通

    JR埼京線 中浦和駅 徒歩18分

    所在地 埼玉県さいたま市桜区田島5丁目
    物件種目 貸店舗
    賃料 21.06万円 管理費等 35,101円
    敷金 / 保証金 なし / 8ヶ月 礼金 1ヶ月
    敷引 坪単価 0.66万円
    保証金償却 解約時15% 5年未満25%:5年以上15%を償却 権利金
    造作譲渡 その他一時金
    維持費等 保険等 要 5年
    使用部分面積 105.50m² 坪数 31.91坪
    築年月 2007年5月(築18年7ヶ月) 階建 / 階 3階建 / 3階
    駐車場 有 無料
    職員用は有料:台数は相談
    バイク置き場 有 無料
    駐輪場 有 無料 土地面積
    接道状況 用途地域 1種住居
    間取り 建物構造 鉄骨造
    アピールポイント 敷地内、建物内バリアフリー:お客様専用駐車場:開業までフリーレント相談:現状間仕切り壁がありますが撤去もいたします、そのままで2部屋でもお使いいただけます。
    エレベーター9人乗り
    建物名・部屋番号 西浦和クリニックプラザ 3
    リフォーム履歴
    リノベーション履歴
    特記事項 土日・祝日利用可、飲食店不可、フリーレント、1フロア1テナント、駐車場3台分以上、角部屋、最上階
    備考
    管理形態/管理員の勤務形態:-/-
    フリーレント:1ヶ月(オープン日まで家賃発生無し等相談)
    敷地内、建物内バリアフリー:お客様専用駐車場:開業までフリーレント相談:現状間仕切り壁がありますが撤去もいたします、そのままで2部屋でもお使いいただけます。
    エレベーター9人乗り
    エネルギー消費性能
    断熱性能
    目安光熱費
    バス・トイレ
    キッチン
    設備・サービス 看板取付スペースあり
    その他 エレベーター
    契約期間 5年 条件等
    引渡可能時期 即時 現況
    仲介手数料 0.5ヶ月 適格請求書発行
    更新料 新賃料 1ヶ月 物件番号 6974923992
    情報公開日 2025年3月1日 次回更新予定日 2025年11月7日
    ケータイ用バーコード

    QRコード

    スマートフォンでこの物件を見る
    スマートフォンからもこの物件をご覧になれます。
    ※「-」と表示されている項目については、情報提供会社にご確認ください。

    この物件の周辺情報

    周辺施設 ダイエー西浦和店
    距離 352m
    周辺施設 セブンイレブン西浦和駅前店
    距離 80m
    周辺施設 ほっともっと西浦和店
    距離 337m
    周辺施設 ドラッグセイムス西浦和店
    距離 158m
    周辺施設 さいたま市立田島保育園
    距離 351m
    周辺施設 医療法人社団松弘会三愛病院
    距離 807m
    周辺施設 浦和田島郵便局
    距離 535m
    周辺施設 川口信用金庫武蔵浦和支店
    距離 1411m

    クイックお問い合わせ

    ここから簡単にお問い合わせをすることができます。
    (SSLでの暗号化での送信を希望されるお客さまは こちら よりお問い合わせください)

    お問い合わせ内容(必須)
    物件のお問い合わせ理由(必須)
    お名前・ご担当者様名(必須) 姓  名 
    メールアドレス(必須)
    ※携帯電話のメールアドレスをご入力される方はこちらをご確認ください
    電話番号(必須)
    - -
    備考欄 希望条件、物件案内希望日、質問などがございましたらご記入ください。
    お問い合わせを行う前に「個人情報の取り扱いについて」を必ずお読みください。
    「個人情報の取り扱いについて」に同意いただいた場合は「上記にご同意の上 確認画面へ進む」のボタンをクリックしてください。

    個人情報の取り扱いについて

    皆さまが送付された個人情報はアットホーム(株)のサーバを経由し、お問い合わせ先の不動産会社にメールまたはFAXにて転送されるためアットホーム(株)にも保管されます。アットホーム(株)で保管された個人情報の取り扱いについては、【こちら】をご覧ください。
    また、本画面でご記入いただいた個人情報は、お問い合わせ先の不動産会社でも保管します。 お問い合わせ先の不動産会社が保管する個人情報の取り扱いについては、不動産会社に直接お問い合わせください。

    情報提供会社

    情報提供会社

    (株)ケンタロウハウジング

    埼玉県知事免許(3)第22804号

    交通:
    JR武蔵野線/西浦和駅 徒歩1分
    埼玉県さいたま市桜区田島5丁目10-5 土屋第5ビル108
    TEL:
    048-711-7793
    FAX:
    048-711-7794
    所属団体:
    (公社)埼玉県宅地建物取引業協会会員
    (公社)首都圏不動産公正取引協議会加盟

    取引態様:仲介

    • 会社情報
    • 00161248
    スマートフォンで
    この不動産会社を見る
    QRコード
    • お問い合わせ
    • 提携サイト等より掲載されている物件情報につきましては、不動産会社詳細情報にリンクされていないものがあります。
    • 物件に関するお問合せは、物件詳細ページの「情報提供会社」に表示されている不動産会社へ直接お願いいたします。
    • 間取図は、現況を優先させていただきます。
    • 映像は物件の一部を撮影したものです。物件の契約にあたっての最終判断はご自身の判断に基づいて行ってください。
    • 仲介手数料について仲介手数料

    アットホームは物件情報の適正化に努めております。 内容に誤りがある場合にはこちらへご連絡ください。


    物件画像: