賃貸や不動産はアットホーム-賃貸マンション・賃貸物件・不動産なら アットホーム

熊本県球磨郡錦町大字木上西(一武駅)の貸店舗:物件詳細

  • 物件詳細
  • 情報の見方
  • 印刷用画面
交通
所在地
駅徒歩 賃料
管理費等
敷金/保証金
礼金
使用部分面積
坪数/坪単価
物件種目
築年月

くま川鉄道/一武 新着

熊本県球磨郡錦町大字木上西

23分

33万円

3ヶ月 / なし

なし

215.00m²

65.03坪/0.5075万円

貸店舗

1997年7月(築28年6ヶ月)

おすすめコメント

敷地内駐車場8台分無料☆ エアコンやバス、洗面台、キッチンなど設備も充実しています。

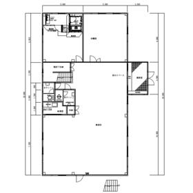
間取図

間取図

外観

外観

<
その他の画像
  • リビング
  • キッチン
  • バス/シャワー
  • トイレ
  • 洗面
  • 玄関
  • 室内
  • その他
  • 設備
  • 収納
  • その他
>
    • お問い合わせ
    交通

    くま川鉄道 一武駅 徒歩23分

    所在地 熊本県球磨郡錦町大字木上西
    物件種目 貸店舗
    賃料 33万円 管理費等
    敷金 / 保証金 3ヶ月 / なし 礼金 なし
    敷引 坪単価 0.5075万円
    保証金償却 権利金
    造作譲渡 その他一時金
    維持費等 保険等
    使用部分面積 215.00m² 坪数 65.03坪
    築年月 1997年7月(築28年6ヶ月) 階建 / 階 2階建 / 1階
    駐車場 有 無料(空き8台) バイク置き場
    駐輪場 土地面積
    接道状況 用途地域
    間取り 建物構造 鉄骨造
    建物名・部屋番号 オフィスニューガイア錦町
    リフォーム履歴
    リノベーション履歴
    特記事項 土曜日利用可、飲食店不可、1フロア1テナント
    備考
    管理形態/管理員の勤務形態:-/-
    主要採光面:南向き
    エネルギー消費性能
    断熱性能
    目安光熱費
    バス・トイレ 男女別トイレ、バス・トイレ別、シャワー、トイレ
    キッチン
    設備・サービス エアコン2台以上、室内洗濯機置場、洗濯機置場、給湯、ビルトインエアコン、エアコン
    その他
    契約期間 2年 条件等
    引渡可能時期 2026年4月下旬予定 現況 居住中
    更新料 物件番号 6973410723
    情報公開日 2025年12月16日 次回更新予定日 2025年12月30日
    ケータイ用バーコード

    QRコード

    スマートフォンでこの物件を見る
    スマートフォンからもこの物件をご覧になれます。
    ※「-」と表示されている項目については、情報提供会社にご確認ください。

    この物件の周辺情報

    周辺施設 イスミ錦店
    距離 2601m
    周辺施設 ファミリーマートサンロード木上店
    距離 1673m
    周辺施設 木上郵便局
    距離 1667m
    周辺施設 熊本中央信用金庫錦支店
    距離 2529m
    周辺施設 錦町役場
    距離 2689m

    クイックお問い合わせ

    ここから簡単にお問い合わせをすることができます。
    (SSLでの暗号化での送信を希望されるお客さまは こちら よりお問い合わせください)

    お問い合わせ内容(必須)
    物件のお問い合わせ理由(必須)
    お名前・ご担当者様名(必須) 姓  名 
    メールアドレス(必須)
    ※携帯電話のメールアドレスをご入力される方はこちらをご確認ください
    電話番号(必須)
    - -
    備考欄 希望条件、物件案内希望日、質問などがございましたらご記入ください。
    お問い合わせを行う前に「個人情報の取り扱いについて」を必ずお読みください。
    「個人情報の取り扱いについて」に同意いただいた場合は「上記にご同意の上 確認画面へ進む」のボタンをクリックしてください。

    個人情報の取り扱いについて

    皆さまが送付された個人情報はアットホーム(株)のサーバを経由し、お問い合わせ先の不動産会社にメールまたはFAXにて転送されるためアットホーム(株)にも保管されます。アットホーム(株)で保管された個人情報の取り扱いについては、【こちら】をご覧ください。
    また、本画面でご記入いただいた個人情報は、お問い合わせ先の不動産会社でも保管します。 お問い合わせ先の不動産会社が保管する個人情報の取り扱いについては、不動産会社に直接お問い合わせください。

    情報提供会社

    情報提供会社

    (株)ニューガイア 熊本営業所

    国土交通大臣免許(2)第9197号

    交通:
    JR豊肥本線/東海学園前駅 徒歩15分
    熊本県熊本市東区新南部4丁目7-38 オフィスニューガイア熊本OMビル
    TEL:
    096-384-3307
    FAX:
    096-382-3307
    所属団体:
    (公社)全日本不動産協会会員
    (一社)九州不動産公正取引協議会加盟

    取引態様:仲介

    • 会社情報
    • 80504131
    スマートフォンで
    この不動産会社を見る
    QRコード
    • お問い合わせ
    • 提携サイト等より掲載されている物件情報につきましては、不動産会社詳細情報にリンクされていないものがあります。
    • 物件に関するお問合せは、物件詳細ページの「情報提供会社」に表示されている不動産会社へ直接お願いいたします。
    • 間取図は、現況を優先させていただきます。
    • 映像は物件の一部を撮影したものです。物件の契約にあたっての最終判断はご自身の判断に基づいて行ってください。
    • 仲介手数料について仲介手数料

    アットホームは物件情報の適正化に努めております。 内容に誤りがある場合にはこちらへご連絡ください。


    物件画像: