賃貸や不動産はアットホーム-賃貸マンション・賃貸物件・不動産なら アットホーム

香川県善通寺市金蔵寺町(金蔵寺駅)の貸店舗:物件詳細

  • 物件詳細
  • 情報の見方
  • 印刷用画面
交通
所在地
駅徒歩 賃料
管理費等
敷金/保証金
礼金
使用部分面積
坪数/坪単価
物件種目
築年月

JR土讃線/金蔵寺

香川県善通寺市金蔵寺町

6分

11万円

5,000円

2ヶ月 / なし

1ヶ月

38.51m²

11.64坪/0.9443万円

貸店舗

2021年4月(築5年1ヶ月)

おすすめコメント  スタッフ: 伊藤

㈱清水設計一級建築士事務所 設計監理のこだわり抜かれたデザインの賃貸テナントです。R25線沿です。入口ドアは建具工事の特注で木製ドア、室内ドアは神谷のフルハイドアを採用 外構コンクリート塀

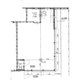
間取図

間取図

その他の画像
    • お問い合わせ
    交通

    JR土讃線 金蔵寺駅 徒歩6分

    所在地 香川県善通寺市金蔵寺町
    物件種目 貸店舗
    賃料 11万円 管理費等 5,000円
    敷金 / 保証金 2ヶ月 / なし 礼金 1ヶ月
    敷引 坪単価 0.9443万円
    保証金償却 権利金
    造作譲渡 その他一時金
    維持費等 保険等
    使用部分面積 38.51m² 坪数 11.64坪
    築年月 2021年4月(築5年1ヶ月) 階建 / 階 1階建 / 1階
    駐車場 有 無料
    敷地前 4~5台分駐車可能 隣接地も紹介可能(別契約)
    バイク置き場
    駐輪場 土地面積
    接道状況 用途地域
    間取り ワンルーム 建物構造 木造
    アピールポイント 清水設計一級建築士事務所 設計監理のこだわり抜かれた賃貸テナントです。R25線沿で
    す。(香川県建築士会支部長賞受賞物件)入口ドアは建具工事の特注で木製ドア、室内ドアにつきましても、神谷のフルハイドア
    外壁は杉板と塗り壁 
    前業種は人気パンケーキ店(業務拡大移転されました) 室内にはエアコンや造作カウンターをはじめとした設備が残置されており、
    初期投資を抑えながらクオリティの高い店舗づくりが可能です。 カフェやパティスリー、サロン、デザインオフィスなど洗練されたテナントをお考えの方に最適です。
    「空間そのものが価値になる」物件をお探しの方におすすめです。
    建物名・部屋番号  
    リフォーム履歴
    リノベーション履歴
    特記事項 スケルトン
    備考
    賃貸保証等:加入要(総額家賃の100パーセント 年毎1万円)
    管理形態/管理員の勤務形態:-/-
    サロンや事務所におすすめです。
    深い軒裏にも本物にこだわった木材(檜)を張り付けております。
    外壁は杉板と塗り壁 店舗部分との境は コンクリート打ちっぱなし塀
    造作特注木製建具
    遅くまでの営業される業種やアルコール提供されるお店はご遠慮いただいております。
    エネルギー消費性能
    断熱性能
    目安光熱費
    バス・トイレ トイレ
    キッチン
    設備・サービス 換気口あり、排水設備あり
    給湯
    その他
    契約期間 2年 条件等
    引渡可能時期 相談 現況 完成済
    更新料 物件番号 6972219804
    情報公開日 2026年3月29日 次回更新予定日 2026年4月12日
    ケータイ用バーコード

    QRコード

    スマートフォンでこの物件を見る
    スマートフォンからもこの物件をご覧になれます。
    ※「-」と表示されている項目については、情報提供会社にご確認ください。

    この物件の周辺情報

    周辺施設 トライアル善通寺店
    距離 1358m
    周辺施設 マルナカパワーシティ善通寺店
    距離 1785m
    周辺施設 デイリーヤマザキ金蔵寺町店
    距離 441m
    周辺施設 長田in香の香
    距離 645m

    クイックお問い合わせ

    ここから簡単にお問い合わせをすることができます。
    (SSLでの暗号化での送信を希望されるお客さまは こちら よりお問い合わせください)

    お問い合わせ内容(必須)
    物件のお問い合わせ理由(必須)
    お名前・ご担当者様名(必須) 姓  名 
    メールアドレス(必須)
    ※携帯電話のメールアドレスをご入力される方はこちらをご確認ください
    電話番号(必須)
    - -
    備考欄 希望条件、物件案内希望日、質問などがございましたらご記入ください。
    お問い合わせを行う前に「個人情報の取り扱いについて」を必ずお読みください。
    「個人情報の取り扱いについて」に同意いただいた場合は「上記にご同意の上 確認画面へ進む」のボタンをクリックしてください。

    個人情報の取り扱いについて

    皆さまが送付された個人情報はアットホーム(株)のサーバを経由し、お問い合わせ先の不動産会社にメールまたはFAXにて転送されるためアットホーム(株)にも保管されます。アットホーム(株)で保管された個人情報の取り扱いについては、【こちら】をご覧ください。
    また、本画面でご記入いただいた個人情報は、お問い合わせ先の不動産会社でも保管します。 お問い合わせ先の不動産会社が保管する個人情報の取り扱いについては、不動産会社に直接お問い合わせください。

    情報提供会社

    情報提供会社

    円尾不動産所

    香川県知事免許(14)第1560号

    交通:
    JR土讃線/金蔵寺駅 徒歩3分
    香川県善通寺市金蔵寺町1222-2 
    TEL:
    0877-62-8236
    FAX:
    0877-62-8282
    所属団体:
    (公社)香川県宅地建物取引業協会会員
    四国地区不動産公正取引協議会加盟

    取引態様:仲介

    • 会社情報
    • 50801110
    スマートフォンで
    この不動産会社を見る
    QRコード
    • お問い合わせ
    • 提携サイト等より掲載されている物件情報につきましては、不動産会社詳細情報にリンクされていないものがあります。
    • 物件に関するお問合せは、物件詳細ページの「情報提供会社」に表示されている不動産会社へ直接お願いいたします。
    • 間取図は、現況を優先させていただきます。
    • 映像は物件の一部を撮影したものです。物件の契約にあたっての最終判断はご自身の判断に基づいて行ってください。
    • 仲介手数料について仲介手数料

    アットホームは物件情報の適正化に努めております。 内容に誤りがある場合にはこちらへご連絡ください。


    物件画像: