賃貸や不動産はアットホーム-賃貸マンション・賃貸物件・不動産なら アットホーム

愛媛県松山市湊町7丁目(松山市駅)の貸店舗:物件詳細

  • 物件詳細
  • 情報の見方
  • 印刷用画面
交通
所在地
駅徒歩 賃料
管理費等
敷金/保証金
礼金
使用部分面積
坪数/坪単価
物件種目
築年月

伊予鉄道高浜線/松山市

愛媛県松山市湊町7丁目

8分

45.936万円

26,400円

4.3ヶ月 / なし

なし

230.07m²

69.59坪/0.6601万円

貸店舗・事務所

1977年12月(築48年5ヶ月)

おすすめコメント

JR松山駅・松山市駅すべての交通拠点に近く、至って便利の良い場所です★高島屋も目の前です★

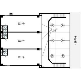
間取図

間取図

広々201号202号203号★

その他の画像
  • ショッピング施設
  • ショッピング施設
  • ショッピング施設
  • コンビニ
  • 飲食店
  • 販売店
  • その他
  • 図書館
    • お問い合わせ
    交通

    伊予鉄道高浜線 松山市駅 徒歩8分

    その他の交通

    伊予鉄道郡中線 土橋駅 徒歩5分

    所在地 愛媛県松山市湊町7丁目
    物件種目 貸店舗・事務所
    賃料 45.936万円 管理費等 26,400円
    敷金 / 保証金 4.3ヶ月 / なし 礼金 なし
    敷引 坪単価 0.6601万円
    保証金償却 権利金
    造作譲渡 その他一時金
    維持費等 保険等
    使用部分面積 230.07m² 坪数 69.59坪
    築年月 1977年12月(築48年5ヶ月) 階建 / 階 9階建 / 2階
    駐車場 バイク置き場
    駐輪場 土地面積
    接道状況 用途地域
    間取り 建物構造 RC
    建物名・部屋番号 カーサ市駅ビル 2階フロア
    リフォーム履歴 ■その他:2012年1月
    内装全面 外装全面  ●西側玄関口全面リフォーム オートロック・宅配ボックス新設
    ※実施年月は最も古い履歴を表示
    リノベーション履歴
    特記事項 24時間利用可、土曜日利用可、土日・祝日利用可、飲食店可、1フロア1テナント、24時間セキュリティー
    備考
    管理形態/管理員の勤務形態:-/-
    ●3年以上で敷金全額返金
    事務所に最適★パーテーションはありませんがトイレ・湯沸室あります★
    エネルギー消費性能
    断熱性能
    目安光熱費
    バス・トイレ 専有部分にトイレあり
    キッチン
    設備・サービス 看板取付スペースあり、シャッター付き、換気口あり、排煙設備あり、排水設備あり
    防犯カメラ、シャッター雨戸、給湯、動力あり、エアコン、暖房、冷房、火災警報器(報知機)、ケーブルTV
    その他 リフト、エレベーター
    契約期間 3年 条件等
    引渡可能時期 即時 現況
    仲介手数料 不要    
    更新料 なし 物件番号 6971556904
    情報公開日 2023年5月22日 次回更新予定日 2026年4月22日
    ケータイ用バーコード

    QRコード

    スマートフォンでこの物件を見る
    スマートフォンからもこの物件をご覧になれます。
    ※「-」と表示されている項目については、情報提供会社にご確認ください。

    この物件の周辺情報

    周辺施設 JAえひめ中央 太陽市 おひさまいち
    距離 582m
    周辺施設 いよてつ高島屋
    距離 597m
    周辺施設 フジ藤原店・ケーズデンキ
    距離 729m
    周辺施設 ローソン松山湊町七丁目店
    距離 156m
    周辺施設 スターバックスコーヒー松山湊町店
    距離 176m
    周辺施設 レデイ薬局竹原店
    距離 430m
    周辺施設 松山モノリス(結婚式場)
    距離 60m
    周辺施設 松山市総合コミュニティセンター
    距離 345m

    クイックお問い合わせ

    ここから簡単にお問い合わせをすることができます。
    (SSLでの暗号化での送信を希望されるお客さまは こちら よりお問い合わせください)

    お問い合わせ内容(必須)
    物件のお問い合わせ理由(必須)
    お名前・ご担当者様名(必須) 姓  名 
    メールアドレス(必須)
    ※携帯電話のメールアドレスをご入力される方はこちらをご確認ください
    電話番号(必須)
    - -
    備考欄 希望条件、物件案内希望日、質問などがございましたらご記入ください。
    お問い合わせを行う前に「個人情報の取り扱いについて」を必ずお読みください。
    「個人情報の取り扱いについて」に同意いただいた場合は「上記にご同意の上 確認画面へ進む」のボタンをクリックしてください。

    個人情報の取り扱いについて

    皆さまが送付された個人情報はアットホーム(株)のサーバを経由し、お問い合わせ先の不動産会社にメールまたはFAXにて転送されるためアットホーム(株)にも保管されます。アットホーム(株)で保管された個人情報の取り扱いについては、【こちら】をご覧ください。
    また、本画面でご記入いただいた個人情報は、お問い合わせ先の不動産会社でも保管します。 お問い合わせ先の不動産会社が保管する個人情報の取り扱いについては、不動産会社に直接お問い合わせください。

    情報提供会社

    情報提供会社

    (有)道後ハウス

    愛媛県知事免許(9)第3227号

    交通:
    伊予鉄道環状線/大街道駅 徒歩6分 【バス】 三番町二丁目 停歩1分
    愛媛県松山市三番町2丁目6-3 F ROSEビル4F
    TEL:
    089-933-1818
    FAX:
    089-933-1854
    所属団体:
    (公社)愛媛県宅地建物取引業協会会員
    四国地区不動産公正取引協議会加盟

    取引態様:仲介

    • 会社情報
    • 50026951
    スマートフォンで
    この不動産会社を見る
    QRコード
    • お問い合わせ
    • 提携サイト等より掲載されている物件情報につきましては、不動産会社詳細情報にリンクされていないものがあります。
    • 物件に関するお問合せは、物件詳細ページの「情報提供会社」に表示されている不動産会社へ直接お願いいたします。
    • 間取図は、現況を優先させていただきます。
    • 映像は物件の一部を撮影したものです。物件の契約にあたっての最終判断はご自身の判断に基づいて行ってください。
    • 仲介手数料について仲介手数料

    アットホームは物件情報の適正化に努めております。 内容に誤りがある場合にはこちらへご連絡ください。


    物件画像: