賃貸や不動産はアットホーム-賃貸マンション・賃貸物件・不動産なら アットホーム

東京都豊島区池袋4丁目(池袋駅)の貸店舗:物件詳細

  • 物件詳細
  • 情報の見方
  • 印刷用画面
交通
所在地
駅徒歩 賃料
管理費等
敷金/保証金
礼金
使用部分面積
坪数/坪単価
物件種目
築年月

JR山手線/池袋

東京都豊島区池袋4丁目

15分

59.8741万円

92,114円

8ヶ月 / なし

なし

138.42m²

41.87坪/1.43万円

貸店舗・事務所

1988年1月(築38年2ヶ月)

おすすめコメント  スタッフ: 湯川 雅人

■北池袋インター至近■川越街道に面する○JR『池袋駅』徒歩15分、東武東上線『北池袋駅』徒歩7分、川越街道に面した立地です○男女別トイレ完備で安心です○オフィスの他にサービス店舗相談可能です!

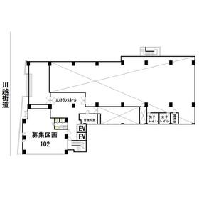
間取図

間取図

<
その他の画像
  • ショッピング施設
  • ショッピング施設
  • ショッピング施設
  • ショッピング施設
  • ショッピング施設
  • コンビニ
  • コンビニ
  • コンビニ
>
    • お問い合わせ
    交通

    JR山手線 池袋駅 徒歩15分

    その他の交通

    東京メトロ丸ノ内線 池袋駅 徒歩15分

    東武東上線 北池袋駅 徒歩10分

    所在地 東京都豊島区池袋4丁目
    物件種目 貸店舗・事務所
    賃料 59.8741万円 管理費等 92,114円
    敷金 / 保証金 8ヶ月 / なし 礼金 なし
    敷引 坪単価 1.43万円
    保証金償却 解約時1ヶ月 権利金
    造作譲渡 その他一時金
    維持費等 保険等 要 2年
    使用部分面積 138.42m² 坪数 41.87坪
    築年月 1988年1月(築38年2ヶ月) 階建 / 階 6階建 / 1階
    駐車場 バイク置き場
    駐輪場 土地面積
    接道状況 用途地域
    間取り 建物構造 RC
    アピールポイント 【所在地】豊島区池袋4-32-8
    【物件名】サンポウ池袋ビル 

    ■北池袋インター至近
    ■川越街道に面する

    ○JR『池袋駅』徒歩15分、東武東上線『北池袋駅』徒歩7分、川越街道に面した立地です
    ○男女別トイレ完備で安心です
    ○オフィスの他にサービス店舗相談可能です!


    ※備考※
    ●現況引渡し(希望があれば原状回復工事可能)
    ●管理人常駐
    ●天高2,860mm
    ●エントランス開閉時間:平日7:30~17:30、土7:30~16:30、日祝終日閉鎖※テナントの出入りは可能


    サンポウ池袋ビルのお問い合わせは、
    事業用専門不動産の株式会社エンジンテラスまで! 
    ※お問い合わせの際は業種をご入力いただくとスムーズにご案内できます!
    建物名・部屋番号 サンポウ池袋ビル 102
    リフォーム履歴
    リノベーション履歴
    特記事項 飲食店不可、天井高2.5M以上
    備考
    賃貸保証等:加入要(契約プランに基づく)
    管理形態/管理員の勤務形態:-/-
    ●現況引渡し(希望があれば原状回復工事可能)
    ●管理人常駐
    ●天高2,860mm
    ●エントランス開閉時間:平日7:30~17:30、土7:30~16:30、日祝終日閉鎖※テナントの出入りは可能 
    エネルギー消費性能
    断熱性能
    目安光熱費
    バス・トイレ 専有部分に男女別トイレあり
    キッチン
    設備・サービス エアコン
    その他 エレベーター2基以上、エレベーター
    契約期間 2年 条件等 定期借家定期借家
    引渡可能時期 即時 現況
    仲介手数料 1ヶ月    
    更新料 物件番号 6971076743
    情報公開日 2025年6月13日 次回更新予定日 2026年3月4日
    ケータイ用バーコード

    QRコード

    スマートフォンでこの物件を見る
    スマートフォンからもこの物件をご覧になれます。
    ※「-」と表示されている項目については、情報提供会社にご確認ください。

    この物件の周辺情報

    周辺施設 まいばすけっと池袋駅西店
    距離 419m
    周辺施設 アコレ板橋中丸町店
    距離 555m
    周辺施設 アブアブ赤札堂池袋ジョイシー店
    距離 520m
    周辺施設 まいばすけっと池袋2丁目店
    距離 576m
    周辺施設 マルエツ池袋店
    距離 669m
    周辺施設 サンクス池袋四丁目店
    距離 276m
    周辺施設 サンクス池袋本町一丁目店
    距離 386m
    周辺施設 ファミリーマート西池袋店
    距離 393m

    クイックお問い合わせ

    ここから簡単にお問い合わせをすることができます。
    (SSLでの暗号化での送信を希望されるお客さまは こちら よりお問い合わせください)

    お問い合わせ内容(必須)
    物件のお問い合わせ理由(必須)
    お名前・ご担当者様名(必須) 姓  名 
    メールアドレス(必須)
    ※携帯電話のメールアドレスをご入力される方はこちらをご確認ください
    電話番号(必須)
    - -
    備考欄 希望条件、物件案内希望日、質問などがございましたらご記入ください。
    お問い合わせを行う前に「個人情報の取り扱いについて」を必ずお読みください。
    「個人情報の取り扱いについて」に同意いただいた場合は「上記にご同意の上 確認画面へ進む」のボタンをクリックしてください。

    個人情報の取り扱いについて

    皆さまが送付された個人情報はアットホーム(株)のサーバを経由し、お問い合わせ先の不動産会社にメールまたはFAXにて転送されるためアットホーム(株)にも保管されます。アットホーム(株)で保管された個人情報の取り扱いについては、【こちら】をご覧ください。
    また、本画面でご記入いただいた個人情報は、お問い合わせ先の不動産会社でも保管します。 お問い合わせ先の不動産会社が保管する個人情報の取り扱いについては、不動産会社に直接お問い合わせください。

    情報提供会社

    情報提供会社

    (株)エンジンテラス池袋店

    東京都知事免許(3)第94555号

    交通:
    JR山手線/池袋駅 徒歩5分
    東京都豊島区東池袋1丁目44-10 タイガースビル702
    TEL:
    03-5953-2622
    FAX:
    03-5953-2621
    所属団体:
    (公社)全日本不動産協会会員
    (公社)首都圏不動産公正取引協議会加盟

    取引態様:仲介

    • 会社情報
    • 00160967
    スマートフォンで
    この不動産会社を見る
    QRコード
    • お問い合わせ
    • 提携サイト等より掲載されている物件情報につきましては、不動産会社詳細情報にリンクされていないものがあります。
    • 物件に関するお問合せは、物件詳細ページの「情報提供会社」に表示されている不動産会社へ直接お願いいたします。
    • 間取図は、現況を優先させていただきます。
    • 映像は物件の一部を撮影したものです。物件の契約にあたっての最終判断はご自身の判断に基づいて行ってください。
    • 仲介手数料について仲介手数料

    アットホームは物件情報の適正化に努めております。 内容に誤りがある場合にはこちらへご連絡ください。


    物件画像: