賃貸や不動産はアットホーム-賃貸マンション・賃貸物件・不動産なら アットホーム

京都府宇治市伊勢田町名木3丁目(伊勢田駅)の貸店舗:物件詳細

  • 物件詳細
  • 情報の見方
  • 印刷用画面
交通
所在地
駅徒歩 賃料
管理費等
敷金/保証金
礼金
使用部分面積
坪数/坪単価
物件種目
築年月

近鉄京都線/伊勢田

京都府宇治市伊勢田町名木3丁目

13分

27.5万円

なし

なし / 3ヶ月

なし

93.50m²

28.28坪/0.9723万円

貸店舗・事務所(一括)

2020年7月(築5年8ヶ月)

おすすめコメント

■名木通りに面した戸建てテナントです。■前面駐車スペース:普通車2台+小型車1台+近隣に駐車場有り■近隣はスーパー、医院、美容室、飲食店等複数の店舗が盛業中です。

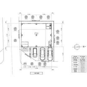
間取図

間取図

外観

外観

外観イメージ正面

その他の画像
  • 外観
    • お問い合わせ
    交通

    近鉄京都線 伊勢田駅 徒歩13分

    その他の交通

    近鉄京都線 大久保駅 徒歩28分

    近鉄京都線 小倉駅 徒歩24分

    所在地 京都府宇治市伊勢田町名木3丁目
    物件種目 貸店舗・事務所(一括)
    賃料 27.5万円 管理費等 なし
    敷金 / 保証金 なし / 3ヶ月 礼金 なし
    敷引 坪単価 0.9723万円
    保証金償却 権利金
    造作譲渡 その他一時金
    維持費等 保険等
    使用部分面積 93.50m² 坪数 28.28坪
    築年月 2020年7月(築5年8ヶ月) 階建 / 階 1階建 / 1階
    駐車場 有 無料(空き3台) バイク置き場
    駐輪場 有 無料 土地面積 165.91m²(公簿)
    接道状況 東 公道 接面11.0m ・ 南 公道 接面8.5m ・ 二方道路 用途地域 準工業
    間取り 建物構造 鉄骨造
    アピールポイント ■名木通りに面した新築戸建てテナントです。
    ■前面駐車スペース:普通車2台+小型車1台
    ■近隣はスーパー、医院、美容室、飲食店等複数の店舗が盛業中です。
    建物名・部屋番号 名木三丁目戸建テナント
    リフォーム履歴
    リノベーション履歴
    特記事項 24時間利用可、土日・祝日利用可、1フロア1テナント、角部屋、天井高2.5M以上
    備考
    賃貸保証等:加入要(フォーシーズ株式会社)
    管理形態/管理員の勤務形態:-/-
    ■名木通りに面した戸建てテナントです。
    ■前面駐車スペース:普通車2台+小型車1台
    ■近隣はスーパー、医院、美容室、飲食店等複数の店舗が盛業中です。
    エネルギー消費性能
    断熱性能
    目安光熱費
    バス・トイレ 専有部分にトイレあり
    キッチン
    設備・サービス
    その他
    契約期間 3年 条件等
    引渡可能時期 2026年5月上旬予定 現況 居住中
    更新料 なし 物件番号 6970549831
    情報公開日 2026年2月5日 次回更新予定日 2026年2月24日
    ケータイ用バーコード

    QRコード

    スマートフォンでこの物件を見る
    スマートフォンからもこの物件をご覧になれます。
    ※「-」と表示されている項目については、情報提供会社にご確認ください。

    この物件の周辺情報

    周辺施設 マツヤスーパー伊勢田店
    距離 157m
    周辺施設 業務スーパー伊勢田店
    距離 166m
    周辺施設 フレンドマート伊勢田店
    距離 233m
    周辺施設 ローソン宇治伊勢田店
    距離 323m
    周辺施設 CoCo壱番屋宇治伊勢田店
    距離 287m
    周辺施設 ドラッグユタカ宇治伊勢田店
    距離 216m
    周辺施設 宇治市立西小倉中学校
    距離 462m
    周辺施設 宇治市立伊勢田小学校
    距離 587m

    クイックお問い合わせ

    ここから簡単にお問い合わせをすることができます。
    (SSLでの暗号化での送信を希望されるお客さまは こちら よりお問い合わせください)

    お問い合わせ内容(必須)
    物件のお問い合わせ理由(必須)
    お名前・ご担当者様名(必須) 姓  名 
    メールアドレス(必須)
    ※携帯電話のメールアドレスをご入力される方はこちらをご確認ください
    電話番号(必須)
    - -
    備考欄 希望条件、物件案内希望日、質問などがございましたらご記入ください。
    お問い合わせを行う前に「個人情報の取り扱いについて」を必ずお読みください。
    「個人情報の取り扱いについて」に同意いただいた場合は「上記にご同意の上 確認画面へ進む」のボタンをクリックしてください。

    個人情報の取り扱いについて

    皆さまが送付された個人情報はアットホーム(株)のサーバを経由し、お問い合わせ先の不動産会社にメールまたはFAXにて転送されるためアットホーム(株)にも保管されます。アットホーム(株)で保管された個人情報の取り扱いについては、【こちら】をご覧ください。
    また、本画面でご記入いただいた個人情報は、お問い合わせ先の不動産会社でも保管します。 お問い合わせ先の不動産会社が保管する個人情報の取り扱いについては、不動産会社に直接お問い合わせください。

    情報提供会社

    情報提供会社

    とまとハウス(株)

    京都府知事免許(6)第11094号

    交通:
    京阪本線/丹波橋駅 徒歩1分
    京都府京都市伏見区桃山筒井伊賀西町17 千歳ビル 1F
    TEL:
    075-602-1644
    FAX:
    075-602-1646
    所属団体:
    (公社)京都府宅地建物取引業協会会員
    (公社)近畿地区不動産公正取引協議会加盟

    取引態様:仲介

    • 会社情報
    • 50014371
    スマートフォンで
    この不動産会社を見る
    QRコード
    • お問い合わせ
    • 提携サイト等より掲載されている物件情報につきましては、不動産会社詳細情報にリンクされていないものがあります。
    • 物件に関するお問合せは、物件詳細ページの「情報提供会社」に表示されている不動産会社へ直接お願いいたします。
    • 間取図は、現況を優先させていただきます。
    • 映像は物件の一部を撮影したものです。物件の契約にあたっての最終判断はご自身の判断に基づいて行ってください。
    • 仲介手数料について仲介手数料

    アットホームは物件情報の適正化に努めております。 内容に誤りがある場合にはこちらへご連絡ください。


    物件画像: