賃貸や不動産はアットホーム-賃貸マンション・賃貸物件・不動産なら アットホーム

福岡県北九州市小倉南区南方5丁目(徳力嵐山口駅)の貸店舗:物件詳細

  • 物件詳細
  • 情報の見方
  • 印刷用画面
交通
所在地
駅徒歩 賃料
管理費等
敷金/保証金
礼金
使用部分面積
坪数/坪単価
物件種目
築年月

北九州モノレール/徳力嵐山口 新着

福岡県北九州市小倉南区南方5丁目

6分

19.8万円

なし

2ヶ月 / なし

なし

71.91m²

21.75坪/0.9103万円

貸店舗(建物一括)

1996年1月(築30年)

おすすめコメント

条件見直しました。一戸建てテナントです。エアコンはサービス設置品

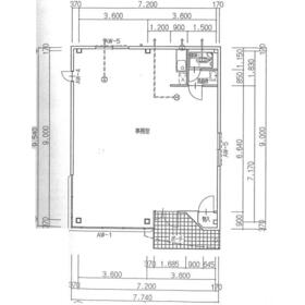
間取図

間取図

その他の画像
    • お問い合わせ
    交通

    北九州モノレール 徳力嵐山口駅 徒歩6分

    その他の交通

    北九州モノレール 徳力公団前駅 徒歩13分

    北九州モノレール 志井駅 徒歩16分
    [バス利用可] バス 南方4丁目 停歩2分

    所在地 福岡県北九州市小倉南区南方5丁目
    物件種目 貸店舗(建物一括)
    賃料 19.8万円 管理費等 なし
    敷金 / 保証金 2ヶ月 / なし 礼金 なし
    敷引 2ヶ月 坪単価 0.9103万円
    保証金償却 権利金
    造作譲渡 その他一時金
    維持費等 保険等 要 1年 20,000円 あいおいニッセイ同和損保
    使用部分面積 71.91m² 坪数 21.75坪
    築年月 1996年1月(築30年) 階建 / 階 1階建 / 1階
    駐車場 有 無料 バイク置き場
    駐輪場 土地面積 222.17m²(公簿)
    接道状況 南 8.0m 公道 接面15.0m 用途地域 1種中高
    間取り 建物構造 鉄骨造
    建物名・部屋番号  
    リフォーム履歴 ■水回り:2018年7月
    トイレ、給排水管
    ■内装:2019年2月
    洗面化粧台交換
    ■外装:2018年12月
    屋根
    ※実施年月は最も古い履歴を表示
    リノベーション履歴
    特記事項 24時間利用可、土日・祝日利用可、OAフロア、大型トラック搬入可、飲食店不可、駐車場3台分以上
    備考
    賃貸保証等:加入要(賃貸保証 シーアイゼット 保証料 賃料合計の90% 審査事務手数料2,200円 年間保証料 賃料合計の10%)
    管理形態/管理員の勤務形態:-/-
    主要採光面:西向き
    エネルギー消費性能
    断熱性能
    目安光熱費
    バス・トイレ トイレ
    キッチン
    設備・サービス 看板取付スペースあり、空調機あり
    エアコン2台以上、収納スペース、プロパンガス
    その他
    契約期間 3年 条件等
    引渡可能時期 指定有り2026年3月15日 現況 居住中
    更新料 物件番号 6964828880
    情報公開日 2025年12月15日 次回更新予定日 2025年12月31日
    ケータイ用バーコード

    QRコード

    スマートフォンでこの物件を見る
    スマートフォンからもこの物件をご覧になれます。
    ※「-」と表示されている項目については、情報提供会社にご確認ください。

    この物件の周辺情報

    周辺施設 スーパーとみやま桜橋店
    距離 369m
    周辺施設 ハローデイ南方店
    距離 621m
    周辺施設 ヤマザキショップ南方店
    距離 215m
    周辺施設 マクドナルド322徳力店
    距離 594m
    周辺施設 くすりのフタバ徳力店
    距離 433m
    周辺施設 小倉徳力郵便局
    距離 808m
    周辺施設 西日本シティ銀行徳力支店
    距離 723m
    周辺施設 福岡銀行徳力支店
    距離 866m

    クイックお問い合わせ

    ここから簡単にお問い合わせをすることができます。
    (SSLでの暗号化での送信を希望されるお客さまは こちら よりお問い合わせください)

    お問い合わせ内容(必須)
    物件のお問い合わせ理由(必須)
    お名前・ご担当者様名(必須) 姓  名 
    メールアドレス(必須)
    ※携帯電話のメールアドレスをご入力される方はこちらをご確認ください
    電話番号(必須)
    - -
    備考欄 希望条件、物件案内希望日、質問などがございましたらご記入ください。
    お問い合わせを行う前に「個人情報の取り扱いについて」を必ずお読みください。
    「個人情報の取り扱いについて」に同意いただいた場合は「上記にご同意の上 確認画面へ進む」のボタンをクリックしてください。

    個人情報の取り扱いについて

    皆さまが送付された個人情報はアットホーム(株)のサーバを経由し、お問い合わせ先の不動産会社にメールまたはFAXにて転送されるためアットホーム(株)にも保管されます。アットホーム(株)で保管された個人情報の取り扱いについては、【こちら】をご覧ください。
    また、本画面でご記入いただいた個人情報は、お問い合わせ先の不動産会社でも保管します。 お問い合わせ先の不動産会社が保管する個人情報の取り扱いについては、不動産会社に直接お問い合わせください。

    情報提供会社

    情報提供会社

    (有)不動産エイジェンシー

    福岡県知事免許(6)第14297号

    交通:
    北九州モノレール/競馬場前駅 徒歩2分
    福岡県北九州市小倉南区北方4丁目3-31 
    TEL:
    093-965-7755
    FAX:
    093-965-7756
    所属団体:
    (公社)福岡県宅地建物取引業協会会員
    (一社)全国賃貸不動産管理業協会会員
    (一社)九州不動産公正取引協議会加盟

    取引態様:仲介

    • 会社情報
    • 80901132
    スマートフォンで
    この不動産会社を見る
    QRコード
    • お問い合わせ
    • 提携サイト等より掲載されている物件情報につきましては、不動産会社詳細情報にリンクされていないものがあります。
    • 物件に関するお問合せは、物件詳細ページの「情報提供会社」に表示されている不動産会社へ直接お願いいたします。
    • 間取図は、現況を優先させていただきます。
    • 映像は物件の一部を撮影したものです。物件の契約にあたっての最終判断はご自身の判断に基づいて行ってください。
    • 仲介手数料について仲介手数料

    アットホームは物件情報の適正化に努めております。 内容に誤りがある場合にはこちらへご連絡ください。


    物件画像: