賃貸や不動産はアットホーム-賃貸マンション・賃貸物件・不動産なら アットホーム

東京都大田区多摩川1丁目(蒲田駅)の貸店舗:物件詳細

  • 物件詳細
  • 情報の見方
  • 印刷用画面
交通
所在地
駅徒歩 賃料
管理費等
敷金/保証金
礼金
使用部分面積
坪数/坪単価
物件種目
築年月

JR京浜東北線/蒲田

東京都大田区多摩川1丁目

20分

22万円

なし

3ヶ月 / なし

1ヶ月

85.00m²

25.71坪/0.8557万円

貸店舗・事務所

1994年3月(築31年9ヶ月)

おすすめコメント

最寄駅徒歩5分・1フロア貸しテナント・エレベーター付き建物・天井コンセントあり・コンセント多数・エアコン2台・水道ガス動力環境有・三面採光・南向き角地

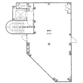
間取図

間取図

外観

外観

その他の画像
  • 外観
  • 外観
    • お問い合わせ
    交通

    JR京浜東北線 蒲田駅 徒歩20分

    その他の交通

    東急多摩川線 矢口渡駅 徒歩5分

    東急池上線 蓮沼駅 徒歩12分

    所在地 東京都大田区多摩川1丁目
    物件種目 貸店舗・事務所
    賃料 22万円 管理費等 なし
    敷金 / 保証金 3ヶ月 / なし 礼金 1ヶ月
    敷引 坪単価 0.8557万円
    保証金償却 権利金
    造作譲渡 その他一時金
    維持費等 保険等 要 2年 18,000円 火災
    使用部分面積 85.00m² 坪数 25.71坪
    築年月 1994年3月(築31年9ヶ月) 階建 / 階 5階建 / 2階
    駐車場 バイク置き場
    駐輪場 土地面積
    接道状況 南西 ・ 北 ・ 二方道路 用途地域
    間取り ワンルーム 建物構造 鉄骨造
    アピールポイント 駅徒歩4分の好立地!事務所・店舗ご相談ください★
    12月上旬入居可能予定です!お気軽にご連絡ください。
    建物名・部屋番号 大裕工業ビル 2階
    リフォーム履歴
    リノベーション履歴
    特記事項 24時間利用可、土曜日利用可、土日・祝日利用可、1フロア1テナント、角部屋
    備考
    賃貸保証等:加入要(初回100%・年間10%・口振手数料300円+税)
    管理形態/管理員の勤務形態:-/-
    主要採光面:南向き
    業種応相談・店舗相談可
    内見前に業種要確認
    解約短期違約金あり(1年以内の解約は1ヶ月分)
    エネルギー消費性能
    断熱性能
    目安光熱費
    バス・トイレ 共用部分にトイレあり
    キッチン
    設備・サービス エアコン2台以上、給湯、都市ガス、動力あり、エアコン、暖房、冷房
    その他 エレベーター
    契約期間 3年 条件等
    引渡可能時期 2025年12月上旬予定 現況 居住中
    仲介手数料 1ヶ月    
    更新料 新賃料 1ヶ月 物件番号 6963482031
    情報公開日 2025年8月29日 次回更新予定日 2025年11月16日
    ケータイ用バーコード

    QRコード

    スマートフォンでこの物件を見る
    スマートフォンからもこの物件をご覧になれます。
    ※「-」と表示されている項目については、情報提供会社にご確認ください。

    この物件の周辺情報

    周辺施設 蒲田安方郵便局
    距離 110m
    周辺施設 ローソン東矢口二丁目店
    距離 257m
    周辺施設 キッズラボ矢口渡駅前保育園
    距離 326m
    周辺施設 すき家環八矢口渡店
    距離 276m
    周辺施設 池上長尾保育園
    距離 366m
    周辺施設 島忠大田千鳥店
    距離 584m
    周辺施設 ゆうちょ銀行本店西友矢口の渡店内出張所
    距離 600m
    周辺施設 芝信用金庫矢口支店
    距離 796m

    クイックお問い合わせ

    ここから簡単にお問い合わせをすることができます。
    (SSLでの暗号化での送信を希望されるお客さまは こちら よりお問い合わせください)

    お問い合わせ内容(必須)
    物件のお問い合わせ理由(必須)
    お名前・ご担当者様名(必須) 姓  名 
    メールアドレス(必須)
    ※携帯電話のメールアドレスをご入力される方はこちらをご確認ください
    電話番号(必須)
    - -
    備考欄 希望条件、物件案内希望日、質問などがございましたらご記入ください。
    お問い合わせを行う前に「個人情報の取り扱いについて」を必ずお読みください。
    「個人情報の取り扱いについて」に同意いただいた場合は「上記にご同意の上 確認画面へ進む」のボタンをクリックしてください。

    個人情報の取り扱いについて

    皆さまが送付された個人情報はアットホーム(株)のサーバを経由し、お問い合わせ先の不動産会社にメールまたはFAXにて転送されるためアットホーム(株)にも保管されます。アットホーム(株)で保管された個人情報の取り扱いについては、【こちら】をご覧ください。
    また、本画面でご記入いただいた個人情報は、お問い合わせ先の不動産会社でも保管します。 お問い合わせ先の不動産会社が保管する個人情報の取り扱いについては、不動産会社に直接お問い合わせください。

    情報提供会社

    情報提供会社

    ディライトコンサルティング(株)

    東京都知事免許(3)第98141号

    交通:
    東京メトロ半蔵門線/神保町駅 徒歩4分
    東京都千代田区神田神保町1丁目41番地 三省堂第二ビル5階
    TEL:
    03-5244-5407
    FAX:
    03-5577-3606
    所属団体:
    (公社)東京都宅地建物取引業協会会員
    (公社)首都圏不動産公正取引協議会加盟

    取引態様:代理

    • 会社情報
    • 00163161
    スマートフォンで
    この不動産会社を見る
    QRコード
    • お問い合わせ
    • 提携サイト等より掲載されている物件情報につきましては、不動産会社詳細情報にリンクされていないものがあります。
    • 物件に関するお問合せは、物件詳細ページの「情報提供会社」に表示されている不動産会社へ直接お願いいたします。
    • 間取図は、現況を優先させていただきます。
    • 映像は物件の一部を撮影したものです。物件の契約にあたっての最終判断はご自身の判断に基づいて行ってください。
    • 仲介手数料について仲介手数料

    アットホームは物件情報の適正化に努めております。 内容に誤りがある場合にはこちらへご連絡ください。


    物件画像: