賃貸や不動産はアットホーム-賃貸マンション・賃貸物件・不動産なら アットホーム

愛知県豊明市二村台7丁目の貸店舗:物件詳細

  • 物件詳細
  • 情報の見方
  • 印刷用画面
交通
所在地
駅徒歩 賃料
管理費等
敷金/保証金
礼金
使用部分面積
坪数/坪単価
物件種目
築年月

【バス】二村台七丁目 停歩1分

愛知県豊明市二村台7丁目


26.4万円

なし

なし / 105.6万円

なし

363.50m²

109.95坪/0.2401万円

貸店舗・事務所(一括)

1986年11月(築39年6ヶ月)

おすすめコメント

交差点角ビル 2階建109.95坪 駐車8台可(賃料含む)現状渡し、間仕切り多数ありますが撤去は可能です 不動産店舗、リフォーム会社、その他教室や事務所、倉庫の用途に使えます。用途変更必要な業種は×

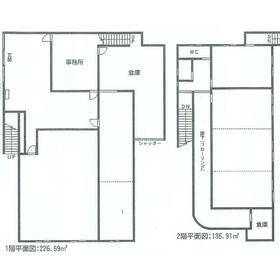
間取図

間取図

<
その他の画像
>
    • お問い合わせ
    交通

    【バス】 二村台七丁目 停歩1分

    所在地 愛知県豊明市二村台7丁目
    物件種目 貸店舗・事務所(一括)
    賃料 26.4万円 管理費等 なし
    敷金 / 保証金 なし / 105.6万円 礼金 なし
    敷引 坪単価 0.2401万円
    保証金償却 解約時50% 5年未満100% 5年以上50% 権利金
    造作譲渡 その他一時金
    維持費等 保険等
    使用部分面積 363.50m² 坪数 109.95坪
    築年月 1986年11月(築39年6ヶ月) 階建 / 階 2階建
    駐車場 有 無料(空き8台)
    店舗前に台可 倉庫前に1台
    バイク置き場
    駐輪場 土地面積
    接道状況 南西 8.0m ・ 北西 6.0m ・ 二方道路 用途地域
    間取り 建物構造 鉄骨造
    アピールポイント 交差点角 駐車8台可 2階建で約110坪あり 内装は現状渡しにて改修必要はかかりますが(エアコンは新設の必要あり)坪2500円とお得感あり、2階は二重窓となっており防音効果あり
    事務所や倉庫、各種教室関連の業種に向いてます。前テナント様の内装、間仕切りがあるので一度内覧にてお確かめください。
    建築図面等がなく用途変更必要な業種は不可となります。
    建物名・部屋番号 タケダビル 1-2階
    リフォーム履歴
    リノベーション履歴
    特記事項 24時間利用可
    備考
    管理形態/管理員の勤務形態:-/-
    駐車7台可 交差点角 一棟貸店舗事務所倉庫です

    〇1階約68坪2階約41坪 合計109.95坪
    〇駐車8台可
    〇1階倉庫も一部あり(天高3.3m) 
    〇エアコン残置あり(動作保証なし) トイレあり
    〇もと雑貨店の店舗と事務所、倉庫として使用していました
    〇現状渡し
    ●1階は現在雑貨店の内装となります。
    ●入居審査あり
    ●内覧可
    ●建築図面等書類なし、用途変更できません。
    ●使い勝手、業種等ご相談下さい
    エネルギー消費性能
    断熱性能
    目安光熱費
    バス・トイレ トイレ2ヶ所
    キッチン
    設備・サービス 個別空調、給湯、都市ガス、エアコン
    その他
    契約期間 5年 条件等
    引渡可能時期 相談 現況
    仲介手数料 1ヶ月    
    更新料 なし 物件番号 5083682501
    情報公開日 2025年12月11日 次回更新予定日 2026年4月24日
    ケータイ用バーコード

    QRコード

    スマートフォンでこの物件を見る
    スマートフォンからもこの物件をご覧になれます。
    ※「-」と表示されている項目については、情報提供会社にご確認ください。

    クイックお問い合わせ

    ここから簡単にお問い合わせをすることができます。
    (SSLでの暗号化での送信を希望されるお客さまは こちら よりお問い合わせください)

    お問い合わせ内容(必須)
    物件のお問い合わせ理由(必須)
    お名前・ご担当者様名(必須) 姓  名 
    メールアドレス(必須)
    ※携帯電話のメールアドレスをご入力される方はこちらをご確認ください
    電話番号(必須)
    - -
    備考欄 希望条件、物件案内希望日、質問などがございましたらご記入ください。
    お問い合わせを行う前に「個人情報の取り扱いについて」を必ずお読みください。
    「個人情報の取り扱いについて」に同意いただいた場合は「上記にご同意の上 確認画面へ進む」のボタンをクリックしてください。

    個人情報の取り扱いについて

    皆さまが送付された個人情報はアットホーム(株)のサーバを経由し、お問い合わせ先の不動産会社にメールまたはFAXにて転送されるためアットホーム(株)にも保管されます。アットホーム(株)で保管された個人情報の取り扱いについては、【こちら】をご覧ください。
    また、本画面でご記入いただいた個人情報は、お問い合わせ先の不動産会社でも保管します。 お問い合わせ先の不動産会社が保管する個人情報の取り扱いについては、不動産会社に直接お問い合わせください。

    情報提供会社

    情報提供会社

    (株)児玉工務店

    愛知県知事免許(10)第13054号

    交通:
    名古屋市桜通線/徳重駅 徒歩7分
    愛知県名古屋市緑区黒沢台5丁目402 コーポ佐野Ⅱ103
    TEL:
    052-876-7705
    FAX:
    052-876-6546
    所属団体:
    (公社)愛知県宅地建物取引業協会会員
    東海不動産公正取引協議会加盟

    取引態様:仲介

    • 会社情報
    • 40000570
    スマートフォンで
    この不動産会社を見る
    QRコード
    • お問い合わせ
    • 提携サイト等より掲載されている物件情報につきましては、不動産会社詳細情報にリンクされていないものがあります。
    • 物件に関するお問合せは、物件詳細ページの「情報提供会社」に表示されている不動産会社へ直接お願いいたします。
    • 間取図は、現況を優先させていただきます。
    • 映像は物件の一部を撮影したものです。物件の契約にあたっての最終判断はご自身の判断に基づいて行ってください。
    • 仲介手数料について仲介手数料

    アットホームは物件情報の適正化に努めております。 内容に誤りがある場合にはこちらへご連絡ください。


    物件画像: