賃貸や不動産はアットホーム-賃貸マンション・賃貸物件・不動産なら アットホーム

大阪府大阪市淀川区西中島4丁目(西中島南方駅)の貸店舗:物件詳細

  • 物件詳細
  • 情報の見方
  • 印刷用画面
交通
所在地
駅徒歩 賃料
管理費等
敷金/保証金
礼金
使用部分面積
坪数/坪単価
物件種目
築年月

地下鉄御堂筋線/西中島南方 新着

大阪府大阪市淀川区西中島4丁目

5分

28.6万円

44,000円

1ヶ月 / なし

2ヶ月

72.33m²

21.87坪/1.3072万円

貸店舗・事務所

2025年7月(新築)

おすすめコメント  スタッフ: 渡邊

賃料は28.6万円です。初期費用に敷金1ヵ月分が含まれます。礼金2ヶ月分など、入居に際して契約金が必要なのでご用意願います(*´ω`*)

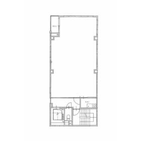
間取図

間取図

外観

外観

その他の画像
  • 室内
  • 室内
  • キッチン
  • トイレ
  • 設備
  • エントランス
  • 共有部分
    • お問い合わせ
    交通

    地下鉄御堂筋線 西中島南方駅 徒歩5分

    その他の交通

    JR東海道本線 新大阪駅 徒歩14分

    所在地 大阪府大阪市淀川区西中島4丁目
    物件種目 貸店舗・事務所
    賃料 28.6万円 管理費等 44,000円
    敷金 / 保証金 1ヶ月 / なし 礼金 2ヶ月
    敷引 坪単価 1.3072万円
    保証金償却 権利金
    造作譲渡 その他一時金 なし
    維持費等 保険等
    使用部分面積 72.33m² 坪数 21.87坪
    築年月 2025年7月(新築) 階建 / 階 6階建 / 5階
    駐車場 バイク置き場
    駐輪場 土地面積
    接道状況 用途地域
    間取り 建物構造 鉄骨造
    アピールポイント 周辺には、徒歩5分で利用できる駅があります。駅が周辺に2つあるので行動範囲が広がります。賃料は28.6万円です。初期費用として、礼金は2ヶ月分かかります(^o^)
    建物名・部屋番号 CROSSOVER Bldg 5階
    リフォーム履歴
    リノベーション履歴
    特記事項
    備考
    賃貸保証等:加入要(*要確認)
    管理形態/管理員の勤務形態:-/-
    賃料は28.6万円です。2駅利用できる場所にあり、アクセスが便利です。周辺には、徒歩5分で利用できる駅があります。初期費用に敷金1ヵ月分が含まれます。初期費用として、礼金は2ヶ月分かかります(^^)
    エネルギー消費性能
    断熱性能
    目安光熱費
    バス・トイレ トイレ
    キッチン
    設備・サービス
    その他 エレベーター
    契約期間 2年 条件等
    引渡可能時期 相談 現況
    更新料 物件番号 1171557707
    情報公開日 2026年2月15日 次回更新予定日 2026年3月1日
    ケータイ用バーコード

    QRコード

    スマートフォンでこの物件を見る
    スマートフォンからもこの物件をご覧になれます。
    ※「-」と表示されている項目については、情報提供会社にご確認ください。

    クイックお問い合わせ

    ここから簡単にお問い合わせをすることができます。
    (SSLでの暗号化での送信を希望されるお客さまは こちら よりお問い合わせください)

    お問い合わせ内容(必須)
    物件のお問い合わせ理由(必須)
    お名前・ご担当者様名(必須) 姓  名 
    メールアドレス(必須)
    ※携帯電話のメールアドレスをご入力される方はこちらをご確認ください
    電話番号(必須)
    - -
    備考欄 希望条件、物件案内希望日、質問などがございましたらご記入ください。
    お問い合わせを行う前に「個人情報の取り扱いについて」を必ずお読みください。
    「個人情報の取り扱いについて」に同意いただいた場合は「上記にご同意の上 確認画面へ進む」のボタンをクリックしてください。

    個人情報の取り扱いについて

    皆さまが送付された個人情報はアットホーム(株)のサーバを経由し、お問い合わせ先の不動産会社にメールまたはFAXにて転送されるためアットホーム(株)にも保管されます。アットホーム(株)で保管された個人情報の取り扱いについては、【こちら】をご覧ください。
    また、本画面でご記入いただいた個人情報は、お問い合わせ先の不動産会社でも保管します。 お問い合わせ先の不動産会社が保管する個人情報の取り扱いについては、不動産会社に直接お問い合わせください。

    情報提供会社

    情報提供会社

    (株)ASC エーエスシー不動産

    大阪府知事免許(1)第66539号

    交通:
    地下鉄谷町線/谷町四丁目駅 徒歩1分
    大阪府大阪市中央区谷町3丁目4-5 リアライズ谷町ビル705号室
    TEL:
    06-6314-6988
    FAX:
    06-6314-6989
    所属団体:
    (公社)全日本不動産協会会員
    (公社)近畿地区不動産公正取引協議会加盟

    取引態様:仲介

    • 会社情報
    • 50111590
    スマートフォンで
    この不動産会社を見る
    QRコード
    • お問い合わせ
    • 提携サイト等より掲載されている物件情報につきましては、不動産会社詳細情報にリンクされていないものがあります。
    • 物件に関するお問合せは、物件詳細ページの「情報提供会社」に表示されている不動産会社へ直接お願いいたします。
    • 間取図は、現況を優先させていただきます。
    • 映像は物件の一部を撮影したものです。物件の契約にあたっての最終判断はご自身の判断に基づいて行ってください。
    • 仲介手数料について仲介手数料

    アットホームは物件情報の適正化に努めております。 内容に誤りがある場合にはこちらへご連絡ください。


    物件画像: