賃貸や不動産はアットホーム-賃貸マンション・賃貸物件・不動産なら アットホーム

兵庫県神戸市中央区下山手通2丁目(旧居留地・大丸前駅)の貸店舗:物件詳細

  • 物件詳細
  • 情報の見方
  • 印刷用画面
交通
所在地
駅徒歩 賃料
管理費等
敷金/保証金
礼金
使用部分面積
坪数/坪単価
物件種目
築年月

地下鉄海岸線/旧居留地・大丸前

兵庫県神戸市中央区下山手通2丁目

6分

32.3675万円

142,725円

255万円 / なし

なし

142.99m²

43.25坪/0.7484万円

貸店舗

1974年3月(築51年9ヶ月)

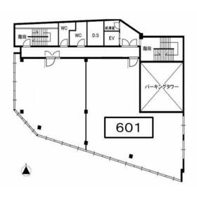
間取図

間取図

外観

外観

<
その他の画像
  • 室内
  • 室内
  • 室内
  • 室内
  • 眺望
  • 室内
  • 室内
  • 設備
  • 設備
  • その他
  • 共有部分
  • 共有部分
  • 共有部分
  • 洗面
  • 洗面
  • トイレ
>
    • お問い合わせ
    交通

    地下鉄海岸線 旧居留地・大丸前駅 徒歩6分

    その他の交通

    JR東海道本線 元町駅 徒歩8分

    JR東海道本線 三ノ宮駅 徒歩9分

    所在地 兵庫県神戸市中央区下山手通2丁目
    物件種目 貸店舗
    賃料 32.3675万円 管理費等 142,725円
    敷金 / 保証金 255万円 / なし 礼金 なし
    敷引 坪単価 0.7484万円
    保証金償却 権利金
    造作譲渡 その他一時金 なし
    維持費等 保険等
    使用部分面積 142.99m² 坪数 43.25坪
    築年月 1974年3月(築51年9ヶ月) 階建 / 階 地上9階地下2階建 / 6階
    駐車場 有 33,000円/月 バイク置き場
    駐輪場 土地面積
    接道状況 用途地域 商業地域
    間取り 建物構造 SRC
    建物名・部屋番号 建創ビル 601
    リフォーム履歴
    リノベーション履歴
    特記事項 土曜日利用可、土日・祝日利用可
    備考
    賃貸保証等:加入要(全保連 賃料の1/2~1ヶ月(保証会社により異なります)保証会社はオーナー指定です。)
    管理形態/管理員の勤務形態:-/-
    ★神戸市営地下鉄より徒歩6分の便利な立地。三宮からも元町からも徒歩圏内です ★1階にはコンビニがあり、フィットネスや連宅オフィスなど多業種が入っています ★24時間利用可能です
    敷引:原状回復費
    正面玄関:7:00~22:00
    エネルギー消費性能
    断熱性能
    目安光熱費
    バス・トイレ トイレ、多機能トイレ
    キッチン
    設備・サービス 個別空調、エアコン
    その他 エレベーター
    契約期間 3年 条件等
    引渡可能時期 相談 現況
    更新料 物件番号 1171442007
    情報公開日 2025年10月24日 次回更新予定日 2025年11月7日
    ケータイ用バーコード

    QRコード

    スマートフォンでこの物件を見る
    スマートフォンからもこの物件をご覧になれます。
    ※「-」と表示されている項目については、情報提供会社にご確認ください。

    クイックお問い合わせ

    ここから簡単にお問い合わせをすることができます。
    (SSLでの暗号化での送信を希望されるお客さまは こちら よりお問い合わせください)

    お問い合わせ内容(必須)
    物件のお問い合わせ理由(必須)
    お名前・ご担当者様名(必須) 姓  名 
    メールアドレス(必須)
    ※携帯電話のメールアドレスをご入力される方はこちらをご確認ください
    電話番号(必須)
    - -
    備考欄 希望条件、物件案内希望日、質問などがございましたらご記入ください。
    お問い合わせを行う前に「個人情報の取り扱いについて」を必ずお読みください。
    「個人情報の取り扱いについて」に同意いただいた場合は「上記にご同意の上 確認画面へ進む」のボタンをクリックしてください。

    個人情報の取り扱いについて

    皆さまが送付された個人情報はアットホーム(株)のサーバを経由し、お問い合わせ先の不動産会社にメールまたはFAXにて転送されるためアットホーム(株)にも保管されます。アットホーム(株)で保管された個人情報の取り扱いについては、【こちら】をご覧ください。
    また、本画面でご記入いただいた個人情報は、お問い合わせ先の不動産会社でも保管します。 お問い合わせ先の不動産会社が保管する個人情報の取り扱いについては、不動産会社に直接お問い合わせください。

    情報提供会社

    情報提供会社

    おうち家不動産新神戸(株)

    兵庫県知事免許(2)第12205号

    交通:
    山陽新幹線/新神戸駅 徒歩2分
    兵庫県神戸市中央区生田町1丁目4-20-102 新神戸ビルディング
    TEL:
    078-862-1520
    FAX:
    078-862-1530
    所属団体:
    (一社)兵庫県宅地建物取引業協会会員
    (公社)近畿地区不動産公正取引協議会加盟

    取引態様:仲介

    • 会社情報
    • 50105188
    スマートフォンで
    この不動産会社を見る
    QRコード
    • お問い合わせ
    • 提携サイト等より掲載されている物件情報につきましては、不動産会社詳細情報にリンクされていないものがあります。
    • 物件に関するお問合せは、物件詳細ページの「情報提供会社」に表示されている不動産会社へ直接お願いいたします。
    • 間取図は、現況を優先させていただきます。
    • 映像は物件の一部を撮影したものです。物件の契約にあたっての最終判断はご自身の判断に基づいて行ってください。
    • 仲介手数料について仲介手数料

    アットホームは物件情報の適正化に努めております。 内容に誤りがある場合にはこちらへご連絡ください。


    物件画像: