賃貸や不動産はアットホーム-賃貸マンション・賃貸物件・不動産なら アットホーム

愛知県刈谷市一色町3丁目(重原駅)の貸店舗:物件詳細

  • 物件詳細
  • 情報の見方
  • 印刷用画面
交通
所在地
駅徒歩 賃料
管理費等
敷金/保証金
礼金
使用部分面積
坪数/坪単価
物件種目
築年月

名鉄三河線/重原 新着

愛知県刈谷市一色町3丁目

10分

389.367万円

1,168,101円

なし / 3ヶ月

なし

1,172.37m²

354.64坪/1.098万円

貸店舗・事務所(一括)

2025年12月(新築)

おすすめコメント  スタッフ: 店舗、事務所専門の不動産会社

【テンポランナー】最速対応◆物件動画あり◆駐車50台◆名鉄三河線「重原駅」徒歩10分!2026年1月引渡可能予定です。ご内覧のご予約承ります!諸条件ご相談ください☆

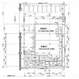
間取図

間取図

外観

外観

その他の画像
    • お問い合わせ
    交通

    名鉄三河線 重原駅 徒歩10分

    その他の交通

    東海道本線 刈谷駅 徒歩14分

    名鉄三河線 刈谷駅 徒歩15分

    所在地 愛知県刈谷市一色町3丁目
    物件種目 貸店舗・事務所(一括)
    賃料 389.367万円 管理費等 1,168,101円
    敷金 / 保証金 なし / 3ヶ月 礼金 なし
    敷引 坪単価 1.098万円
    保証金償却 権利金
    造作譲渡 その他一時金 なし
    維持費等 保険等
    使用部分面積 1,172.37m² 坪数 354.64坪
    築年月 2025年12月(新築) 階建 / 階 5階建
    駐車場 有 6,600円/月(空き50台) バイク置き場
    駐輪場 土地面積
    接道状況 用途地域 準工業
    間取り 建物構造 鉄骨造
    アピールポイント ★物件動画★
    ・メール、ショートメール、LINEにてURLのリンクをお送りしております。
    ・お問合せフォームにて「物件動画希望」とお申し付けください♪

    ★ご契約までのスケジュール一例★
    ①物件のお問合せ
    ・気になられた物件名をお教えください。
    ・併せましてご利用の用途をお伝えください♪

    ②物件の現地ご内覧
    ・ご希望の日時に現地ご案内致します。

    ②内装、設備などお見積もり
    ・再度ご内覧ください♪

    ③ご入居申込 
    ・必要書類:ご入居申込書
    法人様 (会社謄本写し、社長様の運転免許証の写し)
    個人様 (ご契約者様の身分証両面写し、連帯保証人予定者様の身分証両面の写し)

    ④条件交渉、入居審査
    ・入居日、賃料等の条件交渉
    ・貸主様、保証会社にて審査

    ⑤審査、交渉結果のご回答

    ⑥ご契約の締結
    ・重要事項説明書の読み上げ、ご契約書へのご署名と押印(ZOOMでの対応も可能です♪)
    ・初期費用のお振込み
    ・必要書類のご提出(借主様、連帯保証人様印鑑証明書原本、火災保険証の写し)
    ・改装工事の内容がお決まりになりましたら弊社にお知らせください。

    ⑦ご契約開始日、鍵のお渡しとなります!
    建物名・部屋番号 刈谷一色ビル(駐車50台) 一棟
    リフォーム履歴
    リノベーション履歴
    特記事項 OAフロア、飲食店不可、IT重説対応物件
    備考
    賃貸保証等:加入要(初回保証料月額賃料等1か月分)
    管理形態/管理員の勤務形態:-/-
    IT重説対応物件
    ・物件の動画を撮影致しました♪メールでお送りいたします!
    ・刈谷一色町にオフィスビル建築中!
    ・1棟貸し~1フロア貸・各階区割り貸まで幅広く対応できます。
    ・1階はオフィス以外も可能です♪
    ・駐車場合計50台完備!
    ・◆敷地内 6,500円(税別)10台 ◆敷地外 6,000円(税別)13台 ◆軽5,500円(税別)1台 ◆敷地外機械式 6,000円(税別)26台
    エネルギー消費性能
    断熱性能
    目安光熱費
    バス・トイレ トイレ
    キッチン
    設備・サービス 空調機あり
    オートロック
    その他 エレベーター
    契約期間 10年 条件等
    引渡可能時期 2026年1月上旬予定 現況 未完成
    仲介手数料 1ヶ月    
    更新料 物件番号 1171193207
    情報公開日 2025年12月17日 次回更新予定日 2025年12月31日
    ケータイ用バーコード

    QRコード

    スマートフォンでこの物件を見る
    スマートフォンからもこの物件をご覧になれます。
    ※「-」と表示されている項目については、情報提供会社にご確認ください。

    クイックお問い合わせ

    ここから簡単にお問い合わせをすることができます。
    (SSLでの暗号化での送信を希望されるお客さまは こちら よりお問い合わせください)

    お問い合わせ内容(必須)
    物件のお問い合わせ理由(必須)
    お名前・ご担当者様名(必須) 姓  名 
    メールアドレス(必須)
    ※携帯電話のメールアドレスをご入力される方はこちらをご確認ください
    電話番号(必須)
    - -
    備考欄 希望条件、物件案内希望日、質問などがございましたらご記入ください。
    お問い合わせを行う前に「個人情報の取り扱いについて」を必ずお読みください。
    「個人情報の取り扱いについて」に同意いただいた場合は「上記にご同意の上 確認画面へ進む」のボタンをクリックしてください。

    個人情報の取り扱いについて

    皆さまが送付された個人情報はアットホーム(株)のサーバを経由し、お問い合わせ先の不動産会社にメールまたはFAXにて転送されるためアットホーム(株)にも保管されます。アットホーム(株)で保管された個人情報の取り扱いについては、【こちら】をご覧ください。
    また、本画面でご記入いただいた個人情報は、お問い合わせ先の不動産会社でも保管します。 お問い合わせ先の不動産会社が保管する個人情報の取り扱いについては、不動産会社に直接お問い合わせください。

    情報提供会社

    情報提供会社

    (株)テンポランナー

    愛知県知事免許(1)第24946号

    交通:
    名鉄名古屋本線/知立駅 徒歩5分
    愛知県知立市南新地1丁目2番地2 丸岡ビル2階H号室
    TEL:
    0566-81-4600
    FAX:
    0566-81-4601
    所属団体:
    (公社)愛知県宅地建物取引業協会会員
    東海不動産公正取引協議会加盟

    取引態様:仲介

    • 会社情報
    • 40409714
    スマートフォンで
    この不動産会社を見る
    QRコード
    • お問い合わせ
    • 提携サイト等より掲載されている物件情報につきましては、不動産会社詳細情報にリンクされていないものがあります。
    • 物件に関するお問合せは、物件詳細ページの「情報提供会社」に表示されている不動産会社へ直接お願いいたします。
    • 間取図は、現況を優先させていただきます。
    • 映像は物件の一部を撮影したものです。物件の契約にあたっての最終判断はご自身の判断に基づいて行ってください。
    • 仲介手数料について仲介手数料

    アットホームは物件情報の適正化に努めております。 内容に誤りがある場合にはこちらへご連絡ください。


    物件画像: