JR東海道本線/茨木
大阪府茨木市駅前3丁目
7分
44万円
66,000円
80万円 / なし
88万円
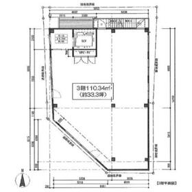
110.34m²
33.37坪/1.3183万円
貸店舗・事務所
2025年5月(築1年未満)
間取図
間取
外観
JR東海道本線 茨木駅 徒歩7分
阪急京都線 茨木市駅 徒歩11分
大阪モノレール本線 南茨木駅 徒歩19分
ここから簡単にお問い合わせをすることができます。(SSLでの暗号化での送信を希望されるお客さまは こちら よりお問い合わせください)
携帯電話のメール受信設定でドメイン指定受信設定をしている方は、 アットホームからのお問い合わせ内容確認メールおよび不動産会社からの返信メールが届かない場合があります。 必ず、下記ドメインからのメールが受信できるように設定の変更をお願いします。
アットホームからのお問い合せ内容確認メール:athome.jp 賃貸住宅サービス NetWorkJR茨木店 (株)FACE:cjs.ne.jp
皆さまが送付された個人情報はアットホーム(株)のサーバを経由し、お問い合わせ先の不動産会社にメールまたはFAXにて転送されるためアットホーム(株)にも保管されます。アットホーム(株)で保管された個人情報の取り扱いについては、【こちら】をご覧ください。 また、本画面でご記入いただいた個人情報は、お問い合わせ先の不動産会社でも保管します。 お問い合わせ先の不動産会社が保管する個人情報の取り扱いについては、不動産会社に直接お問い合わせください。
大阪府知事免許(3)第56606号
取引態様:仲介
アットホームは物件情報の適正化に努めております。 内容に誤りがある場合にはこちらへご連絡ください。