賃貸や不動産はアットホーム-賃貸マンション・賃貸物件・不動産なら アットホーム

大阪府茨木市駅前3丁目(茨木駅)の貸店舗:物件詳細

  • 物件詳細
  • 情報の見方
  • 印刷用画面
交通
所在地
駅徒歩 賃料
管理費等
敷金/保証金
礼金
使用部分面積
坪数/坪単価
物件種目
築年月

JR東海道本線/茨木

大阪府茨木市駅前3丁目

7分

66万円

55,000円

120万円 / なし

132万円

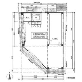
98.37m²

29.75坪/2.218万円

貸店舗・事務所

2025年5月(築1年未満)

間取図

間取図

間取

外観

外観

外観

  • お問い合わせ
交通

JR東海道本線 茨木駅 徒歩7分

その他の交通

阪急京都線 茨木市駅 徒歩11分

大阪モノレール本線 南茨木駅 徒歩19分

所在地 大阪府茨木市駅前3丁目
物件種目 貸店舗・事務所
賃料 66万円 管理費等 55,000円
敷金 / 保証金 120万円 / なし 礼金 132万円
敷引 坪単価 2.218万円
保証金償却 権利金
造作譲渡 その他一時金 なし
維持費等 保険等
使用部分面積 98.37m² 坪数 29.75坪
築年月 2025年5月(築1年未満) 階建 / 階 3階建 / 1階
駐車場 バイク置き場
駐輪場 土地面積
接道状況 用途地域
間取り 建物構造 鉄骨造
建物名・部屋番号  
リフォーム履歴
リノベーション履歴
特記事項 飲食店不可
備考
賃貸保証等:加入要(全保連 初回100%、1年毎10%)
管理形態/管理員の勤務形態:-/-
エネルギー消費性能
断熱性能
目安光熱費
バス・トイレ
キッチン
設備・サービス
その他
契約期間 2年 条件等
引渡可能時期 即時 現況
更新料 物件番号 1151953411
情報公開日 2025年11月13日 次回更新予定日 2025年12月28日
ケータイ用バーコード

QRコード

スマートフォンでこの物件を見る
スマートフォンからもこの物件をご覧になれます。
※「-」と表示されている項目については、情報提供会社にご確認ください。

クイックお問い合わせ

ここから簡単にお問い合わせをすることができます。
(SSLでの暗号化での送信を希望されるお客さまは こちら よりお問い合わせください)

お問い合わせ内容(必須)
物件のお問い合わせ理由(必須)
お名前・ご担当者様名(必須) 姓  名 
メールアドレス(必須)
※携帯電話のメールアドレスをご入力される方はこちらをご確認ください
電話番号(必須)
- -
備考欄 希望条件、物件案内希望日、質問などがございましたらご記入ください。
お問い合わせを行う前に「個人情報の取り扱いについて」を必ずお読みください。
「個人情報の取り扱いについて」に同意いただいた場合は「上記にご同意の上 確認画面へ進む」のボタンをクリックしてください。

個人情報の取り扱いについて

皆さまが送付された個人情報はアットホーム(株)のサーバを経由し、お問い合わせ先の不動産会社にメールまたはFAXにて転送されるためアットホーム(株)にも保管されます。アットホーム(株)で保管された個人情報の取り扱いについては、【こちら】をご覧ください。
また、本画面でご記入いただいた個人情報は、お問い合わせ先の不動産会社でも保管します。 お問い合わせ先の不動産会社が保管する個人情報の取り扱いについては、不動産会社に直接お問い合わせください。

情報提供会社

情報提供会社

賃貸住宅サービス NetWorkJR茨木店 (株)FACE

大阪府知事免許(3)第56606号

交通:
JR東海道本線/茨木駅 徒歩2分
大阪府茨木市西駅前町4-37 
TEL:
072-631-4146
FAX:
072-631-4147
所属団体:
(公社)全日本不動産協会会員
(公社)近畿地区不動産公正取引協議会加盟

取引態様:仲介

  • 会社情報
  • 50100733
スマートフォンで
この不動産会社を見る
QRコード
  • お問い合わせ
  • 提携サイト等より掲載されている物件情報につきましては、不動産会社詳細情報にリンクされていないものがあります。
  • 物件に関するお問合せは、物件詳細ページの「情報提供会社」に表示されている不動産会社へ直接お願いいたします。
  • 間取図は、現況を優先させていただきます。
  • 映像は物件の一部を撮影したものです。物件の契約にあたっての最終判断はご自身の判断に基づいて行ってください。
  • 仲介手数料について仲介手数料

アットホームは物件情報の適正化に努めております。 内容に誤りがある場合にはこちらへご連絡ください。


物件画像: