賃貸や不動産はアットホーム-賃貸マンション・賃貸物件・不動産なら アットホーム

徳島県徳島市八百屋町1丁目(徳島駅)の貸店舗:物件詳細

  • 物件詳細
  • 情報の見方
  • 印刷用画面
交通
所在地
駅徒歩 賃料
管理費等
敷金/保証金
礼金
使用部分面積
坪数/坪単価
物件種目
築年月

JR高徳線/徳島

徳島県徳島市八百屋町1丁目

5分

20.6096万円

なし

6ヶ月 / なし

なし

77.43m²

23.42坪/0.88万円

貸店舗・事務所

1987年2月(築38年10ヶ月)

おすすめコメント

弊社グループの管理物件を募集しています!ご質問・ご内見希望はお気軽にお問合せください♪

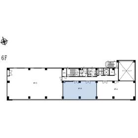
間取図

間取図

エントランス

エントランス

エントランス

その他の画像
  • 共有部分
  • 共有部分
  • 外観
  • 共有部分
  • トイレ
  • トイレ
  • 共有部分
    • お問い合わせ
    交通

    JR高徳線 徳島駅 徒歩5分

    その他の交通

    JR徳島線 徳島駅 徒歩5分

    JR牟岐線 徳島駅 徒歩5分

    所在地 徳島県徳島市八百屋町1丁目
    物件種目 貸店舗・事務所
    賃料 20.6096万円 管理費等 なし
    敷金 / 保証金 6ヶ月 / なし 礼金 なし
    敷引 坪単価 0.88万円
    保証金償却 権利金
    造作譲渡 その他一時金 なし
    維持費等 水道料:2,576円/月 保険等
    使用部分面積 77.43m² 坪数 23.42坪
    築年月 1987年2月(築38年10ヶ月) 階建 / 階 6階建 / 6階
    駐車場 有 25,300円/月
    機械式駐車場サイズ ◆全長:5050mm以下 ◆全幅:1850mm以下 ◆全高:1580mm以下 ◆重量:1600kg以下 ◆タイヤ外幅:1690mm以下
    バイク置き場
    駐輪場 土地面積
    接道状況 用途地域
    間取り 建物構造 SRC
    建物名・部屋番号 グラン徳島 6F-B
    リフォーム履歴
    リノベーション履歴
    特記事項 最上階、IT重説対応物件
    備考
    管理形態/管理員の勤務形態:-/-
    IT重説対応物件
    エネルギー消費性能
    断熱性能
    目安光熱費
    バス・トイレ
    キッチン
    設備・サービス
    その他 エレベーター2基以上、エレベーター
    契約期間 2年 条件等
    引渡可能時期 相談 現況 使用中
    仲介手数料 1.1ヶ月    
    更新料 物件番号 1147939413
    情報公開日 2025年7月14日 次回更新予定日 2025年11月12日
    ケータイ用バーコード

    QRコード

    スマートフォンでこの物件を見る
    スマートフォンからもこの物件をご覧になれます。
    ※「-」と表示されている項目については、情報提供会社にご確認ください。

    クイックお問い合わせ

    ここから簡単にお問い合わせをすることができます。
    (SSLでの暗号化での送信を希望されるお客さまは こちら よりお問い合わせください)

    お問い合わせ内容(必須)
    物件のお問い合わせ理由(必須)
    お名前・ご担当者様名(必須) 姓  名 
    メールアドレス(必須)
    ※携帯電話のメールアドレスをご入力される方はこちらをご確認ください
    電話番号(必須)
    - -
    備考欄 希望条件、物件案内希望日、質問などがございましたらご記入ください。
    お問い合わせを行う前に「個人情報の取り扱いについて」を必ずお読みください。
    「個人情報の取り扱いについて」に同意いただいた場合は「上記にご同意の上 確認画面へ進む」のボタンをクリックしてください。

    個人情報の取り扱いについて

    皆さまが送付された個人情報はアットホーム(株)のサーバを経由し、お問い合わせ先の不動産会社にメールまたはFAXにて転送されるためアットホーム(株)にも保管されます。アットホーム(株)で保管された個人情報の取り扱いについては、【こちら】をご覧ください。
    また、本画面でご記入いただいた個人情報は、お問い合わせ先の不動産会社でも保管します。 お問い合わせ先の不動産会社が保管する個人情報の取り扱いについては、不動産会社に直接お問い合わせください。

    情報提供会社

    情報提供会社

    (株)リオ・ソリューション 大阪支社

    国土交通大臣免許(2)第8884号

    交通:
    地下鉄谷町線/天満橋駅 徒歩3分
    大阪府大阪市中央区大手前2丁目1-2 國民會館大阪城ビル6F
    TEL:
    06-4790-7431
    FAX:
    06-4790-7433
    所属団体:
    (公社)全日本不動産協会会員
    (公社)近畿地区不動産公正取引協議会加盟

    取引態様:仲介

    • 会社情報
    • 50102004
    スマートフォンで
    この不動産会社を見る
    QRコード
    • お問い合わせ
    • 提携サイト等より掲載されている物件情報につきましては、不動産会社詳細情報にリンクされていないものがあります。
    • 物件に関するお問合せは、物件詳細ページの「情報提供会社」に表示されている不動産会社へ直接お願いいたします。
    • 間取図は、現況を優先させていただきます。
    • 映像は物件の一部を撮影したものです。物件の契約にあたっての最終判断はご自身の判断に基づいて行ってください。
    • 仲介手数料について仲介手数料

    アットホームは物件情報の適正化に努めております。 内容に誤りがある場合にはこちらへご連絡ください。


    物件画像: