賃貸や不動産はアットホーム-賃貸マンション・賃貸物件・不動産なら アットホーム

千葉県富里市日吉倉(京成成田駅)の貸店舗:物件詳細

  • 物件詳細
  • 情報の見方
  • 印刷用画面
交通
所在地
駅徒歩 賃料
管理費等
敷金/保証金
礼金
使用部分面積
坪数/坪単価
物件種目
築年月

京成本線/京成成田

千葉県富里市日吉倉

11分

11.85万円

5,500円

3ヶ月 / なし

1ヶ月

40.99m²

12.39坪/0.9557万円

貸店舗・事務所

1984年10月(築41年7ヶ月)

おすすめコメント

◆弊社に工事のご依頼をいただければ割引あり!◆店舗利用相談可能◇京成成田駅徒歩11分◇入居時期相談◇諸条件ご相談ください◇ご希望に合わせて物件のご提案が可能です◇お気軽にお問い合わせくださいませ♪

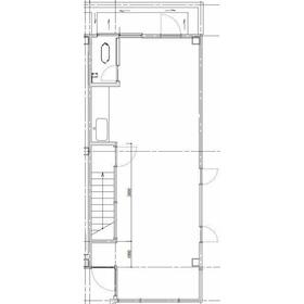
間取図

間取図

外観

外観

<
その他の画像
  • 室内
  • 室内
  • 室内
  • 室内
  • 室内
  • 外観
  • 外観
  • 地形図等
  • 販売店
  • 販売店
  • 役所
  • コンビニ
>
    • お問い合わせ
    交通

    京成本線 京成成田駅 徒歩11分

    その他の交通

    JR成田線 成田駅 徒歩12分

    所在地 千葉県富里市日吉倉
    物件種目 貸店舗・事務所
    賃料 11.85万円 管理費等 5,500円
    敷金 / 保証金 3ヶ月 / なし 礼金 1ヶ月
    敷引 坪単価 0.9557万円
    保証金償却 解約時1ヶ月 権利金
    造作譲渡 その他一時金 ジャパン少額短期:17,000円
    維持費等 保険等
    使用部分面積 40.99m² 坪数 12.39坪
    築年月 1984年10月(築41年7ヶ月) 階建 / 階 2階建 / 2階
    駐車場 バイク置き場
    駐輪場 土地面積
    接道状況 用途地域
    間取り 建物構造 鉄骨造
    アピールポイント 【物件選び★入居工事★原状回復工事までワンストップで対応可能!】
    テンポエステートは、テナント(店舗・事務所)専門仲介サービスとして、今まで1000件以上のテナント(店舗・事務所)不動産賃貸仲介に携わってきました。

    開業するにあたり、
    何から始めればいいんだろう。
    物件はどう決めたらいんだろう。
    内装ってどうやって頼んだらいいの?
    どんなものを準備すればいいの?
    そんなお悩みに丁寧にご対応させていただきます!

    テナント(店舗・事務所)物件をお探しの方は、テナント(店舗・事務所)専門仲介サービスのテンポエステートに、お気軽にお問い合わせください!

    【オーナー様へ】
    弊社では、SNSやLINEなどのツールを駆使してお客様とのコミュニティを広げており、オーナー様の物件状況によってピッタリのお客様をご紹介する体制が整っております。

    ・入居者探しをご検討している
    ・なかなか入居者が決まらない
    というオーナー様、

    是非、テナント(店舗・事務所)専門仲介サービスのテンポエステートにお問い合わせください!
    建物名・部屋番号  
    リフォーム履歴
    リノベーション履歴
    特記事項 土曜日利用可、土日・祝日利用可、飲食店可、最上階
    備考
    賃貸保証等:加入要(詳細はお問い合わせください)
    管理形態/管理員の勤務形態:-/-
    軽飲食業種により相談可
    EVなし 直通階段
    ビル駐車場あり(共用2台)
    フリーレント1ヵ月付(※管理費負担あり)

    建物に少々傾斜あり。
    (入居時に要床調整工事)
    エネルギー消費性能
    断熱性能
    目安光熱費
    バス・トイレ トイレ
    キッチン
    設備・サービス
    その他
    契約期間 4年 条件等 定期借家定期借家
    引渡可能時期 相談 現況 居住中
    仲介手数料 1.1ヶ月    
    更新料 新賃料 1ヶ月 物件番号 1131507115
    情報公開日 2026年4月3日 次回更新予定日 2026年4月17日
    ケータイ用バーコード

    QRコード

    スマートフォンでこの物件を見る
    スマートフォンからもこの物件をご覧になれます。
    ※「-」と表示されている項目については、情報提供会社にご確認ください。

    この物件の周辺情報

    周辺施設 ヤオコー 成田駅前店
    距離 503m
    周辺施設 イオンタウン成田富里
    距離 74m
    周辺施設 成田市役所 成田市教育センター
    距離 200m
    周辺施設 セブンイレブン 成田花崎町店
    距離 247m

    クイックお問い合わせ

    ここから簡単にお問い合わせをすることができます。
    (SSLでの暗号化での送信を希望されるお客さまは こちら よりお問い合わせください)

    お問い合わせ内容(必須)
    物件のお問い合わせ理由(必須)
    お名前・ご担当者様名(必須) 姓  名 
    メールアドレス(必須)
    ※携帯電話のメールアドレスをご入力される方はこちらをご確認ください
    電話番号(必須)
    - -
    備考欄 希望条件、物件案内希望日、質問などがございましたらご記入ください。
    お問い合わせを行う前に「個人情報の取り扱いについて」を必ずお読みください。
    「個人情報の取り扱いについて」に同意いただいた場合は「上記にご同意の上 確認画面へ進む」のボタンをクリックしてください。

    個人情報の取り扱いについて

    皆さまが送付された個人情報はアットホーム(株)のサーバを経由し、お問い合わせ先の不動産会社にメールまたはFAXにて転送されるためアットホーム(株)にも保管されます。アットホーム(株)で保管された個人情報の取り扱いについては、【こちら】をご覧ください。
    また、本画面でご記入いただいた個人情報は、お問い合わせ先の不動産会社でも保管します。 お問い合わせ先の不動産会社が保管する個人情報の取り扱いについては、不動産会社に直接お問い合わせください。

    情報提供会社

    情報提供会社

    テンポエステート (株)ビルドプロ

    国土交通大臣免許(1)第11014号

    交通:
    JR総武本線/津田沼駅
    千葉県船橋市前原西2丁目32-8 
    TEL:
    03-6899-7119
    所属団体:
    (一社)千葉県宅地建物取引業協会会員
    (公社)首都圏不動産公正取引協議会加盟

    取引態様:仲介

    • 会社情報
    • 00277347
    スマートフォンで
    この不動産会社を見る
    QRコード
    • お問い合わせ
    • 提携サイト等より掲載されている物件情報につきましては、不動産会社詳細情報にリンクされていないものがあります。
    • 物件に関するお問合せは、物件詳細ページの「情報提供会社」に表示されている不動産会社へ直接お願いいたします。
    • 間取図は、現況を優先させていただきます。
    • 映像は物件の一部を撮影したものです。物件の契約にあたっての最終判断はご自身の判断に基づいて行ってください。
    • 仲介手数料について仲介手数料

    アットホームは物件情報の適正化に努めております。 内容に誤りがある場合にはこちらへご連絡ください。


    物件画像: