賃貸や不動産はアットホーム-賃貸マンション・賃貸物件・不動産なら アットホーム

東京都豊島区駒込3丁目(駒込駅)の貸店舗:物件詳細

  • 物件詳細
  • 情報の見方
  • 印刷用画面
交通
所在地
駅徒歩 賃料
管理費等
敷金/保証金
礼金
使用部分面積
坪数/坪単価
物件種目
築年月

JR山手線/駒込

東京都豊島区駒込3丁目

5分

38.5万円

なし

3ヶ月 / なし

1ヶ月

90.13m²

27.26坪/1.4122万円

貸店舗・事務所

1980年12月(築45年5ヶ月)

おすすめコメント

◆弊社に工事のご依頼をいただければ割引あり!◆駒込駅至近の好立地です♪内装リフォーム済みです◎◇諸条件ご相談ください◇ご希望に合わせて物件のご提案が可能です◇お気軽にお問い合わせくださいませ♪

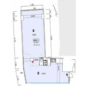
間取図

間取図

外観

外観

<
その他の画像
  • 室内
  • 室内
  • 室内
  • 室内
  • 室内
  • 室内
  • 室内
  • 室内
  • トイレ
  • 販売店
  • コンビニ
  • コンビニ
  • その他
  • 郵便局
>
    • お問い合わせ
    交通

    JR山手線 駒込駅 徒歩5分

    その他の交通

    JR山手線 巣鴨駅 徒歩13分

    東京メトロ南北線 西ケ原駅 徒歩14分

    所在地 東京都豊島区駒込3丁目
    物件種目 貸店舗・事務所
    賃料 38.5万円 管理費等 なし
    敷金 / 保証金 3ヶ月 / なし 礼金 1ヶ月
    敷引 坪単価 1.4122万円
    保証金償却 解約時1ヶ月 権利金
    造作譲渡 その他一時金 なし
    維持費等 保険等
    使用部分面積 90.13m² 坪数 27.26坪
    築年月 1980年12月(築45年5ヶ月) 階建 / 階 地上12階地下1階建 / 2階
    駐車場 バイク置き場
    駐輪場 土地面積
    接道状況 用途地域
    間取り ワンルーム 建物構造 SRC
    アピールポイント 【物件選び★入居工事★原状回復工事までワンストップで対応可能!】
    テンポエステートは、テナント(店舗・事務所)専門仲介サービスとして、今まで1000件以上のテナント(店舗・事務所)不動産賃貸仲介に携わってきました。

    開業するにあたり、
    何から始めればいいんだろう。
    物件はどう決めたらいんだろう。
    内装ってどうやって頼んだらいいの?
    どんなものを準備すればいいの?
    そんなお悩みに丁寧にご対応させていただきます!

    テナント(店舗・事務所)物件をお探しの方は、テナント(店舗・事務所)専門仲介サービスのテンポエステートに、お気軽にお問い合わせください!

    【オーナー様へ】
    弊社では、SNSやLINEなどのツールを駆使してお客様とのコミュニティを広げており、オーナー様の物件状況によってピッタリのお客様をご紹介する体制が整っております。

    ・入居者探しをご検討している
    ・なかなか入居者が決まらない
    というオーナー様、

    是非、テナント(店舗・事務所)専門仲介サービスのテンポエステートにお問い合わせください!
    建物名・部屋番号  
    リフォーム履歴
    リノベーション履歴
    特記事項 土曜日利用可、土日・祝日利用可、飲食店可
    備考
    賃貸保証等:加入要(詳細はお問い合わせください)
    管理形態/管理員の勤務形態:-/-
    物件にエレベーターはあるが2階には通じていない
    短期解約違約金:2年未満解約の場合、違約金1ヶ月分あり
    エネルギー消費性能
    断熱性能
    目安光熱費
    バス・トイレ
    キッチン
    設備・サービス
    その他 エレベーター
    契約期間 3年 条件等 定期借家定期借家
    引渡可能時期 相談 現況
    仲介手数料 1.1ヶ月    
    更新料 物件番号 1131412515
    情報公開日 2026年3月26日 次回更新予定日 2026年4月22日
    ケータイ用バーコード

    QRコード

    スマートフォンでこの物件を見る
    スマートフォンからもこの物件をご覧になれます。
    ※「-」と表示されている項目については、情報提供会社にご確認ください。

    この物件の周辺情報

    周辺施設 マルエツ プチ 駒込店
    距離 448m
    周辺施設 ファミリーマート 駒込霜降橋店
    距離 220m
    周辺施設 セブン-イレブン 北区駒込駅東口店
    距離 555m
    周辺施設 駒込駅
    距離 532m
    周辺施設 中里郵便局
    距離 515m

    クイックお問い合わせ

    ここから簡単にお問い合わせをすることができます。
    (SSLでの暗号化での送信を希望されるお客さまは こちら よりお問い合わせください)

    お問い合わせ内容(必須)
    物件のお問い合わせ理由(必須)
    お名前・ご担当者様名(必須) 姓  名 
    メールアドレス(必須)
    ※携帯電話のメールアドレスをご入力される方はこちらをご確認ください
    電話番号(必須)
    - -
    備考欄 希望条件、物件案内希望日、質問などがございましたらご記入ください。
    お問い合わせを行う前に「個人情報の取り扱いについて」を必ずお読みください。
    「個人情報の取り扱いについて」に同意いただいた場合は「上記にご同意の上 確認画面へ進む」のボタンをクリックしてください。

    個人情報の取り扱いについて

    皆さまが送付された個人情報はアットホーム(株)のサーバを経由し、お問い合わせ先の不動産会社にメールまたはFAXにて転送されるためアットホーム(株)にも保管されます。アットホーム(株)で保管された個人情報の取り扱いについては、【こちら】をご覧ください。
    また、本画面でご記入いただいた個人情報は、お問い合わせ先の不動産会社でも保管します。 お問い合わせ先の不動産会社が保管する個人情報の取り扱いについては、不動産会社に直接お問い合わせください。

    情報提供会社

    情報提供会社

    テンポエステート (株)ビルドプロ

    国土交通大臣免許(1)第11014号

    交通:
    JR総武本線/津田沼駅
    千葉県船橋市前原西2丁目32-8 
    TEL:
    03-6899-7119
    所属団体:
    (一社)千葉県宅地建物取引業協会会員
    (公社)首都圏不動産公正取引協議会加盟

    取引態様:仲介

    • 会社情報
    • 00277347
    スマートフォンで
    この不動産会社を見る
    QRコード
    • お問い合わせ
    • 提携サイト等より掲載されている物件情報につきましては、不動産会社詳細情報にリンクされていないものがあります。
    • 物件に関するお問合せは、物件詳細ページの「情報提供会社」に表示されている不動産会社へ直接お願いいたします。
    • 間取図は、現況を優先させていただきます。
    • 映像は物件の一部を撮影したものです。物件の契約にあたっての最終判断はご自身の判断に基づいて行ってください。
    • 仲介手数料について仲介手数料

    アットホームは物件情報の適正化に努めております。 内容に誤りがある場合にはこちらへご連絡ください。


    物件画像: