賃貸や不動産はアットホーム-賃貸マンション・賃貸物件・不動産なら アットホーム

東京都港区西新橋3丁目(御成門駅)の貸店舗:物件詳細

  • 物件詳細
  • 情報の見方
  • 印刷用画面
交通
所在地
駅徒歩 賃料
管理費等
敷金/保証金
礼金
使用部分面積
坪数/坪単価
物件種目
築年月

都営三田線/御成門

東京都港区西新橋3丁目

1分

22万円

なし

なし / 6ヶ月

なし

97.85m²

29.59坪/0.7433万円

貸店舗・事務所

1967年1月(築59年2ヶ月)

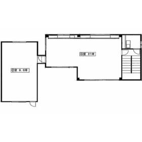
間取図

間取図

外観

外観

  • お問い合わせ
交通

都営三田線 御成門駅 徒歩1分

その他の交通

JR山手線 新橋駅 徒歩8分

都営大江戸線 大門駅 徒歩8分

所在地 東京都港区西新橋3丁目
物件種目 貸店舗・事務所
賃料 22万円 管理費等 なし
敷金 / 保証金 なし / 6ヶ月 礼金 なし
敷引 坪単価 0.7433万円
保証金償却 解約時2ヶ月 権利金
造作譲渡 その他一時金 なし
維持費等 保険等
使用部分面積 97.85m² 坪数 29.59坪
築年月 1967年1月(築59年2ヶ月) 階建 / 階 地上4階地下1階建 / 4階
駐車場 バイク置き場
駐輪場 土地面積
接道状況 用途地域
間取り 建物構造 RC
建物名・部屋番号  
リフォーム履歴
リノベーション履歴
特記事項 1フロア1テナント、最上階、IT重説対応物件
備考
管理形態/管理員の勤務形態:-/-
IT重説対応物件
御成門駅徒歩1分のロケーションで、ビジネス街の中心地に所在する物件です。
スキップフロアが使い勝手が良く、オススメです。
エレベーターはありませんが、この面積帯では嬉しい男女別トイレの物件です。
前テナントさん入居中につき、内見は日程調整を要します。詳細はお問い合わせ下さい!
・個別空調・男女別トイレ・光ファイバー・24時間利用可・最上階
エネルギー消費性能
断熱性能
目安光熱費
バス・トイレ 男女別トイレ、トイレ
キッチン
設備・サービス 個別空調、給湯、エアコン
その他
契約期間 3年 条件等 定期借家定期借家
引渡可能時期 2026年4月上旬予定 現況 使用中
更新料 物件番号 1130404715
情報公開日 2025年12月11日 次回更新予定日 2026年2月25日
ケータイ用バーコード

QRコード

スマートフォンでこの物件を見る
スマートフォンからもこの物件をご覧になれます。
※「-」と表示されている項目については、情報提供会社にご確認ください。

クイックお問い合わせ

ここから簡単にお問い合わせをすることができます。
(SSLでの暗号化での送信を希望されるお客さまは こちら よりお問い合わせください)

お問い合わせ内容(必須)
物件のお問い合わせ理由(必須)
お名前・ご担当者様名(必須) 姓  名 
メールアドレス(必須)
※携帯電話のメールアドレスをご入力される方はこちらをご確認ください
電話番号(必須)
- -
備考欄 希望条件、物件案内希望日、質問などがございましたらご記入ください。
お問い合わせを行う前に「個人情報の取り扱いについて」を必ずお読みください。
「個人情報の取り扱いについて」に同意いただいた場合は「上記にご同意の上 確認画面へ進む」のボタンをクリックしてください。

個人情報の取り扱いについて

皆さまが送付された個人情報はアットホーム(株)のサーバを経由し、お問い合わせ先の不動産会社にメールまたはFAXにて転送されるためアットホーム(株)にも保管されます。アットホーム(株)で保管された個人情報の取り扱いについては、【こちら】をご覧ください。
また、本画面でご記入いただいた個人情報は、お問い合わせ先の不動産会社でも保管します。 お問い合わせ先の不動産会社が保管する個人情報の取り扱いについては、不動産会社に直接お問い合わせください。

情報提供会社

情報提供会社

トップクォーター(株)

東京都知事免許(7)第70546号

交通:
JR山手線/東京駅 徒歩9分
東京都中央区日本橋兜町3-3 兜町平和ビル6F
TEL:
03-3669-9000
FAX:
03-3669-9001
所属団体:
(公社)全日本不動産協会会員
(公社)首都圏不動産公正取引協議会加盟

取引態様:仲介

  • 会社情報
  • 00065869
スマートフォンで
この不動産会社を見る
QRコード
  • お問い合わせ
  • 提携サイト等より掲載されている物件情報につきましては、不動産会社詳細情報にリンクされていないものがあります。
  • 物件に関するお問合せは、物件詳細ページの「情報提供会社」に表示されている不動産会社へ直接お願いいたします。
  • 間取図は、現況を優先させていただきます。
  • 映像は物件の一部を撮影したものです。物件の契約にあたっての最終判断はご自身の判断に基づいて行ってください。
  • 仲介手数料について仲介手数料

アットホームは物件情報の適正化に努めております。 内容に誤りがある場合にはこちらへご連絡ください。


物件画像: