賃貸や不動産はアットホーム-賃貸マンション・賃貸物件・不動産なら アットホーム

大阪府大阪市西区立売堀1丁目(本町駅)の貸店舗:物件詳細

  • 物件詳細
  • 情報の見方
  • 印刷用画面
交通
所在地
駅徒歩 賃料
管理費等
敷金/保証金
礼金
使用部分面積
坪数/坪単価
物件種目
築年月

地下鉄御堂筋線/本町

大阪府大阪市西区立売堀1丁目

4分

44.88万円

142,120円

40.8万円 / なし

89.76万円

112.39m²

33.99坪/1.3201万円

貸店舗・事務所

1989年5月(築36年8ヶ月)

おすすめコメント

前回、美容系利用店舗 業種などはご相談ください。

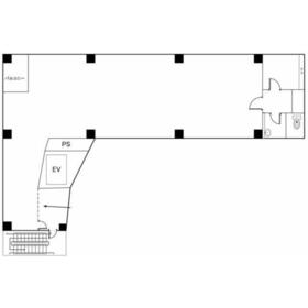
間取図

間取図

木津ビル 間取り

外観

外観

木津ビル 外観

<
その他の画像
  • エントランス
  • 共有部分
  • 共有部分
  • その他
  • コンビニ
  • 販売店
  • 小学校
  • 公園
  • 小学校
  • 小学校
  • 幼稚園、保育園
  • 幼稚園、保育園
>
    • お問い合わせ
    交通

    地下鉄御堂筋線 本町駅 徒歩4分

    その他の交通

    地下鉄四つ橋線 四ツ橋駅 徒歩7分

    地下鉄長堀鶴見緑地線 西大橋駅 徒歩12分

    所在地 大阪府大阪市西区立売堀1丁目
    物件種目 貸店舗・事務所
    賃料 44.88万円 管理費等 142,120円
    敷金 / 保証金 40.8万円 / なし 礼金 89.76万円
    敷引 坪単価 1.3201万円
    保証金償却 権利金
    造作譲渡 その他一時金 なし
    維持費等 保険等
    使用部分面積 112.39m² 坪数 33.99坪
    築年月 1989年5月(築36年8ヶ月) 階建 / 階 10階建 / 2階
    駐車場 近有 27,500円/月 バイク置き場 近有
    駐輪場 近有 土地面積
    接道状況 用途地域
    間取り 建物構造 SRC
    アピールポイント 駐車場までの距離は300mです。防犯カメラが付いているので、犯罪の抑止や不法投棄などによる入居者同士のトラブルも防止できます。3駅以上利用可なので、利便性を求める方もご満足頂ける条件です。是非ご覧ください10階建ての高層建築。自分に合わせたお店作りを望める美容室向けの賃貸店舗です。何でもそろっているのでIT向けとなっているんですよ。物販向けなので、お気軽にお問い合わせください。
    建物名・部屋番号 木津ビル
    リフォーム履歴
    リノベーション履歴
    特記事項 1フロア1テナント、角部屋
    備考
    賃貸保証等:加入要(都度、お問い合わせください。)
    管理形態/管理員の勤務形態:-/-
    当物件ご案内の際、現地でのお待ち合わせ等も可能です。
    お問い合わせ頂いた物件は勿論のこと、インターネットに掲載していないオススメ物件多数ございます。お気軽にお申し付け下さいませ。
    アフログループは大阪市内を中心に9店舗を展開している地域密着の不動産会社です。
    弊社ならではの、インターネットに掲載していないおすすめの物件も多数ございます。
    大阪府内全域のお部屋探しは、当店にお任せください。
    不動産経験の豊富な社員が、責任を持って対応させていただきます。
    また、賃貸・売買双方を専門に取り扱っており、幅広い視野でお客様にご提案させて頂きます。
    それぞれのメリット・デメリットをご説明させて頂き最良のご提案をさせて頂きます。
    お客さまの想像される1歩先を行き、常に感動を与え続けていけるようなサービスに取り組んでおります。
    そして、弊社の経営理念でもあります、『アフターフォロー』には特に力を入れております、ご契約後もしっかりとサポートさせて頂きます。
    大阪市で賃貸 / 売買などの不動産に関するご相談はぜひ当店までお問い合わせください。
    皆様のご来店を心よりお待ちして
    エネルギー消費性能
    断熱性能
    目安光熱費
    バス・トイレ トイレ
    キッチン
    設備・サービス 防犯カメラ、給湯、インターネット対応
    その他 エレベーター
    契約期間 2年 条件等
    引渡可能時期 即時 現況
    更新料 物件番号 1130377115
    情報公開日 2025年12月9日 次回更新予定日 2025年12月23日
    ケータイ用バーコード

    QRコード

    スマートフォンでこの物件を見る
    スマートフォンからもこの物件をご覧になれます。
    ※「-」と表示されている項目については、情報提供会社にご確認ください。

    この物件の周辺情報

    周辺施設 セブンイレブン 四ツ橋立売堀店
    距離 150m
    周辺施設 BIG BEANS West 本店
    距離 700m
    周辺施設 明治小学校
    距離 500m
    周辺施設 新町北公園
    距離 500m
    周辺施設 堀江小学校
    距離 1100m
    周辺施設 西船場小学校
    距離 1200m
    周辺施設 りんりん保育園
    距離 1000m
    周辺施設 御堂筋本町ちどり保育園
    距離 700m

    クイックお問い合わせ

    ここから簡単にお問い合わせをすることができます。
    (SSLでの暗号化での送信を希望されるお客さまは こちら よりお問い合わせください)

    お問い合わせ内容(必須)
    物件のお問い合わせ理由(必須)
    お名前・ご担当者様名(必須) 姓  名 
    メールアドレス(必須)
    ※携帯電話のメールアドレスをご入力される方はこちらをご確認ください
    電話番号(必須)
    - -
    備考欄 希望条件、物件案内希望日、質問などがございましたらご記入ください。
    お問い合わせを行う前に「個人情報の取り扱いについて」を必ずお読みください。
    「個人情報の取り扱いについて」に同意いただいた場合は「上記にご同意の上 確認画面へ進む」のボタンをクリックしてください。

    個人情報の取り扱いについて

    皆さまが送付された個人情報はアットホーム(株)のサーバを経由し、お問い合わせ先の不動産会社にメールまたはFAXにて転送されるためアットホーム(株)にも保管されます。アットホーム(株)で保管された個人情報の取り扱いについては、【こちら】をご覧ください。
    また、本画面でご記入いただいた個人情報は、お問い合わせ先の不動産会社でも保管します。 お問い合わせ先の不動産会社が保管する個人情報の取り扱いについては、不動産会社に直接お問い合わせください。

    情報提供会社

    情報提供会社

    (株)アフロ AFLO西大橋堀江店

    大阪府知事免許(3)第58557号

    交通:
    地下鉄長堀鶴見緑地線/西大橋駅 徒歩1分
    大阪府大阪市西区北堀江2丁目1-15 気海ビル
    TEL:
    06-6536-5556
    FAX:
    06-6536-5557
    所属団体:
    (公社)全日本不動産協会会員
    (公社)近畿地区不動産公正取引協議会加盟

    取引態様:仲介

    • 会社情報
    • 50107915
    スマートフォンで
    この不動産会社を見る
    QRコード
    • お問い合わせ
    • 提携サイト等より掲載されている物件情報につきましては、不動産会社詳細情報にリンクされていないものがあります。
    • 物件に関するお問合せは、物件詳細ページの「情報提供会社」に表示されている不動産会社へ直接お願いいたします。
    • 間取図は、現況を優先させていただきます。
    • 映像は物件の一部を撮影したものです。物件の契約にあたっての最終判断はご自身の判断に基づいて行ってください。
    • 仲介手数料について仲介手数料

    アットホームは物件情報の適正化に努めております。 内容に誤りがある場合にはこちらへご連絡ください。


    物件画像: