賃貸や不動産はアットホーム-賃貸マンション・賃貸物件・不動産なら アットホーム

大阪府大阪市中央区北浜3丁目(淀屋橋駅)の貸店舗:物件詳細

  • 物件詳細
  • 情報の見方
  • 印刷用画面
交通
所在地
駅徒歩 賃料
管理費等
敷金/保証金
礼金
使用部分面積
坪数/坪単価
物件種目
築年月

地下鉄御堂筋線/淀屋橋

大阪府大阪市中央区北浜3丁目

2分

38.5万円

なし

210万円 / なし

115.5万円

35.64m²

10.78坪/3.5711万円

貸店舗・事務所

1982年2月(築43年11ヶ月)

おすすめコメント

淀屋橋の駅前ビル 1階路面店舗(約10.78坪)※飲食不可

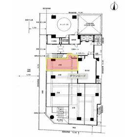
間取図

間取図

外観

外観

その他の画像
  • エントランス
  • 室内
    • お問い合わせ
    交通

    地下鉄御堂筋線 淀屋橋駅 徒歩2分

    所在地 大阪府大阪市中央区北浜3丁目
    物件種目 貸店舗・事務所
    賃料 38.5万円 管理費等 なし
    敷金 / 保証金 210万円 / なし 礼金 115.5万円
    敷引 坪単価 3.5711万円
    保証金償却 権利金
    造作譲渡 その他一時金 なし
    維持費等 保険等
    使用部分面積 35.64m² 坪数 10.78坪
    築年月 1982年2月(築43年11ヶ月) 階建 / 階 地上11階地下1階建 / 1階
    駐車場 バイク置き場
    駐輪場 土地面積
    接道状況 用途地域 商業地域
    間取り ワンルーム 建物構造 SRC
    アピールポイント 淀屋橋の駅前にある商業ビルの1階路面店舗です。

    元:調剤薬局
    現状有姿、現状渡し

    広さは、約10坪

    オススメ業種は、
    各種営業所、代理店など
    物販店
    ※飲食店はNG

    お問い合わせ、お待ちしております!
    建物名・部屋番号 101
    リフォーム履歴
    リノベーション履歴
    特記事項 居抜き、角部屋、IT重説対応物件
    備考
    賃貸保証等:加入要(初回保証料:総賃料の100% 更新あり)
    管理形態/管理員の勤務形態:-/-
    IT重説対応物件
    物件提案、現地待ち合わせ案内、オンライン内覧、オンライン打ち合わせ可能です!お気軽にお問い合わせください!
    物件提案、現地待ち合わせ案内、オンライン内覧、オンライン打ち合わせ可能です!お気軽にお問い合わせください!
    エネルギー消費性能
    断熱性能
    目安光熱費
    バス・トイレ
    キッチン
    設備・サービス
    その他 エレベーター
    契約期間 2年 条件等
    引渡可能時期 即時 現況
    更新料 物件番号 1130370315
    情報公開日 2025年12月9日 次回更新予定日 2025年12月23日
    ケータイ用バーコード

    QRコード

    スマートフォンでこの物件を見る
    スマートフォンからもこの物件をご覧になれます。
    ※「-」と表示されている項目については、情報提供会社にご確認ください。

    クイックお問い合わせ

    ここから簡単にお問い合わせをすることができます。
    (SSLでの暗号化での送信を希望されるお客さまは こちら よりお問い合わせください)

    お問い合わせ内容(必須)
    物件のお問い合わせ理由(必須)
    お名前・ご担当者様名(必須) 姓  名 
    メールアドレス(必須)
    ※携帯電話のメールアドレスをご入力される方はこちらをご確認ください
    電話番号(必須)
    - -
    備考欄 希望条件、物件案内希望日、質問などがございましたらご記入ください。
    お問い合わせを行う前に「個人情報の取り扱いについて」を必ずお読みください。
    「個人情報の取り扱いについて」に同意いただいた場合は「上記にご同意の上 確認画面へ進む」のボタンをクリックしてください。

    個人情報の取り扱いについて

    皆さまが送付された個人情報はアットホーム(株)のサーバを経由し、お問い合わせ先の不動産会社にメールまたはFAXにて転送されるためアットホーム(株)にも保管されます。アットホーム(株)で保管された個人情報の取り扱いについては、【こちら】をご覧ください。
    また、本画面でご記入いただいた個人情報は、お問い合わせ先の不動産会社でも保管します。 お問い合わせ先の不動産会社が保管する個人情報の取り扱いについては、不動産会社に直接お問い合わせください。

    情報提供会社

    情報提供会社

    (株)MEEM 本社

    国土交通大臣免許(1)第10916号

    交通:
    地下鉄東西線/烏丸御池駅 徒歩5分
    京都府京都市中京区二条通烏丸東入仁王門町3 千坂御所南ビル3階
    TEL:
    075-600-0170
    FAX:
    075-329-1709
    所属団体:
    (公社)全日本不動産協会会員
    (公社)近畿地区不動産公正取引協議会加盟

    取引態様:仲介

    • 会社情報
    • 50110929
    スマートフォンで
    この不動産会社を見る
    QRコード
    • お問い合わせ
    • 提携サイト等より掲載されている物件情報につきましては、不動産会社詳細情報にリンクされていないものがあります。
    • 物件に関するお問合せは、物件詳細ページの「情報提供会社」に表示されている不動産会社へ直接お願いいたします。
    • 間取図は、現況を優先させていただきます。
    • 映像は物件の一部を撮影したものです。物件の契約にあたっての最終判断はご自身の判断に基づいて行ってください。
    • 仲介手数料について仲介手数料

    アットホームは物件情報の適正化に努めております。 内容に誤りがある場合にはこちらへご連絡ください。


    物件画像: