賃貸や不動産はアットホーム-賃貸マンション・賃貸物件・不動産なら アットホーム

福岡県福岡市西区周船寺2丁目(周船寺駅)の貸店舗:物件詳細

  • 物件詳細
  • 情報の見方
  • 印刷用画面
交通
所在地
駅徒歩 賃料
管理費等
敷金/保証金
礼金
使用部分面積
坪数/坪単価
物件種目
築年月

JR筑肥線/周船寺

福岡県福岡市西区周船寺2丁目

8分

8.8万円

6,600円

2ヶ月 / なし

2ヶ月

52.66m²

15.92坪/0.5525万円

貸店舗

1995年4月(築30年9ヶ月)

おすすめコメント  スタッフ: 児島 和美

福岡県内で店舗・事務所・倉庫などをお探し中の方は一度ご相談ください。HPにも多数の物件が御座います。内覧は、現地待ち合わせ可能です。

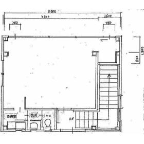
間取図

間取図

外観

外観

<
その他の画像
>
    • お問い合わせ
    交通

    JR筑肥線 周船寺駅 徒歩8分

    その他の交通

    JR筑肥線 九大学研都市駅 徒歩19分

    JR筑肥線 波多江駅 徒歩32分

    所在地 福岡県福岡市西区周船寺2丁目
    物件種目 貸店舗
    賃料 8.8万円 管理費等 6,600円
    敷金 / 保証金 2ヶ月 / なし 礼金 2ヶ月
    敷引 坪単価 0.5525万円
    保証金償却 権利金
    造作譲渡 その他一時金 e-Net少額短期:21,120円
    維持費等 引落手数料:330円/月 保険等
    使用部分面積 52.66m² 坪数 15.92坪
    築年月 1995年4月(築30年9ヶ月) 階建 / 階 2階建 / 2階
    駐車場 有 6,600円/月(空き1台) バイク置き場
    駐輪場 土地面積
    接道状況 用途地域
    間取り ワンルーム 建物構造 鉄骨造
    アピールポイント 飲食店不可 角部屋 最上階 1フロア1テナント 土曜日利用可 土日・祝日利用可
    建物名・部屋番号 西南ビル
    リフォーム履歴
    リノベーション履歴
    特記事項 角部屋、最上階
    備考
    管理形態/管理員の勤務形態:-/-
    エネルギー消費性能
    断熱性能
    目安光熱費
    バス・トイレ トイレ
    キッチン
    設備・サービス エアコン
    その他
    契約期間 2年 条件等
    引渡可能時期 相談 現況 居住中
    更新料 物件番号 1130297015
    情報公開日 2025年12月3日 次回更新予定日 2025年12月17日
    ケータイ用バーコード

    QRコード

    スマートフォンでこの物件を見る
    スマートフォンからもこの物件をご覧になれます。
    ※「-」と表示されている項目については、情報提供会社にご確認ください。

    クイックお問い合わせ

    ここから簡単にお問い合わせをすることができます。
    (SSLでの暗号化での送信を希望されるお客さまは こちら よりお問い合わせください)

    お問い合わせ内容(必須)
    物件のお問い合わせ理由(必須)
    お名前・ご担当者様名(必須) 姓  名 
    メールアドレス(必須)
    ※携帯電話のメールアドレスをご入力される方はこちらをご確認ください
    電話番号(必須)
    - -
    備考欄 希望条件、物件案内希望日、質問などがございましたらご記入ください。
    お問い合わせを行う前に「個人情報の取り扱いについて」を必ずお読みください。
    「個人情報の取り扱いについて」に同意いただいた場合は「上記にご同意の上 確認画面へ進む」のボタンをクリックしてください。

    個人情報の取り扱いについて

    皆さまが送付された個人情報はアットホーム(株)のサーバを経由し、お問い合わせ先の不動産会社にメールまたはFAXにて転送されるためアットホーム(株)にも保管されます。アットホーム(株)で保管された個人情報の取り扱いについては、【こちら】をご覧ください。
    また、本画面でご記入いただいた個人情報は、お問い合わせ先の不動産会社でも保管します。 お問い合わせ先の不動産会社が保管する個人情報の取り扱いについては、不動産会社に直接お問い合わせください。

    情報提供会社

    情報提供会社

    (株)HETE総合不動産

    福岡県知事免許(1)第19757号

    交通:
    地下鉄空港線/赤坂駅
    福岡県福岡市中央区大名1丁目3-32 ラコルテ大名201
    TEL:
    092-739-7123
    所属団体:
    (公社)福岡県宅地建物取引業協会会員
    (一社)九州不動産公正取引協議会加盟

    取引態様:仲介

    • 会社情報
    • 80505927
    スマートフォンで
    この不動産会社を見る
    QRコード
    • お問い合わせ
    • 提携サイト等より掲載されている物件情報につきましては、不動産会社詳細情報にリンクされていないものがあります。
    • 物件に関するお問合せは、物件詳細ページの「情報提供会社」に表示されている不動産会社へ直接お願いいたします。
    • 間取図は、現況を優先させていただきます。
    • 映像は物件の一部を撮影したものです。物件の契約にあたっての最終判断はご自身の判断に基づいて行ってください。
    • 仲介手数料について仲介手数料

    アットホームは物件情報の適正化に努めております。 内容に誤りがある場合にはこちらへご連絡ください。


    物件画像: