賃貸や不動産はアットホーム-賃貸マンション・賃貸物件・不動産なら アットホーム

大阪府池田市石橋2丁目(石橋阪大前駅)の貸店舗:物件詳細

  • 物件詳細
  • 情報の見方
  • 印刷用画面
交通
所在地
駅徒歩 賃料
管理費等
敷金/保証金
礼金
使用部分面積
坪数/坪単価
物件種目
築年月

阪急宝塚線/石橋阪大前

大阪府池田市石橋2丁目

1分

29.7万円

なし

なし / なし

100万円

94.53m²

28.59坪/1.0387万円

貸店舗・事務所

1950年1月(築76年4ヶ月)

おすすめコメント  スタッフ: 中島 翔大

電車のホームから見える好立地! 人通りの多い人気エリアです! 業種等お気軽にご相談下さい。

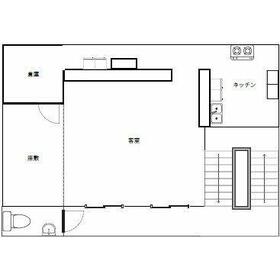
間取図

間取図

外観

外観

<
その他の画像
  • コンビニ
  • 病院
  • 郵便局
  • 幼稚園、保育園
  • コンビニ
>
    • お問い合わせ
    交通

    阪急宝塚線 石橋阪大前駅 徒歩1分

    その他の交通

    大阪モノレール本線 柴原阪大前駅 徒歩23分

    阪急宝塚線 蛍池駅 徒歩22分
    [バス利用可] バス 5分 阪急石橋北口 停歩5分

    所在地 大阪府池田市石橋2丁目
    物件種目 貸店舗・事務所
    賃料 29.7万円 管理費等 なし
    敷金 / 保証金 なし / なし 礼金 100万円
    敷引 坪単価 1.0387万円
    保証金償却 権利金
    造作譲渡 その他一時金 なし
    維持費等 保険等
    使用部分面積 94.53m² 坪数 28.59坪
    築年月 1950年1月(築76年4ヶ月) 階建 / 階 3階建 / 2階
    駐車場 バイク置き場
    駐輪場 土地面積
    接道状況 用途地域
    間取り 建物構造 鉄骨造
    アピールポイント 以前は韓国料理でした!
    重飲食相談可能!
    冷蔵庫・製氷機・シンクございます!
    建物名・部屋番号  
    リフォーム履歴
    リノベーション履歴
    特記事項 居抜き、土曜日利用可、土日・祝日利用可、飲食店可、角部屋、IT重説対応物件
    備考
    賃貸保証等:加入要(初回保証料:毎月支払総額の100%)
    管理形態/管理員の勤務形態:-/-
    IT重説対応物件
    エネルギー消費性能
    断熱性能
    目安光熱費
    バス・トイレ トイレ
    キッチン
    設備・サービス 空調機あり、排水設備あり
    個別空調、エアコン2台以上、都市ガス、エアコン、インターネット対応
    その他
    契約期間 2年 条件等
    引渡可能時期 即時 現況
    更新料 物件番号 1130210815
    情報公開日 2026年3月6日 次回更新予定日 2026年4月20日
    ケータイ用バーコード

    QRコード

    スマートフォンでこの物件を見る
    スマートフォンからもこの物件をご覧になれます。
    ※「-」と表示されている項目については、情報提供会社にご確認ください。

    この物件の周辺情報

    周辺施設 セブンイレブン 阪急石橋駅前店
    距離 323m
    周辺施設 村田医院
    距離 274m
    周辺施設 池田石橋郵便局
    距離 257m
    周辺施設 石橋文化幼稚園
    距離 407m
    周辺施設 セブンイレブン 池田石橋1丁目店
    距離 302m

    クイックお問い合わせ

    ここから簡単にお問い合わせをすることができます。
    (SSLでの暗号化での送信を希望されるお客さまは こちら よりお問い合わせください)

    お問い合わせ内容(必須)
    物件のお問い合わせ理由(必須)
    お名前・ご担当者様名(必須) 姓  名 
    メールアドレス(必須)
    ※携帯電話のメールアドレスをご入力される方はこちらをご確認ください
    電話番号(必須)
    - -
    備考欄 希望条件、物件案内希望日、質問などがございましたらご記入ください。
    お問い合わせを行う前に「個人情報の取り扱いについて」を必ずお読みください。
    「個人情報の取り扱いについて」に同意いただいた場合は「上記にご同意の上 確認画面へ進む」のボタンをクリックしてください。

    個人情報の取り扱いについて

    皆さまが送付された個人情報はアットホーム(株)のサーバを経由し、お問い合わせ先の不動産会社にメールまたはFAXにて転送されるためアットホーム(株)にも保管されます。アットホーム(株)で保管された個人情報の取り扱いについては、【こちら】をご覧ください。
    また、本画面でご記入いただいた個人情報は、お問い合わせ先の不動産会社でも保管します。 お問い合わせ先の不動産会社が保管する個人情報の取り扱いについては、不動産会社に直接お問い合わせください。

    情報提供会社

    情報提供会社

    富士ホームサービス(株) 箕面支店

    国土交通大臣免許(8)第4288号

    交通:
    北大阪急行/箕面萱野駅 徒歩2分
    大阪府箕面市西宿1丁目1-12 
    TEL:
    072-726-2246
    FAX:
    072-726-2247
    所属団体:
    (一社)大阪府宅地建物取引業協会会員
    (公社)近畿地区不動産公正取引協議会加盟

    取引態様:仲介

    • 会社情報
    • 50103446
    スマートフォンで
    この不動産会社を見る
    QRコード
    • お問い合わせ
    • 提携サイト等より掲載されている物件情報につきましては、不動産会社詳細情報にリンクされていないものがあります。
    • 物件に関するお問合せは、物件詳細ページの「情報提供会社」に表示されている不動産会社へ直接お願いいたします。
    • 間取図は、現況を優先させていただきます。
    • 映像は物件の一部を撮影したものです。物件の契約にあたっての最終判断はご自身の判断に基づいて行ってください。
    • 仲介手数料について仲介手数料

    アットホームは物件情報の適正化に努めております。 内容に誤りがある場合にはこちらへご連絡ください。


    物件画像: