賃貸や不動産はアットホーム-賃貸マンション・賃貸物件・不動産なら アットホーム

岩手県盛岡市菜園1丁目(盛岡駅)の貸店舗:物件詳細

  • 物件詳細
  • 情報の見方
  • 印刷用画面
交通
所在地
駅徒歩 賃料
管理費等
敷金/保証金
礼金
使用部分面積
坪数/坪単価
物件種目
築年月

東北新幹線/盛岡

岩手県盛岡市菜園1丁目

15分

26.3483万円

なし

3ヶ月 / なし

なし

93.16m²

28.18坪/0.935万円

貸店舗・事務所

1966年12月(築59年1ヶ月)

おすすめコメント

弊社グループの管理物件を募集しています!ご質問・ご内見希望はお気軽にお問合せください♪

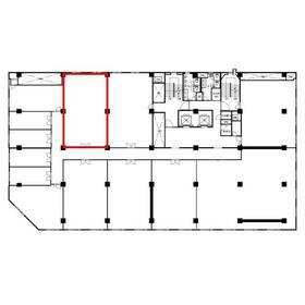
間取図

間取図

外観

外観

<
その他の画像
  • エントランス
  • エントランス
  • 共有部分
  • トイレ
  • 共有部分
  • 共有部分
  • 共有部分
  • 共有部分
  • 設備
  • 設備
  • 設備
  • 室内
>
    • お問い合わせ
    交通

    東北新幹線 盛岡駅 徒歩15分

    所在地 岩手県盛岡市菜園1丁目
    物件種目 貸店舗・事務所
    賃料 26.3483万円 管理費等 なし
    敷金 / 保証金 3ヶ月 / なし 礼金 なし
    敷引 坪単価 0.935万円
    保証金償却 権利金
    造作譲渡 その他一時金 入居時館銘板作成費:38,500円、入居時鍵交換代:16,500円
    維持費等 保険等
    使用部分面積 93.16m² 坪数 28.18坪
    築年月 1966年12月(築59年1ヶ月) 階建 / 階 地上13階地下1階建 / 3階
    駐車場 近有 19,800円/月
    近隣に借上げ平置き駐車場、敷地内もコインパーキングあり。
    バイク置き場
    駐輪場 土地面積
    接道状況 用途地域
    間取り 建物構造 RC
    建物名・部屋番号 農林会館 302
    リフォーム履歴
    リノベーション履歴
    特記事項 IT重説対応物件
    備考
    管理形態/管理員の勤務形態:-/-
    IT重説対応物件
    エネルギー消費性能
    断熱性能
    目安光熱費
    バス・トイレ
    キッチン
    設備・サービス
    その他 エレベーター2基以上、エレベーター
    契約期間 2年 条件等
    引渡可能時期 相談 現況 使用中
    仲介手数料 1.1ヶ月    
    更新料 物件番号 1112243006
    情報公開日 2025年6月13日 次回更新予定日 2025年12月30日
    ケータイ用バーコード

    QRコード

    スマートフォンでこの物件を見る
    スマートフォンからもこの物件をご覧になれます。
    ※「-」と表示されている項目については、情報提供会社にご確認ください。

    クイックお問い合わせ

    ここから簡単にお問い合わせをすることができます。
    (SSLでの暗号化での送信を希望されるお客さまは こちら よりお問い合わせください)

    お問い合わせ内容(必須)
    物件のお問い合わせ理由(必須)
    お名前・ご担当者様名(必須) 姓  名 
    メールアドレス(必須)
    ※携帯電話のメールアドレスをご入力される方はこちらをご確認ください
    電話番号(必須)
    - -
    備考欄 希望条件、物件案内希望日、質問などがございましたらご記入ください。
    お問い合わせを行う前に「個人情報の取り扱いについて」を必ずお読みください。
    「個人情報の取り扱いについて」に同意いただいた場合は「上記にご同意の上 確認画面へ進む」のボタンをクリックしてください。

    個人情報の取り扱いについて

    皆さまが送付された個人情報はアットホーム(株)のサーバを経由し、お問い合わせ先の不動産会社にメールまたはFAXにて転送されるためアットホーム(株)にも保管されます。アットホーム(株)で保管された個人情報の取り扱いについては、【こちら】をご覧ください。
    また、本画面でご記入いただいた個人情報は、お問い合わせ先の不動産会社でも保管します。 お問い合わせ先の不動産会社が保管する個人情報の取り扱いについては、不動産会社に直接お問い合わせください。

    情報提供会社

    情報提供会社

    (株)リオ・ソリューション 仙台支社

    国土交通大臣免許(2)第8884号

    交通:
    仙台市南北線/北四番丁駅 徒歩1分
    宮城県仙台市青葉区二日町13-18 ステーションプラザビル3F
    TEL:
    022-722-9831
    FAX:
    022-722-9802
    所属団体:
    (公社)全日本不動産協会会員
    東北地区不動産公正取引協議会加盟

    取引態様:仲介

    • 会社情報
    • 20005257
    スマートフォンで
    この不動産会社を見る
    QRコード
    • お問い合わせ
    • 提携サイト等より掲載されている物件情報につきましては、不動産会社詳細情報にリンクされていないものがあります。
    • 物件に関するお問合せは、物件詳細ページの「情報提供会社」に表示されている不動産会社へ直接お願いいたします。
    • 間取図は、現況を優先させていただきます。
    • 映像は物件の一部を撮影したものです。物件の契約にあたっての最終判断はご自身の判断に基づいて行ってください。
    • 仲介手数料について仲介手数料

    アットホームは物件情報の適正化に努めております。 内容に誤りがある場合にはこちらへご連絡ください。


    物件画像: