賃貸や不動産はアットホーム-賃貸マンション・賃貸物件・不動産なら アットホーム

大阪府東大阪市布市町3丁目(新石切駅)の貸店舗:物件詳細

  • 物件詳細
  • 情報の見方
  • 印刷用画面
交通
所在地
駅徒歩 賃料
管理費等
敷金/保証金
礼金
使用部分面積
坪数/坪単価
物件種目
築年月

近鉄けいはんな線/新石切 新着

大阪府東大阪市布市町3丁目

27分

88万円

なし

なし / 300万円

150万円

376.70m²

113.95坪/0.7723万円

貸店舗・事務所(一括)

2019年6月(築6年7ヶ月)

おすすめコメント  スタッフ: 石田

【LIXIL不動産ショップ】外環状線沿いに立地する店舗・事務所です!築浅で内装綺麗。角地で視認性良好◎最大駐車3台可能◎電動シャッター3か所付◎荷物用エレベーター付◎業種等お気軽にお問合せください♪

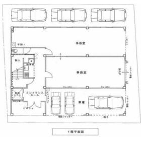
間取図

間取図

外観

外観

その他の画像
  • 間取図
    • お問い合わせ
    交通

    近鉄けいはんな線 新石切駅 徒歩27分

    所在地 大阪府東大阪市布市町3丁目
    物件種目 貸店舗・事務所(一括)
    賃料 88万円 管理費等 なし
    敷金 / 保証金 なし / 300万円 礼金 150万円
    敷引 坪単価 0.7723万円
    保証金償却 権利金
    造作譲渡 その他一時金 なし
    維持費等 保険等
    使用部分面積 376.70m² 坪数 113.95坪
    築年月 2019年6月(築6年7ヶ月) 階建 / 階 2階建 / 1階~2階部分
    駐車場 バイク置き場
    駐輪場 土地面積
    接道状況 用途地域
    間取り 建物構造 鉄骨造
    アピールポイント ■リノベスト不動産■
    □リフォーム・リノベーションのご相談も承ります!
    □店舗の内装工事もぜひご相談下さい。
    □特殊な業種様も大歓迎♪
    □土日祝営業中
    □地元密着!
    □女性スタッフ対応
    □他社では紹介できない物件もご紹介可能

    お気軽にお問い合わせください♪
    建物名・部屋番号 布市町3丁目貸店舗・事務所
    リフォーム履歴
    リノベーション履歴
    特記事項 最上階
    備考
    賃貸保証等:加入要(全保連 初回保証料:総賃料の100% 更新料:10%/年)
    管理形態/管理員の勤務形態:-/-
    【設備】
    ◎電気 ◎上下水道 ◎エアコン ◎温水洗浄便座 ◎キッチン ◎洗面 ◎トイレ3箇所 ◎ルーフバスコニー ◎オール電化 ◎太陽光発電システム ◎駐車スペース ◎電動シャッター3か所

    【費用】
    ◎保証会社利用必須/全保連
    初回保証料:総賃料の100% 更新料:10%/年
    ◎保険要加入

    【契約】
    ◎普通借家:2年
    ※現在賃貸中のため、引き渡しは2026年5月頃予定。
    エネルギー消費性能
    断熱性能
    目安光熱費
    バス・トイレ トイレ
    キッチン
    設備・サービス 太陽光発電システム、電動シャッター、給湯、エアコン
    その他
    契約期間 2年 条件等
    引渡可能時期 相談 現況 使用中
    更新料 物件番号 1100096902
    情報公開日 2025年12月14日 次回更新予定日 2025年12月28日
    ケータイ用バーコード

    QRコード

    スマートフォンでこの物件を見る
    スマートフォンからもこの物件をご覧になれます。
    ※「-」と表示されている項目については、情報提供会社にご確認ください。

    クイックお問い合わせ

    ここから簡単にお問い合わせをすることができます。
    (SSLでの暗号化での送信を希望されるお客さまは こちら よりお問い合わせください)

    お問い合わせ内容(必須)
    物件のお問い合わせ理由(必須)
    お名前・ご担当者様名(必須) 姓  名 
    メールアドレス(必須)
    ※携帯電話のメールアドレスをご入力される方はこちらをご確認ください
    電話番号(必須)
    - -
    備考欄 希望条件、物件案内希望日、質問などがございましたらご記入ください。
    お問い合わせを行う前に「個人情報の取り扱いについて」を必ずお読みください。
    「個人情報の取り扱いについて」に同意いただいた場合は「上記にご同意の上 確認画面へ進む」のボタンをクリックしてください。

    個人情報の取り扱いについて

    皆さまが送付された個人情報はアットホーム(株)のサーバを経由し、お問い合わせ先の不動産会社にメールまたはFAXにて転送されるためアットホーム(株)にも保管されます。アットホーム(株)で保管された個人情報の取り扱いについては、【こちら】をご覧ください。
    また、本画面でご記入いただいた個人情報は、お問い合わせ先の不動産会社でも保管します。 お問い合わせ先の不動産会社が保管する個人情報の取り扱いについては、不動産会社に直接お問い合わせください。

    情報提供会社

    情報提供会社

    LIXIL不動産ショップ リノベスト不動産 (株)ナワショウ

    大阪府知事免許(1)第63875号

    交通:
    近鉄大阪線/布施駅 徒歩3分
    大阪府東大阪市長堂1丁目2-3 布施駅前ナワショウビル2階
    TEL:
    06-4307-3173
    FAX:
    06-4307-3175
    所属団体:
    (公社)全日本不動産協会会員
    (一社)全国不動産協会会員
    (公社)近畿地区不動産公正取引協議会加盟

    取引態様:仲介

    • 会社情報
    • 50109859
    スマートフォンで
    この不動産会社を見る
    QRコード
    • お問い合わせ
    • 提携サイト等より掲載されている物件情報につきましては、不動産会社詳細情報にリンクされていないものがあります。
    • 物件に関するお問合せは、物件詳細ページの「情報提供会社」に表示されている不動産会社へ直接お願いいたします。
    • 間取図は、現況を優先させていただきます。
    • 映像は物件の一部を撮影したものです。物件の契約にあたっての最終判断はご自身の判断に基づいて行ってください。
    • 仲介手数料について仲介手数料

    アットホームは物件情報の適正化に努めております。 内容に誤りがある場合にはこちらへご連絡ください。


    物件画像: