賃貸や不動産はアットホーム-賃貸マンション・賃貸物件・不動産なら アットホーム

埼玉県所沢市松葉町(新所沢駅)の貸店舗:物件詳細

  • 物件詳細
  • 情報の見方
  • 印刷用画面
交通
所在地
駅徒歩 賃料
管理費等
敷金/保証金
礼金
使用部分面積
坪数/坪単価
物件種目
築年月

西武新宿線/新所沢

埼玉県所沢市松葉町

3分

23.1万円

11,000円

3ヶ月 / なし

なし

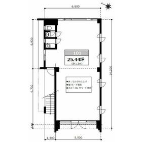
84.13m²

25.44坪/0.9077万円

貸店舗・事務所

1990年3月(築35年10ヶ月)

おすすめコメント

「12月末までの申込限定!家賃2ヶ月フリーレント」

間取図

間取図

外観

外観

その他の画像
  • その他
  • その他
  • その他
  • その他
  • その他
  • その他
  • その他
  • その他
  • その他
  • その他
    • お問い合わせ
    交通

    西武新宿線 新所沢駅 徒歩3分

    所在地 埼玉県所沢市松葉町
    物件種目 貸店舗・事務所
    賃料 23.1万円 管理費等 11,000円
    敷金 / 保証金 3ヶ月 / なし 礼金 なし
    敷引 坪単価 0.9077万円
    保証金償却 権利金
    造作譲渡 その他一時金 鍵交換(1箇所):28,000円
    維持費等 保険等
    使用部分面積 84.13m² 坪数 25.44坪
    築年月 1990年3月(築35年10ヶ月) 階建 / 階 3階建 / 1階
    駐車場 バイク置き場
    駐輪場 土地面積
    接道状況 用途地域 2種住居
    間取り 建物構造 RC
    アピールポイント 所沢市松葉町にある魅力的なテナント物件をご紹介します。この物件は新所沢駅から徒歩わずか3分という好立地にあり、ビジネスを展開するのに最適な場所です。

    販売店、営業所、接骨院、整体院など、さまざまな業種に対応できるこのテナントは、あなたのビジネスの成功を後押しするでしょう。ぜひ、この機会にご検討ください。
    建物名・部屋番号 スムークビル 101
    リフォーム履歴
    リノベーション履歴
    特記事項
    備考
    賃貸保証等:加入要(エポスカード 初回保証料が総額賃料の100%、月額保証料1000円。大手法人契約の場合は保証会社は不要。)
    管理形態/管理員の勤務形態:-/-
    新所沢駅から徒歩3分で通り沿い、販売店・営業所・接骨院・整体院などに最適!
    ※1年未満での解約の場合、早期解約違約金が発生します。
    ※解約予告:借り主より3ヶ月前。
    ※電気料金は管理会社から請求。
    その他詳細は弊社オリジナル図面参照。図面と現況に相違がある場合は現況優先とします。
    エネルギー消費性能
    断熱性能
    目安光熱費
    バス・トイレ トイレ
    キッチン
    設備・サービス
    その他
    契約期間 3年 条件等
    引渡可能時期 即時 現況
    更新料 新賃料 1ヶ月 物件番号 1083970298
    情報公開日 2024年12月9日 次回更新予定日 2026年1月1日
    ケータイ用バーコード

    QRコード

    スマートフォンでこの物件を見る
    スマートフォンからもこの物件をご覧になれます。
    ※「-」と表示されている項目については、情報提供会社にご確認ください。

    クイックお問い合わせ

    ここから簡単にお問い合わせをすることができます。
    (SSLでの暗号化での送信を希望されるお客さまは こちら よりお問い合わせください)

    お問い合わせ内容(必須)
    物件のお問い合わせ理由(必須)
    お名前・ご担当者様名(必須) 姓  名 
    メールアドレス(必須)
    ※携帯電話のメールアドレスをご入力される方はこちらをご確認ください
    電話番号(必須)
    - -
    備考欄 希望条件、物件案内希望日、質問などがございましたらご記入ください。
    お問い合わせを行う前に「個人情報の取り扱いについて」を必ずお読みください。
    「個人情報の取り扱いについて」に同意いただいた場合は「上記にご同意の上 確認画面へ進む」のボタンをクリックしてください。

    個人情報の取り扱いについて

    皆さまが送付された個人情報はアットホーム(株)のサーバを経由し、お問い合わせ先の不動産会社にメールまたはFAXにて転送されるためアットホーム(株)にも保管されます。アットホーム(株)で保管された個人情報の取り扱いについては、【こちら】をご覧ください。
    また、本画面でご記入いただいた個人情報は、お問い合わせ先の不動産会社でも保管します。 お問い合わせ先の不動産会社が保管する個人情報の取り扱いについては、不動産会社に直接お問い合わせください。

    情報提供会社

    情報提供会社

    (株)フロンティアホーム

    国土交通大臣免許(3)第8796号

    交通:
    西武池袋線/所沢駅 徒歩4分
    埼玉県所沢市日吉町28-7 
    TEL:
    04-2929-2231
    FAX:
    04-2929-2232
    所属団体:
    (公社)全日本不動産協会会員
    (公社)首都圏不動産公正取引協議会加盟

    取引態様:仲介

    • 会社情報
    • 00532246
    スマートフォンで
    この不動産会社を見る
    QRコード
    • お問い合わせ
    • 提携サイト等より掲載されている物件情報につきましては、不動産会社詳細情報にリンクされていないものがあります。
    • 物件に関するお問合せは、物件詳細ページの「情報提供会社」に表示されている不動産会社へ直接お願いいたします。
    • 間取図は、現況を優先させていただきます。
    • 映像は物件の一部を撮影したものです。物件の契約にあたっての最終判断はご自身の判断に基づいて行ってください。
    • 仲介手数料について仲介手数料

    アットホームは物件情報の適正化に努めております。 内容に誤りがある場合にはこちらへご連絡ください。


    物件画像: