賃貸や不動産はアットホーム-賃貸マンション・賃貸物件・不動産なら アットホーム

秋田県秋田市中通4丁目(秋田駅)の貸店舗:物件詳細

  • 物件詳細
  • 情報の見方
  • 印刷用画面
交通
所在地
駅徒歩 賃料
管理費等
敷金/保証金
礼金
使用部分面積
坪数/坪単価
物件種目
築年月

JR奥羽本線/秋田

秋田県秋田市中通4丁目

7分

6.6万円

なし

3ヶ月 / なし

なし

12.17m²

3.68坪/1.7928万円

貸店舗・事務所

1993年6月(築32年6ヶ月)

おすすめコメント

秋田駅徒歩10分圏内のオフィスビル! 喫煙室・共用ラウンジ・機械式駐車場など設備も充実♪

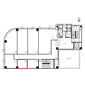
間取図

間取図

外観

その他の画像
  • 外観
  • エントランス
  • 共有部分
  • 共有部分
  • トイレ
  • 共有部分
  • 室内
    • お問い合わせ
    交通

    JR奥羽本線 秋田駅 徒歩7分

    所在地 秋田県秋田市中通4丁目
    物件種目 貸店舗・事務所
    賃料 6.6万円 管理費等 なし
    敷金 / 保証金 3ヶ月 / なし 礼金 なし
    敷引 坪単価 1.7928万円
    保証金償却 権利金
    造作譲渡 その他一時金 入居時サイン工事費:38,500円、入居時鍵交換代:16,500円
    維持費等 ゴミ処理費:2,200円/月、水道料:1,619円/月 保険等
    使用部分面積 12.17m² 坪数 3.68坪
    築年月 1993年6月(築32年6ヶ月) 階建 / 階 地上6階地下1階建 / 5階
    駐車場 有 16,500円/月
    機械式駐車場:全長5,050mm以下、全幅1,850mm以下、全高1,550mm以下、重量2,000kg以下
    バイク置き場
    駐輪場 土地面積
    接道状況 用途地域
    間取り 建物構造 鉄骨造
    建物名・部屋番号 秋田スクエアビル 5G
    リフォーム履歴
    リノベーション履歴
    特記事項
    備考
    賃貸保証等:利用可(初回契約時:90%、更新時:10%)
    管理形態/管理員の勤務形態:-/-
    エネルギー消費性能
    断熱性能
    目安光熱費
    バス・トイレ
    キッチン
    設備・サービス 空調機あり
    セントラル
    その他
    契約期間 2年 条件等
    引渡可能時期 即時 現況
    仲介手数料 1.1ヶ月    
    更新料 物件番号 1045288898
    情報公開日 2024年11月21日 次回更新予定日 2025年11月5日
    ケータイ用バーコード

    QRコード

    スマートフォンでこの物件を見る
    スマートフォンからもこの物件をご覧になれます。
    ※「-」と表示されている項目については、情報提供会社にご確認ください。

    クイックお問い合わせ

    ここから簡単にお問い合わせをすることができます。
    (SSLでの暗号化での送信を希望されるお客さまは こちら よりお問い合わせください)

    お問い合わせ内容(必須)
    物件のお問い合わせ理由(必須)
    お名前・ご担当者様名(必須) 姓  名 
    メールアドレス(必須)
    ※携帯電話のメールアドレスをご入力される方はこちらをご確認ください
    電話番号(必須)
    - -
    備考欄 希望条件、物件案内希望日、質問などがございましたらご記入ください。
    お問い合わせを行う前に「個人情報の取り扱いについて」を必ずお読みください。
    「個人情報の取り扱いについて」に同意いただいた場合は「上記にご同意の上 確認画面へ進む」のボタンをクリックしてください。

    個人情報の取り扱いについて

    皆さまが送付された個人情報はアットホーム(株)のサーバを経由し、お問い合わせ先の不動産会社にメールまたはFAXにて転送されるためアットホーム(株)にも保管されます。アットホーム(株)で保管された個人情報の取り扱いについては、【こちら】をご覧ください。
    また、本画面でご記入いただいた個人情報は、お問い合わせ先の不動産会社でも保管します。 お問い合わせ先の不動産会社が保管する個人情報の取り扱いについては、不動産会社に直接お問い合わせください。

    情報提供会社

    情報提供会社

    (株)リオ・ソリューション 仙台支社

    国土交通大臣免許(2)第8884号

    交通:
    仙台市南北線/北四番丁駅 徒歩1分
    宮城県仙台市青葉区二日町13-18 ステーションプラザビル3F
    TEL:
    022-722-9831
    FAX:
    022-722-9802
    所属団体:
    (公社)全日本不動産協会会員
    東北地区不動産公正取引協議会加盟

    取引態様:仲介

    • 会社情報
    • 20005257
    スマートフォンで
    この不動産会社を見る
    QRコード
    • お問い合わせ
    • 提携サイト等より掲載されている物件情報につきましては、不動産会社詳細情報にリンクされていないものがあります。
    • 物件に関するお問合せは、物件詳細ページの「情報提供会社」に表示されている不動産会社へ直接お願いいたします。
    • 間取図は、現況を優先させていただきます。
    • 映像は物件の一部を撮影したものです。物件の契約にあたっての最終判断はご自身の判断に基づいて行ってください。
    • 仲介手数料について仲介手数料

    アットホームは物件情報の適正化に努めております。 内容に誤りがある場合にはこちらへご連絡ください。


    物件画像: