賃貸や不動産はアットホーム-賃貸マンション・賃貸物件・不動産なら アットホーム

広島県広島市佐伯区楽々園2丁目(楽々園駅)の貸店舗:物件詳細

  • 物件詳細
  • 情報の見方
  • 印刷用画面
交通
所在地
駅徒歩 賃料
管理費等
敷金/保証金
礼金
使用部分面積
坪数/坪単価
物件種目
築年月

広島電鉄宮島線/楽々園

広島県広島市佐伯区楽々園2丁目

1分

20.0772万円

73,616円

12ヶ月 / なし

なし

100.56m²

30.41坪/0.6601万円

貸店舗・事務所

1986年4月(築39年11ヶ月)

おすすめコメント

楽々園駅直結♪24時間有人管理♪視認性の高い立地♪業種等詳しいお問合せは良和ハウスまでお気軽にお問合せください♪

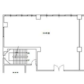
間取図

間取図

外観

外観

その他の画像
  • 室内
  • その他
  • ショッピング施設
  • コンビニ
  • 小学校
  • 病院
  • 役所
  • 郵便局
    • お問い合わせ
    交通

    広島電鉄宮島線 楽々園駅 徒歩1分

    その他の交通

    広島電鉄宮島線 佐伯区役所前駅 徒歩11分

    広島電鉄宮島線 山陽女学園前駅 徒歩18分

    所在地 広島県広島市佐伯区楽々園2丁目
    物件種目 貸店舗・事務所
    賃料 20.0772万円 管理費等 73,616円
    敷金 / 保証金 12ヶ月 / なし 礼金 なし
    敷引 坪単価 0.6601万円
    保証金償却 権利金
    造作譲渡 その他一時金 なし
    維持費等 保険等
    クレジットカード決済 初期費用可
    使用部分面積 100.56m² 坪数 30.41坪
    築年月 1986年4月(築39年11ヶ月) 階建 / 階 4階建 / 3階
    駐車場 バイク置き場
    駐輪場 土地面積
    接道状況 用途地域
    間取り 建物構造 RC
    建物名・部屋番号 広電楽々園駅ビル
    リフォーム履歴
    リノベーション履歴
    特記事項
    備考
    賃貸保証等:加入要(要確認)
    管理形態/管理員の勤務形態:-/-
    楽々園駅直結♪24時間有人管理♪業種等詳しいお問合せは良和ハウスまでお気軽にお問合せください♪
    エネルギー消費性能
    断熱性能
    目安光熱費
    バス・トイレ
    キッチン
    設備・サービス
    その他
    契約期間 2年 条件等
    引渡可能時期 相談 現況
    仲介手数料 不要    
    更新料 なし 物件番号 1026767547
    情報公開日 2025年11月24日 次回更新予定日 2026年2月22日
    ケータイ用バーコード

    QRコード

    スマートフォンでこの物件を見る
    スマートフォンからもこの物件をご覧になれます。
    ※「-」と表示されている項目については、情報提供会社にご確認ください。

    この物件の周辺情報

    周辺施設 五日市福屋
    距離 1706m
    周辺施設 北野エース楽々園店
    距離 240m
    周辺施設 セブンイレブン広島楽々園店
    距離 52m
    周辺施設 ウエルシアイオンタウン楽々園店
    距離 237m
    周辺施設 広島市立五日市中央小学校
    距離 845m
    周辺施設 医療法人社団初仁会桧田病院
    距離 711m
    周辺施設 広島市佐伯区役所
    距離 938m
    周辺施設 楽々園郵便局
    距離 266m

    クイックお問い合わせ

    ここから簡単にお問い合わせをすることができます。
    (SSLでの暗号化での送信を希望されるお客さまは こちら よりお問い合わせください)

    お問い合わせ内容(必須)
    物件のお問い合わせ理由(必須)
    お名前・ご担当者様名(必須) 姓  名 
    メールアドレス(必須)
    ※携帯電話のメールアドレスをご入力される方はこちらをご確認ください
    電話番号(必須)
    - -
    備考欄 希望条件、物件案内希望日、質問などがございましたらご記入ください。
    お問い合わせを行う前に「個人情報の取り扱いについて」を必ずお読みください。
    「個人情報の取り扱いについて」に同意いただいた場合は「上記にご同意の上 確認画面へ進む」のボタンをクリックしてください。

    個人情報の取り扱いについて

    皆さまが送付された個人情報はアットホーム(株)のサーバを経由し、お問い合わせ先の不動産会社にメールまたはFAXにて転送されるためアットホーム(株)にも保管されます。アットホーム(株)で保管された個人情報の取り扱いについては、【こちら】をご覧ください。
    また、本画面でご記入いただいた個人情報は、お問い合わせ先の不動産会社でも保管します。 お問い合わせ先の不動産会社が保管する個人情報の取り扱いについては、不動産会社に直接お問い合わせください。

    情報提供会社

    情報提供会社

    (株)良和ハウス 五日市店

    国土交通大臣免許(2)第9113号

    交通:
    JR山陽本線/五日市駅 徒歩11分
    広島県広島市佐伯区海老園1丁目4-37 ウィンディア海老園1F
    TEL:
    082-553-9376
    FAX:
    082-925-1700
    所属団体:
    (公社)広島県宅地建物取引業協会会員
    中国地区不動産公正取引協議会加盟

    取引態様:仲介

    • 会社情報
    • 50024473
    スマートフォンで
    この不動産会社を見る
    QRコード
    • お問い合わせ
    • 提携サイト等より掲載されている物件情報につきましては、不動産会社詳細情報にリンクされていないものがあります。
    • 物件に関するお問合せは、物件詳細ページの「情報提供会社」に表示されている不動産会社へ直接お願いいたします。
    • 間取図は、現況を優先させていただきます。
    • 映像は物件の一部を撮影したものです。物件の契約にあたっての最終判断はご自身の判断に基づいて行ってください。
    • 仲介手数料について仲介手数料

    アットホームは物件情報の適正化に努めております。 内容に誤りがある場合にはこちらへご連絡ください。


    物件画像: