賃貸や不動産はアットホーム-賃貸マンション・賃貸物件・不動産なら アットホーム

東京都港区芝浦3丁目(田町駅)の貸店舗:物件詳細

  • 物件詳細
  • 情報の見方
  • 印刷用画面
交通
所在地
駅徒歩 賃料
管理費等
敷金/保証金
礼金
使用部分面積
坪数/坪単価
物件種目
築年月

JR山手線/田町

東京都港区芝浦3丁目

5分

100.936万円

なし

6ヶ月 / なし

なし

97.86m²

29.60坪/3.4098万円

貸店舗

2026年1月(新築)

おすすめコメント  スタッフ: 八木 憲政

芝浦運河沿いの物件です。用途幅広くご相談可能です。

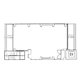
間取図

間取図

外観

外観

その他の画像
  • 郵便局
  • 銀行
  • 銀行
  • コンビニ
  • コンビニ
  • コンビニ
  • 飲食店
    • お問い合わせ
    交通

    JR山手線 田町駅 徒歩5分

    その他の交通

    都営浅草線 三田駅 徒歩8分

    新交通ゆりかもめ 芝浦ふ頭駅 徒歩9分

    所在地 東京都港区芝浦3丁目
    物件種目 貸店舗
    賃料 100.936万円 管理費等 なし
    敷金 / 保証金 6ヶ月 / なし 礼金 なし
    敷引 坪単価 3.4098万円
    保証金償却 権利金
    造作譲渡 その他一時金 なし
    維持費等 保険等
    使用部分面積 97.86m² 坪数 29.60坪
    築年月 2026年1月(新築) 階建 / 階 8階建 / 3階
    駐車場 バイク置き場
    駐輪場 土地面積
    接道状況 用途地域
    間取り 建物構造 RC
    アピールポイント 株式会社クイックコンサルティングは、素早く丁寧をモットーに全国のオフィス移転に対応しております。
    お問合せ頂いてからのレスポンスの早さにも自信がございますのでお急ぎの方は是非ご用命下さい。
    勿論その後の粘り強さにも自信がございます。
    ご希望の物件が見つかるまで、粘り強く何度でも物件をご提案致します。
    また、単に物件を紹介するだけでなく、内装の提案などオフィスに関わる様々なお悩みにお答えしております。
    その為、移転を任されるのが初めてのご担当者様やオフィスに関してお悩みをお持ちの経営者様などからご好評を頂いております。

    なお弊社は東京本社に加えて、大阪、名古屋、広島、福岡に5つの支店がございます。
    全国展開する事で地方に居を構える貸主様との関係が強化出来たり全国展開をされている企業様のご移転をより密にサポートさせて頂く事が可能です。

    ■追記
    地方物件に関しましては、直接支店へお電話頂いた方がスムーズです。
    東京本社:03-5201-8040
    大阪支店:06-6147-9791
    名古屋支店:052-223-0655
    福岡支店:092-791-5500
    広島支店:082-242-6600
    建物名・部屋番号 CADRE tamachi(キャドレ 田町) 3F
    リフォーム履歴
    リノベーション履歴
    特記事項 スケルトン、24時間利用可、土曜日利用可、土日・祝日利用可、飲食店可、整形無柱空間、24時間セキュリティー、耐震構造(新耐震基準)、天井高2.5M以上
    備考
    管理形態/管理員の勤務形態:-/-
    エネルギー消費性能
    断熱性能
    目安光熱費
    バス・トイレ
    キッチン
    設備・サービス 給湯、インターネット対応、光ファイバー
    その他 エレベーター
    契約期間 5年 条件等 定期借家定期借家
    引渡可能時期 2026年2月上旬予定 現況 未完成
    仲介手数料 100.936万円    
    更新料 新賃料 1ヶ月 物件番号 1020753377
    情報公開日 2025年11月10日 次回更新予定日 2025年12月25日
    ケータイ用バーコード

    QRコード

    スマートフォンでこの物件を見る
    スマートフォンからもこの物件をご覧になれます。
    ※「-」と表示されている項目については、情報提供会社にご確認ください。

    この物件の周辺情報

    周辺施設 港芝浦郵便局
    距離 362m
    周辺施設 みずほ銀行芝支店
    距離 585m
    周辺施設 三菱UFJ銀行三田支店
    距離 759m
    周辺施設 三井住友銀行三田通支店
    距離 851m
    周辺施設 ナチュラルローソン港芝浦三丁目店
    距離 94m
    周辺施設 セブンイレブン芝浦3丁目店
    距離 144m
    周辺施設 ローソンベイコート芝浦店
    距離 244m
    周辺施設 エクセルシオールカフェ田町東口店
    距離 230m

    クイックお問い合わせ

    ここから簡単にお問い合わせをすることができます。
    (SSLでの暗号化での送信を希望されるお客さまは こちら よりお問い合わせください)

    お問い合わせ内容(必須)
    物件のお問い合わせ理由(必須)
    お名前・ご担当者様名(必須) 姓  名 
    メールアドレス(必須)
    ※携帯電話のメールアドレスをご入力される方はこちらをご確認ください
    電話番号(必須)
    - -
    備考欄 希望条件、物件案内希望日、質問などがございましたらご記入ください。
    お問い合わせを行う前に「個人情報の取り扱いについて」を必ずお読みください。
    「個人情報の取り扱いについて」に同意いただいた場合は「上記にご同意の上 確認画面へ進む」のボタンをクリックしてください。

    個人情報の取り扱いについて

    皆さまが送付された個人情報はアットホーム(株)のサーバを経由し、お問い合わせ先の不動産会社にメールまたはFAXにて転送されるためアットホーム(株)にも保管されます。アットホーム(株)で保管された個人情報の取り扱いについては、【こちら】をご覧ください。
    また、本画面でご記入いただいた個人情報は、お問い合わせ先の不動産会社でも保管します。 お問い合わせ先の不動産会社が保管する個人情報の取り扱いについては、不動産会社に直接お問い合わせください。

    情報提供会社

    情報提供会社

    (株)クイックコンサルティング

    国土交通大臣免許(4)第7938号

    交通:
    東京メトロ銀座線/日本橋駅 徒歩1分
    東京都中央区日本橋3丁目8-16 ぶよおビル5F
    TEL:
    03-5201-8040
    FAX:
    03-5201-8041
    所属団体:
    (公社)全日本不動産協会会員

    取引態様:仲介

    • 会社情報
    • 00160377
    スマートフォンで
    この不動産会社を見る
    QRコード
    • お問い合わせ
    • 提携サイト等より掲載されている物件情報につきましては、不動産会社詳細情報にリンクされていないものがあります。
    • 物件に関するお問合せは、物件詳細ページの「情報提供会社」に表示されている不動産会社へ直接お願いいたします。
    • 間取図は、現況を優先させていただきます。
    • 映像は物件の一部を撮影したものです。物件の契約にあたっての最終判断はご自身の判断に基づいて行ってください。
    • 仲介手数料について仲介手数料

    アットホームは物件情報の適正化に努めております。 内容に誤りがある場合にはこちらへご連絡ください。


    物件画像: